上海嘉定金融中心项目 | Aedas
其他来源:Aedas投稿 2023-02-21
项目:上海嘉定金融中心项目
位置:中国上海
设计及项目建筑师:Aedas
业主:首建地产有限公司
建筑面积:63,000平方米
主要设计人:韦业启(Ken Wai),全球设计董事
作为上海郊区城市化进程的主要载体,嘉定新城是上海科创中心重要载区,更是新确立的未来城市副中心。由Aedas全球设计董事韦业启(Ken Wai)设计的上海嘉定金融中心项目位于该地块核心地段,目前已竣工交付。建筑轮廓完美诠释了大道至简的设计理念,将现代肌理有机融合于自然当中,挺拔有力的立面线条富有张力,为嘉定新城新兴商业办公聚集地添置崭新地标。

夕阳下照耀下的崭新地标
项目位于配套齐全的新区规划中心,交通便利,毗邻永胜路城市主轴与双站地铁11号线。周边自然条件优越,生态湿地与植被环绕,是该区绿色版块中稀缺的城市形象展示板块。
项目所在地

项目地块与周边绿色板块分布
“古有水墨留白技法,在自然语境下,至简有力的建筑轮廓与绿水青山相得益彰。”韦业启从水面倒影的反射现象中汲取灵感,用玻璃幕墙弱化建筑体量,降低其对周边环境的压力。通透如镜的建筑表皮与优美环境交相映衬,好似一幅“水映祥光”的青墨山水画,使建筑大隐于自然,却如粼粼波光般璀璨。建筑棱角分明,低宽高窄的体块穿插错落有致。主楼四面向内微折,四角向外舒展,配合竖向立面走势巧妙弱化体块顿感,塑造生动、挺拔的建筑形态。

与山水融为一体的建筑

向内微折的立面细节
面对极佳的生态条件,设计将一栋高层甲级办公塔楼与五栋多层办公塔楼错落围合排布,建筑高度控制在与周边规划保持统一的东高西低走势,呼应西侧湖面景观,形成一条优雅的城市天际线。建筑群落布局松弛有度,最小化楼群之间的视线遮挡,保证对外朝向的完整度,尽享周边360度环绕美景。
.png)
东高西低的天际线
.png)
从湖面方向望去的建筑群
.png)
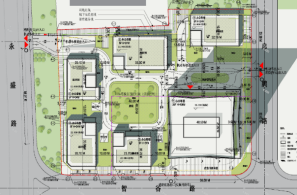
地块布局立体示意图
.png)
建筑群平面图
.png)
错落围合排布的建筑群
围合式布局在楼宇中央形成了独特的小型广场,整体景观以塔楼为中心向四周延伸,室内外空间植入自然绿意,营造公共与私享景观。同时,设计基于社群办公的理念,在塔楼内营造出包含办公露台、屋顶花园在内的多层次共享空间,塔楼外通过开放式的环境,将中央庭院、休闲空间、河滨亲水区串联,为使用者提供了丰富的社交互动场所,以国际绿色建筑标准造就生态宜人的共享型商务社区。
.png)
公共与私享绿色布局
.png)
楼宇间绿地景观
竖明横隐的幕墙体系,完美呈现了挺拔有力,简约大气的一体化设计。竖向银灰色金属百叶减少眩光的同时起到遮阳节能的作用,15%反射率的玻璃幕墙将户外景色引入室内,并达到外立面与自然有机融合的通透效果。首层挑高的设计搭配超白Low-e玻璃,在夜幕的灯光下与上层塔楼形成视觉反差,营造出明亮典雅的抵达体验。
.png)
竖明横隐的幕墙
.png)
简洁有力的建筑立面
.png)
挑高的办公大堂
.png)
典雅大气的大堂
“建筑是回应环境的艺术。我们希望可以在嘉定新城总部集聚的核心地带,打造出与自然交相辉映的商务范本。”韦业启说。
发表评论
最新评论
投稿



