上海阿特蒙医院 | 美国Gresham Smith建筑设计
其他来源:Gresham Smith投稿 2020-06-04
.jpg)
上海阿特蒙医院是自贸区成立以来引进的首家外商参与投资的综合性医院,也是自贸区服务业对外扩大开放的重要医疗项目。工程建设地点位于上海市浦东区外高桥保税区F2-03 规划地块,毗邻医疗保健中心,用地面积约8,300㎡。
区位分析
.jpg)
项目位于台北东路以西,台北西路以东,洲海路以南。该医院不仅能够服务自贸区及浦东新区中外企业及中外患者,更能够以优质的医疗服务和亲民的价格服务上海居民。
场地分析
医院总体规划分为二期工程,总床位数约为500张。此番完工的一期工程,建筑面积约29,737㎡,设置床位200张,将以骨科、肿瘤为特色。
.jpg)
医院外景
医院提供的骨科服务包括针对门诊和住院两大板块的外科创伤、运动医学、大关节、脊柱和骨科康复服务等,还有与上述服务直接配套的设施包括临床、放射科、实验室、药房、康复护理中心、康复理疗科、护理中心、VIP护理中心、急诊科、密集护理中心、CSSD和手术室等。
.jpg)
门诊大厅
.jpg)
大厅等候区
.jpg)
休息区
.jpg)
护士站
.jpg)
病房
流线分析图
消防分析图
日照分析图
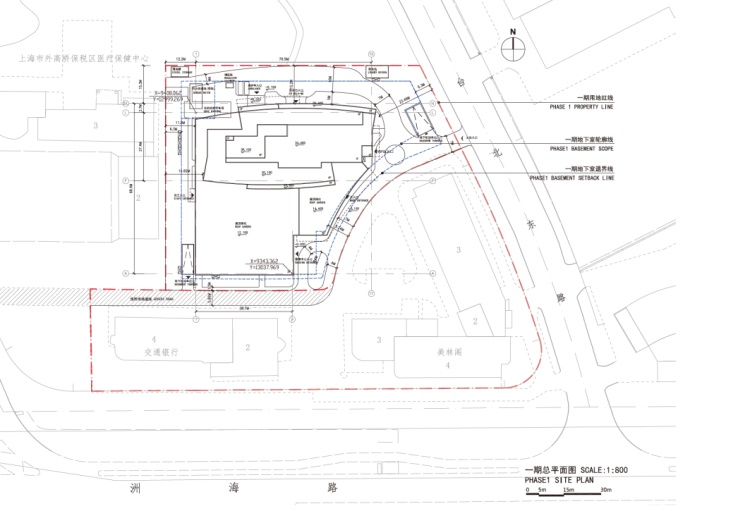
总平面图
一层平面图
项目名称:上海阿特蒙医院
项目地点:上海市浦东新区
主持建筑师:Kevin Kim
设计团队:Frank Swaans,William M. Mccowan,颜科,林俊甫,Heon Seo,刘小山,靳凤霞,张淑人
施工图设计单位:上海建筑设计研究院有限公司
用地面积:8,345 ㎡
建筑面积:29,737 ㎡
床位规模:200(一期)
项目周期:2015–2019
摄影:方志文
发表评论
最新评论
投稿



