深圳吉华街道水径九年一贯制学校 | AG汇创
来源:匿名网友投稿 2023-10-09
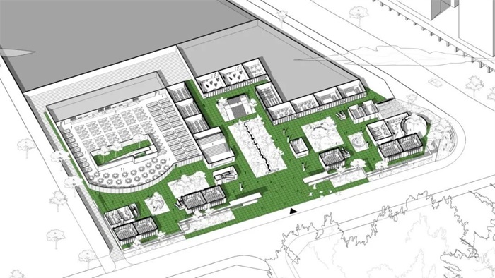
场地坐落于深圳银湖山与城市界面之间,设计将建筑作为自然与城市的栖息地。根据场地高差因地制宜,减少开挖,还原坡向体验,构筑“山谷叠台”与周边相融,与自然山景和谐共生。同时回应社区,延续组团群落肌理,模糊建筑边界,创造了一个“枕山栖谷,群落叠院”的现代未来开放校园。
建筑成为自然与城市的连接。以“山谷叠台”元素营造校园与自然的关系,层层递进的“叠台”创造与周边“无界”的连接与融合,建筑与外连接,柔刚共生。
场地划分三个台地,校园与道路衔接;球场位于70米标高,使用效率最大化;入口与院落递进渗透,引景成谷;回应城市肌理,与城市形成友善的社区界面;建筑设计顺应地势高差,垂直交织,穿透的视线通廊,形成单元组团体量,同时根据功能需求融合传统文化类型学及尺度多重考量,形成立体共享的“叠台画卷”。
校园包含初中部、小学部、体育馆、教师宿舍、图书馆与报告厅、餐厅等功能。我们利用架空层面积创造自由活动空间,及叠台相承与无界连接产生畅游庭院,同时也作为各层课堂的延伸,实现了多样化层级转换。

.jpg)
.jpg)
.jpg)
.jpg)
.jpg)
.jpg)
.jpg)
.jpg)
.jpg)
.jpg)
.jpg)
.jpg)
发表评论
最新评论
投稿

