晋中左权莲花岩民歌剧场 | TJAD曾群建筑研究室
来源:网友记忆加温i投稿 2021-04-14
设计单位 TJAD曾群建筑研究室
项目地点 山西晋中
建成时间 2020年10月
建筑面积 2200平方米
1 缘起
作为山西传统民歌的重要土壤,左权县在当地文化部门的推动下,兴起了每年一届的国际民歌赛活动,前几年均以搭建临时舞台的形式举办,反响热烈。2020年,当地政府计划为左权民歌文化建造一处永久剧场,用于赛事和演出。意外的是,“新冠”疫情导致建造计划搁置,而原定的比赛将在6个月后如期举办。我们就是在这样一个看似不可能完成的时间节点,接受了这个极具挑战且非常有意义的设计工作。
.jpg)
在紧迫周期与项目的矛盾下,我们深知设计起初的定位和判断至关重要。传统民歌源于土地,向山而歌,于山间传唱。我们既想把握这种艺术形式的原本样态,又需考虑建造工艺与周期的操作可行性。
我们建议的对策是,让设计尽可能地结合原有自然地貌,采用施工工艺单一且有一定的容错余地的建造方式来呈现。最终经明确定位与策划,选址左权莲花岩景区入口处面朝山谷的缓坡地,建造一处与环境融合的户外开放剧场。活动期间可作为民歌赛事的演出场地,平日则作为景区演出和附近村民文化活动的场所。
2 从平原都市到太行深山
在疫情最紧张时期,我们第一次去现场勘地,从太原机场“全副武装”出来,沿着太原高楼间的高架驶出平原都市,路过接连的黄土沟壑,再深入太行山间,最后顺着绵延的山谷抵达一处三角缓坡地。四周被高耸陡峭的山体包围,暴露的红黄相间的褶皱巨石和稀疏的枯树,巍然气势,扑面而来。
.jpg)
.jpg)
全程3个小时的车程,更像是一趟逐步回归自然的“去疫”之旅,呼吸也逐渐变得放松。我们在群山包围下感叹人与建筑的渺小之余,也进一步确认了最初的想象和判断:营造一处接受并结合自然的低姿态户外场所,而非强调自我的剧场,这样真切的现场感受也消除了起初对自然的“存在形式”与建筑的“操作形式”之间错位的担心。
.jpg)
.jpg)
3 从自然中来
设计从自然的“存在形式”研究出发,在对场地周边的自然环境仔细的观察和记录之时,不由感叹此地的天工造物之奇与人工营造之巧。由于丹霞地貌的特征,周边山体整体呈现以陡崖坡为特征的红色沙砾岩地貌,层层叠合的片岩之间自然形成丰富多变的水平褶皱,好似山间挖掘的走廊。在差异风化作用下,形成不同形状的岩峰:城堡状、棒状、方山状,还有虎口状,以前农闲的人们就是站在这些山头间传唱民歌,这些地方就是民歌最初的舞台。
.jpg)
.jpg)
.jpg)
在这样壮丽奇美的大山下,人类与其想通过建造跟大自然“争宠”,不如放下造物者的姿态“向自然学习”。生活在此的古人们早已悉知这一点,基地背后的莲花岩山腰间的沟壑里曾有多个“崖居”村庄,他们“以山为顶、以石为地、山石筑墙”,自然栖居于这“空中走廊”千百年,天工与人工在此相互成全,操作形式在存在形式之下如此不着痕迹。
从自然中来,向自然学习。虎口状的自然“舞台”、片岩间的崖居、丹红褶皱的山石肌理等,都是我们设计参考资料和概念来源。但并不是说设计需要去模仿它们的自然形式,而是希望剧场最终呈现的场所氛围也能找到相关的身体体验,身入其中的歌手也能找到山间歌唱的原始冲动。
虎口状的自然舞台姿态和向山而歌的体验成为剧场舞台的原型,片岩间的崖居智慧则指导了剧场服务空间的组织,与山石褶皱肌理的契合也是我们最终选择材料和工艺的重要原因。
4 到自然中去
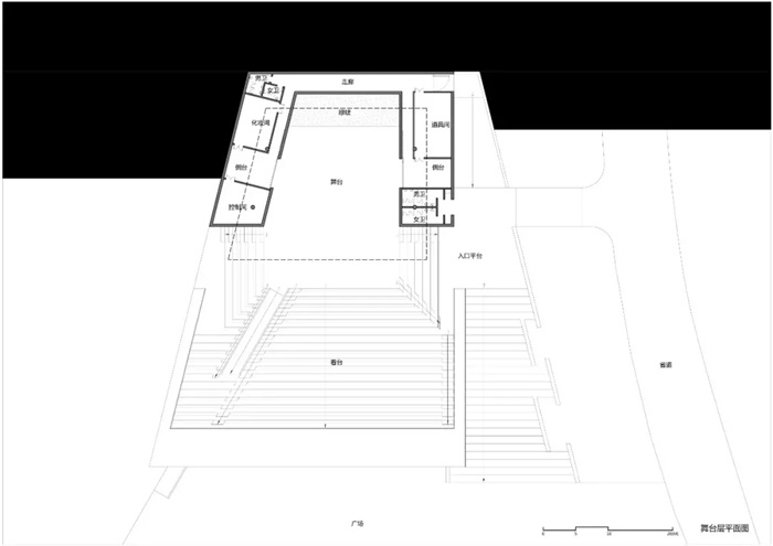
项目地处一块坡向山谷的草地,一侧临近国道,方便大型活动的交通组织,另一侧紧挨山体。设计一开始并没有选择顺应山坡作为开台来组织观演高低空间关系,而是从向山而歌的体验出发,选择了舞台朝向山谷的布局,即舞台在山坡高处,看台在低处。
为了解决观演视线的需求,我们提出了建筑作为“山石的延伸”的剖面构成概念,将高处的舞台部分嵌入山坡,低处的看台则抬高,下部相对低矮的空间呈崖居姿态,作为面向广场的服务空间。下部独立的服务空间和结构体散落布置于留出来的虚空间,构成自由多变的穿行区域,身处其中体验如同山石间游走。这样的处理既保证了上部剧场的观演视线与声场的需求,也让建筑的整体姿态与土地的关系更为紧密。
从平面上看,演出人员和道具通过与国道连接的通道,向下半层即可相对隐秘地进入后台和舞台。观众则经由广场,穿过下部空间迂回上行至看台的动线,既自然组织成了排队流线,也提供了观众山间行进的身体体验。从剖面可以看出,舞台面向东南侧山谷,在无灯光设备下的白天,也能获得正面的自然光,呈现舞台的“聚光灯”属性。观众则身处阴影,背向阳光以获得较好的舞台视觉体验。从山坡间伸出的看台大板,在剖面上通过“叠涩”处理,板面提供了看台的台地坐席,板底则反向作为下部“崖居”的“以山为顶”的片岩天花。
前文提到的考虑到项目的建造周期的可行性,并结合周边山石肌理,我们最终采用了裸露的小模板素混凝土的材料。混凝土也称为人工石,这或许也是人工与天工的一次恰当的互动。在有限条件下,建筑一次浇筑成型,外立面完全去装饰,同时节省建造成本和时间成本。
.jpg)
.jpg)
.jpg)
小模板工艺留出的粗砺肌理也得以与自然起到更多的互动,在风化与雨水的长时间作用下,以及自然草木的侵蚀下,混凝土表面色泽和质感都会发生变化。多年后,此处的人工与天工之间的界限会越来越模糊,最终建筑本身也能回到自然中去,成为其中的一部分。
5 回
设计最初源于“自然的回响”,从氛围的营造到形式的操作,再到材料的判断,都是选择能与时间同行的方式,是一种放松的、粗犷的、会呼吸的、接受包浆的状态。山石延伸出的建筑空间也好,粗粝的混凝土材料也好,多年后再访,它们或许会成为“回响的自然”,成为左权传统民歌艺术的一个支点,从这传出阵阵高亢的左权小调,在山谷间回响。
有幸在如此有限的时间内,项目还是如期完工,我们不得不感叹“中国速度”。但追求速度的同时,无法预判的疫情、天气和当地有限的施工工艺,使得最后的呈现还是存在一些不尽人意。当建完再次回到项目基地的时候,剔除掉那些不太理想的施工细节,跳脱出设计者的角度来看,这个项目的建造其实是存在这一个很重要的矛盾:建立在工业化基础上的设计体系和相对滞后的地方建造方式之间的龃龉。
无可谓好坏对错,它或许是当下地方建设呈现出的一种普遍现实。成熟的现代建筑设计体系背后是一套完整的工业生产,但是偏远地方的本地施工大部分还依赖于传统手工营造,二者之间存在着地理与时代的双重断层。在这样的现实条件下,建筑师是应该通过工业生产来引导地方建造?还是设计方法回到手工营造去适应传统工艺?或许这个项目没有给出一个合理的解答,但这样一次尝试带给我们很多的思考。就项目而言,设计者很难自己去评价,暂且把这个问题留给时间和自然来回应吧。
.jpg)
.jpg)
完整项目信息
项目名称:山西省左权莲花岩民歌剧场
方案设计:曾群、文小琴、曾毅
施工图设计:山西筑城建筑设计有限公司
项目地点:山西省左权县莲花岩山脚
用地面积:约6500平方米
建筑面积:2200平方米
设计时间:2020年3月—2020年5月
建成时间:2020年10月
建筑摄影:曾毅
发表评论
最新评论
投稿
.jpg)