北京东风3号院办公空间 | 中德行建筑设计
其他来源:中德行建筑设计投稿 2022-01-12
东风公园位于北京市朝阳区东风乡将台洼村,地处东四环、五环之间,属于北京市第一道绿化隔离地区郊野公园环。它犹如城市中的避风港,设计师张春利希望为在此工作的设计师们提供贴近自然、放松、自由、格调清新的创意工作空间。

设计的首要考虑即为通过尽量减少新建建筑的体量,选用环保、节能、可再生材料,以及采用适合的建造措施,来促进建筑的节能减排,同时修缮院落原有杂乱无章的状态,使它与公园环境更加和谐地融合。

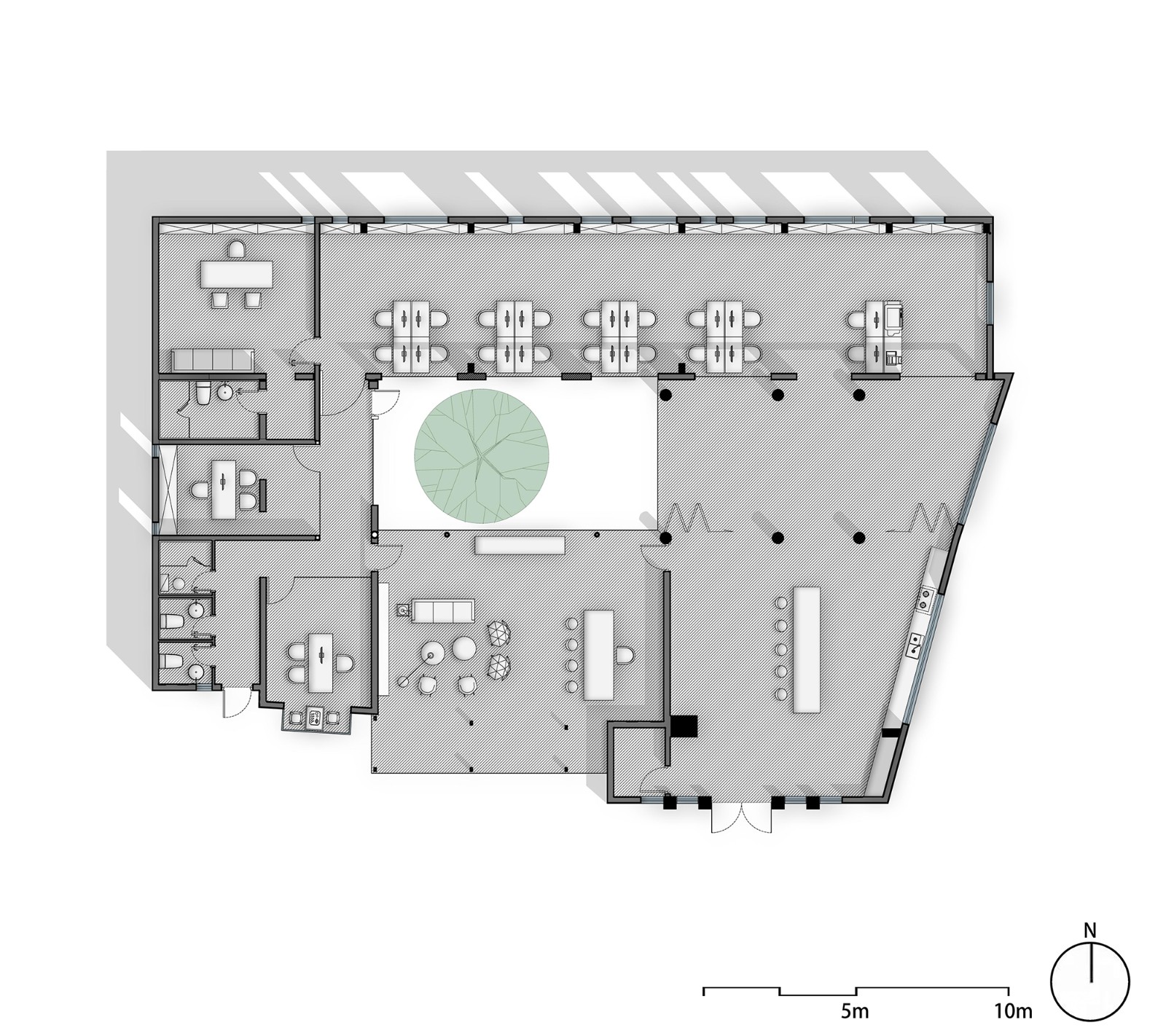
项目的功能定位为设计工作室,根据设计师日常的生活及工作需求,在空间布局上设定四个板块区域。进 门前厅可以满足用餐、水吧、会议等公共交流功能,与旁边的健身区通过拉门灵活分隔、合并,满足举办艺术沙龙活动和展示的功能;西侧 VIP 休闲交流区在南北两侧设有全景落地玻璃幕墙,成为一个闲适的 会友交谈区域;北侧的办公区域则实现团队工作的场地功能。




新建筑主体结构采用可回收的钢结构和3层中空加 lov-E玻璃幕墙,使用节能空气源系统采暖和制冷, 房屋的外墙和屋顶安装了足够厚度的保温层,保证全年时间段的节能减排。在建筑内部无窗房间预留了采 光天窗,节约用电消耗。另外,开敞式办公区域南向全部采用落地窗,使用者可以充分感受阳光的温暖和 庭院中的自然景观。



房屋南侧的庭院可供日常闲暇和聚会场地使用,地面使用从安徽收集到的明清时期老建筑庭院里的老石条铺就,院内保留原有树木花草,营造出古朴、轻松自在的场地氛围。

通过旋转楼梯可以去往屋顶,放置的沙发和绿植木箱的配置成为紧张工作中调节心情、放松头脑的惬意好去处。另外,室内设有太阳能淋浴间,供设计师们健身后使用。
该项目希望通过更加关注设计师的工作舒适度、身心健康,将此处打造成最受设计师欢迎的办公空间。








项目图纸

△总平面图

△一层平面图
项目名称:东风公园3号院办公空间
项目地址:北京市朝阳区将台洼村东风公园 3 号院
设计公司:中德行建筑设计有限公司
设计团队:张春利
设计内容:建筑设计.庭院设计.室内设计
设计面积:1000 平方米
设计时间:2019
建成时间:2020
摄影团队:陈溯,方淳
发表评论
最新评论
投稿