义乌市文化广场
其他来源:UAD浙大设计投稿 2019-09-06
.jpg)
项目地点:中国浙江省义乌市经济技术开发区新科路与西江路的交叉口
场地面积:29362平方米
建筑面积:82360平方米
室内面积:77950平方米
容积率:1.24
绿化率:16.4%
设计单位:浙江大学建筑设计研究院有限公司
建筑师:董丹申 邱文晓 陈瑜 郑茂恩 章嘉琛
结构工程师:沈金、程柯、丁磊、鲍侃袁、倪闻昊、李少华、陈刚、金振奋
机械、电器、管道顾问:杨毅、陈激、郑国兴、任晓东、杨文征、孙登峰、方火明、陈周杰、邵春廷、杨国忠、林华、李向群
照明顾问:崔自创
估算师:孙文通、周永杰
主要材料:铝塑复合板—阿鲁克邦Alucobond、LOW-E玻璃—春水玻璃、铝型材—南亚铝材
摄影师:赵强
义乌文化广场选址于义乌经济技术开发区义乌江畔,总建筑面积为82360平方米,是集文化娱乐、教育培训、体育健身等多种功能为一体的大型文化综合体。义乌以小商品而闻名于世界,这里中小企业密集,民营经济高度发展,反映在城市建设上就是大量同质化小体量高密度的建筑弥漫,市民渴望标志性城市建筑以及开放的公共活动场所。
义乌被纳入浙江中心城市规划后,开始向发展成为国际化大城市迈出坚定的步伐,市政府希望以义乌文化中心建设为契机,为市民奉献精彩的“城市礼盒”,向世人展示义乌城市新的形象,并宣示其面向国际面向未来的文化信心。
.jpg)
△主入口
.jpg)
△建筑立面
如何在大尺度的现代化建筑中,恰当地表达对地方文化的尊重,如何在表现现新兴城市的现代化风貌和关照市民的传统人文情怀之间找到平衡点和切入点是设计关注的重点问题。设计聚零为整,以极简的建筑形体统筹复杂的建筑功能,以宏大的体量使之区别于城市中的普通建筑。
.jpg)
△建筑沿街立面
.jpg)
△建筑次入口
.jpg)
△立面细部
传承中国传统建筑中以庭院为中心的营造传统,本项目中建筑的中心不是宏大的厅堂,而是由下沉广场通过坡道、大台阶蜿蜒至屋顶花园的立体庭院,其中的空间与动线组织,起承转合,步移景异,也是对中国传统园林空间组织手法的学习和发扬。
剧院、健身中心、青少年宫三大功能区块围绕立体庭院呈合院展开,合院的第四面则是巨大的主入口空间。主入口巨大屋顶如云垂天际,入口下巨大的灰空间正是源于戏台、祠堂等江南传统的公共空间模式,十分适合江南地区的公共文化活动要求。
.jpg)
△立体庭院鸟瞰
.jpg)
△由大台阶望市民舞台
大屋顶下的城市舞台最为市民所喜爱,这里遮风避雨又视野良好,可同时欣赏到美丽的义乌江景与都市的繁华,每天清晨都有市民专程到此健身、运动、休憩。大屋顶檐下抽象的红色叠涩造型,既像舞台的帷幕又像宫殿的斗拱,体现出浓郁的东方文化气息。
.jpg)
△在市民舞台晨练
红色的金属幻彩板是设计师为本项目特别定制的“义乌红”,其特点是:平常为朱红,在特定的光线角度下却呈现出灿烂的金黄色。“义乌红”隐喻着义乌可以为世界各地商旅提供发现财富、实现梦想的机会,到义乌文化广场寻找那一抹“金色”,已经成为参观者经常参与的趣事。
.jpg)
△室内剧场
.jpg)
.jpg)
△室内局部
下沉广场结合观演席设计,适合有中国特色的群众文化活动的开展。攀登过漫长的大台阶可以到达屋顶天台,那里有开阔的屋顶花园,登高望远,义乌江、钓鱼矶、狮子山的美景尽收眼底。极简的沿江立面在夜幕降临后可以变化成巨大的屏幕,变幻的屏幕在义乌江波光的倒影下更焕发出迷人光彩,成为城市的一道靓丽风景。
.jpg)
△下沉广场
.jpg)
△下沉广场大台阶
.jpg)
△大屋檐下的下沉广场
.jpg)
△黄昏时分金属板呈现灿烂的金色
.jpg)
△夜景下的屋檐
.jpg)
△夜景下的幕墙灯光效果
项目图纸
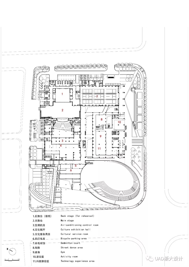
.jpg)
△一层平面图
.jpg)
△二层平面图
.jpg)
△剖面图(剧院)
.jpg)
△剖面图(下沉庭院)
发表评论
最新评论
投稿
.jpg)
.jpg)
.jpg)
