龙游溪口镇乡村未来社区圃舍 | 严旸建筑
来源:网友ithinkthat投稿 2022-10-11
如何在尽可能维持原貌记忆状态中去植入设计?
改造前因为年久失修,建筑墙面、屋顶及庭院均已破旧不堪,但是仍能感受到那种上世纪六七十年代的时间痕迹。改造启动后,整体设计策略秉持尊重历史背景和文化脉络的设计原则,通过“微改造、精提升”,的方式进行改造。尊重原生肌理,保留原有建筑时空记忆,通过设计及运营,让原本闲置的老旧建筑重新激活、焕发新生。让其变身为一间既具有时代记忆,又符合当代人们居住及使用的空间。
因此建筑师将更多的设计重心都放置在内部环境的改善与提升,而建筑外立面则只是作翻新、修复及加固处理,通过克制的设计手法去融入原建筑。尽可能的在维持它原有的建筑形态与风貌的同时,将室内使用机能全部进行重置与更新,以便满足民宿运营需求及符合当代人们生活与使用习惯。而为了让空间更具时代记忆感,整体室内空间上也植入了具有既定时代的工矿元素及材质。
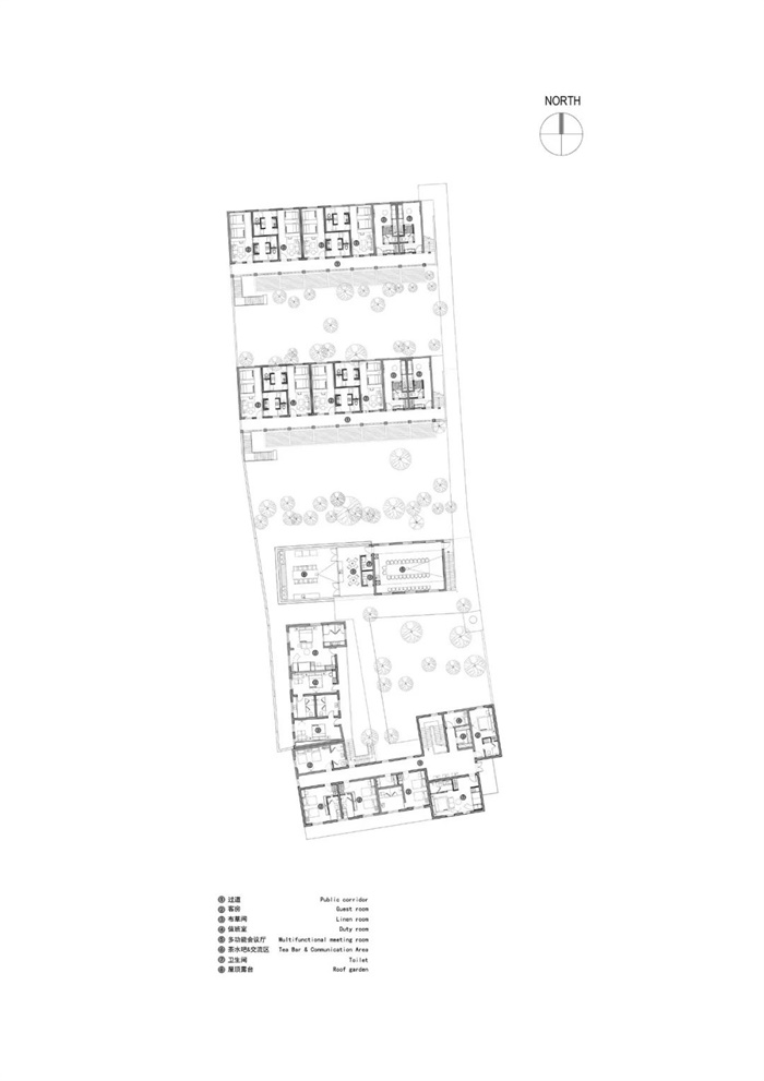
如何将并列的楼栋进行串联使用,
来满足共享民宿的日常运营?
在将空间设定为民宿功能时,原来的建筑布局过于分散与独立很难形成一个整体。建筑师将空间功能重新进行分配。原一号楼首层将其作为民宿的公区及酒吧空间,二层则作为客房空间。原三号楼一楼则设定为民宿的餐厅,二楼作为团建及会议场所。其余几栋楼则都作为客房来使用。
为了保证共享民宿的独立与隐私性,建筑师将原本园区道路与宿舍之间已破损的围墙重新进行了修葺与围合。同时植入了一条风雨回廊,来将前后建筑进行串联。在重塑动线和空间层次的同时也让场地更为整体。建筑师希望回廊在解决风雨遮阳功能的同时,也可以创造出一条游走在各个功能空间与庭院之间的体验动线。通过不同的转折与视角创造出不同的视觉观感与体验感。
NO.03
如何利用好现有长满水杉的庭院?
原本楼栋之间庭院留下的生长多年的大型水杉树别具韵味,但是原本的庭院空间不大不小没有被充分利用。而原本隔间式的宿舍户型将其改为客房后,空间局限性也很大。经过分析后,除了将内部户型结构重新进行设计与改造外,建筑师还决定将几个庭院也重新进行分配。1#庭院开放出来作为餐厅的延伸,形成休闲与就餐的公共庭院。2#与3#庭院则将其分割成公共活动的大庭院与客房专属的小庭院,增强空间的公共与专属使用价值的同时,也让水杉树与院落可以更好的相互交融。
项目信息
项目名称:龙游溪口镇乡村未来社区圃舍·溪口共享民宿
项目地址:浙江省衢州市龙游县溪口镇
建设单位:龙游县溪口镇人民政府
设计委托:乡伴文旅集团
设计单位:y.ad studio | 上海严旸建筑设计工作室
主持建筑师:严旸
项目设计师:吴可嘉
建筑设计院:上海时代建筑设计院
建筑施工图:杭州中亚建筑设计有限公司
项目设计及施工管理:朱震、高丞锴、贾易东
建筑面积:2,336平方米
主要材质:红砖、玻璃砖、耐候钢、铝板、涂料、竹钢板
设计时间:2020/03-2020/06
建造时间:2021/03-2021/12
摄影版权:是然建筑摄影
供稿单位:上海严旸建筑设计工作室
.jpg)
.jpg)
.jpg)
.jpg)
.jpg)
.jpg)
.jpg)
.jpg)
.jpg)
.jpg)
.jpg)
.jpg)
.jpg)
.jpg)
.jpg)
发表评论
最新评论
投稿