合肥旭辉铂悦庐州府
来源:网友MissBella投稿 2019-07-10
项目定位为城市低密度豪宅社区,坐拥一线水景、门口公园,通过高低密度产品组合,最优化的合理配置自然景观资源。
合肥旭辉铂悦庐州府
规划分析:最大化土地价值
1
区位分析
项目位于合肥市庐阳区北二环与西二环交口东南角,距离城中核心区约6km。项目地块坐拥森林公园板块区域,东南侧为庐州公园、西侧为董铺水库,两公里范围集中商圈云集,自然环境与生活氛围良好。
项目区位图
一个住区的区位条件是决定住区定位的关键因素,庐州府的区位条件决定了它必定会是高品质社区。设计通过高层、洋房、别墅三类产品的组合,实现土地价值最大化利用。
2
别墅排布策略
双拼化处理,用足建筑密度
整个项目容积率1.88,建筑密度22.9%,利用拉高拍低最大化使用土地资源,利用建筑密度可以创造的别墅资源做到极限面宽最大化。在充分利用面宽的情况下,设计师仍在寻找更好的突围,通过多轮方案比较,最终选择全双拼别墅的形式。
最大化面宽下别墅模式分析
原方案为10.5m+10m大面宽组成的四拼为主,通过引入8m面宽175㎡产品,将四拼联排产品拆成更多双拼产品,引入更多的边套,产生更多的溢价。双拼模式共多了40套边套,私密性大大提高,更多户有大花园,对土地资源利用也更加有效。
别墅四拼VS双拼边套数量对比
3
洋房排布策略
最大化类别墅户数
洋房产品采用类别墅套数最大化的策略。一层南侧入户,二层北侧入户并设置北侧独立入户花园,增加一二层的归属感与私密性,更贴近别墅居住体验。顶层设置阁楼与露台,实现别墅空间效果,户型内设置了80平米大露台以及豪华主卧套房。
洋房剖面示意图
4
高层排布策略
湖景资源最大化
场地西侧为合肥城市级绿肺“董铺水库”,设计师充分利用景观资源优势,将高层沿西侧布置,做到全一线湖景资源。
“你站在桥上看风景,看风景的人在楼上看你”,高层与湖景其实也是看与被看的关系。考虑到这一点,高层布局采用中间高两边低的排布,沿湖景与西二环形成优美的城市天际线。
高层天际线示意
设计师把CIFI5的产品理念运用到社区空间中,利用高层底层架空,使得建筑室内外空间相互融合。底层架空层设置泛会所功能,给客户提供全气候的、不受风雨影响的交流空间。
同时,室外的儿童活动场地和架空空间相互渗透,实现儿童在外院、老人在架空层里活动交流。
户型设计:定制化产品
高层临湖视野开阔,设计师设计了270°转角厅,可以最大化吸收湖景资源,打造一线临湖的观景效果。客厅和餐厅打通设计,空间利用率提升,同时餐厅得以共享客厅湖景;主卧室设置270°转角窗,枕湖而眠。
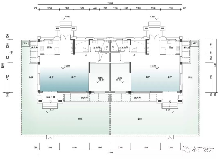
大面宽是所有别墅产品追求的方向,庐州府采用11.2米的超大面宽双拼别墅,既做到了大面宽,又保证了每户拥有独立庭院和良好的私密性。一层客厅和餐厅采用7.6米横厅设计,地上四层达到12个面宽的南向资源,使得主要功能房间都能与阳光及私家庭院形成最好的互动沟通。2层挑高的地下室和地下庭院的结合也成为庐州府别墅的一个显著亮点。
别墅首层平面示意图
立面与还原度:精准把控高度还原
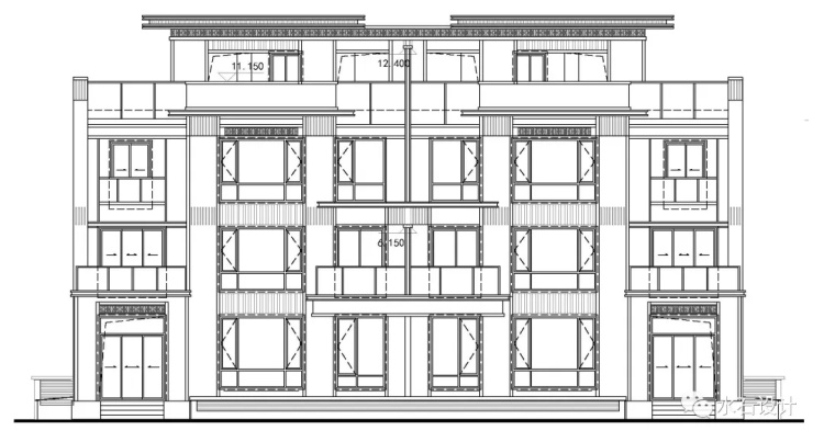
建筑采用新亚洲建筑风格,别墅使用典雅的米色石材,点缀部分咖啡色金属漆,使得建筑具有雅致的立面效果,顶部出挑的飞檐,具有传统建筑神韵。
别墅立面图
洋房的立面采用简约的三段式处理,建筑利用建筑形体的穿插及现代的玻璃栏杆的设计使得建筑具有轻盈雅致的效果,很好的满足了现代人的生活方式;洋房的基座部分采用石材加局部金属板的设计,顶部出挑的飞檐中点缀穿孔金属百叶形成头部的视觉焦点。
洋房立面图
入口门头使用把传统合肥作为庐州府时期的青铜器纹饰进行现代的演绎,通过现代石材做法进行打造,形成本项目特色的标志符号。通过对施工图和幕墙图纸的精细把控,建筑效果得到完整的还原。
洋房立面还原度对比
别墅立面还原度对比
展示区设计
示范区形体设计手法借鉴经典建筑,采用形体穿插咬合的手法,将玻璃盒子与实体基座穿插咬合,体现建筑美感。设计准确把握了建筑外立面各构件之间的尺度与比例关系。玻璃、金属与石材,一起组合而成新亚洲和谐典雅的风格。项目曾荣获2017年度地产设计大奖金奖。
项目名称:合肥旭辉铂悦庐州府
用地面积:101 700㎡
建筑面积:276 700㎡
设计时间:2016年
建成时间:2019年
建成状态:一期建成
产品类型:高层、洋房、别墅
设计单位:水石设计
设计部门:设计三部
工作内容:建筑设计
照片摄影:潘爽
发表评论
最新评论
投稿

.jpg)
