上海“黄浦区五里桥项目”公租房设计 | 中房设计
其他来源:中房设计投稿 2020-11-26
.jpg)
上海中心城区内的公租房建设进展缓慢,固然有土地转性等复杂的历史原因,更因为中心城区地块较零散,周边现有住宅密集,对较高容积率的公租房地块设计限制非常大。
在此背景下,由永业集团投资,中房承担设计的五里桥路公租房项目,被列为市公租房示范性工程和专业研究课题,在1.2公顷大小的“迷你地块”上,遵循“对外不突破,对内有创新”的原则,在狭长场地上探索解决公租房建设中的专业性和社会性问题,同时做出一定的空间创新。
1
设计难点
.jpg)
❶ 按照规范,退界后基地可建范围有限。
❷ 周边多层住宅密集,日照分析条件复杂,对高容积率方案限制大。
❸ 项目承载的功能复杂多样。
项目位于原卢湾区中心地带,制造局路与局门路之间,五里桥路以南,占地约1.2公顷,综合容积率2.6。北侧为老公房小区—丽园新村,住宅密集,与基地仅隔一条4.2米宽的五里桥路,给日照计算造成了很大难题。西侧沿局门路为厂房改造而来的创意园区—“智造局”。
.jpg)
项目以公租房为主体,另外包括黄浦区公租房管理中心、应急中心等管理用房及商业服务配套等,同时需额外提供150个社会车位,这些都给规划设计带来了极大挑战。
2
“对外不突破,对内有创新”
作为市中心区域的公租房地块,项目具有一定代表性:地狭小,周边限制条件大,承担功能复杂,这些均是市中心公租房共有的特点。因此,我们确立了项目的设计原则:创建具有普遍适用意义的中心城区公租房社区模式。
针对以五里桥项目为代表的中心区公租房的共有特点,遵循规划局领导“对外不突破,对内有创新”的指示精神,我们制定了以下对策作为项目设计理念。
.jpg)
提高建筑密度,减少高层体量
中心城区用地零散狭小,在满足退界距离后可建范围本就捉襟见肘。公租房地块出于提高土地利用率的要求往往容积率较高,而周边住宅特别是低多层住宅密集,对于高容积率项目的日照限制非常大。
对项目来说,北侧与基地仅5米间距的丽园新村的日照问题成为一大难点。因此,减少高层体量,适当提高基地内建筑密度,将对外影响降至最低成为五里桥项目—或许也是中心区公租房建设的一大策略。
围合式街坊是构成欧洲大部分城市的典型单元,我国的四合院、石库门也是围合式住宅的代表,在日本、香港等城市的公共住宅领域亦广泛采用。其节能省地、适合邻里交流的特点对于建设条件苛刻的中心城区公租房项目而言是一种理想的模式。
.jpg)
项目以三组高低组合的建筑围合而成,建筑密度约50%。临近丽园新村的北侧均布置3-4层低矮裙房,8-18层小高层设于地块南侧,高度根据与北侧新村住宅的间距不同而逐渐跌落,保证与外部的日照间距,亦由此形成自己独有的天际线,与基地的平面形状形成有趣的对应关系,与城市在两个维度上巧妙地“缝合”在了一起。
功能混合布局
项目承载的功能复杂多样,地上面积3.1万平米,以人才公寓为主体,另外包括黄浦区公租房管理中心、应急中心及自用型办公、经营型办公等共约6000平米。由于中心城区公租房用地多为工业用地等转换而来,这样的功能组合亦颇具代表性。
.jpg)
将各功能分区设在独立的建筑中固然流线明确清晰,但项目公建配套需求不小,公租房用地中出现独立的公建有用地性质不清之嫌。同时,底层住宅直接临路亦不尽合理。因此,功能混合布局是一个解决途径。
设计将公建置于每幢建筑的底层沿路位置,既减少临路受干扰的住宅,又充分利用较有价值的公共区域,同时有利于近人尺度的沿街气氛营造。通过建筑间的灰空间解决不同功能的公建及公寓社区的出入口交通问题。
上部北侧临路裙房布置部分办公及一室户公租房,因其日照条件不佳,故将来考虑长期出租;南侧日照条件较好的区域则布置单元式住宅,即使成为配套商品房亦能满足相应日照要求。
.jpg)
.jpg)
.jpg)
东端建筑紧邻制造局路,人流量较大,公共性强,底层布置经营型办公及自用型办公的大堂与会议中心部分,充分利用地段价值。中部建筑底层北侧设置区公租房管理中心及应急中心,并配置入口停车广场,方便工程车辆停放;南侧为住宅。
西端建筑底层临路及东北向无日照区布置经营型办公及公租房的物业居委等行政设施,其余为住宅。上部住宅均在各号房底层设有配置信报间的单元门厅,位于南侧不临路的区域,与公建区流线互不干扰。
由于用地非常紧张,又有大量公建,一层人流相对复杂,因此社区内部的公共活动交流空间被抬至三层。每幢建筑自身围合出邻里庭院。建筑间的两个公共平台与建筑内院共同组成公租房住户交流活动的主要公共空间,并通过大台阶向社区内一层开放。
.jpg)
公共平台与每个内院的连接处布置公租房配套服务设施,如洗衣、阅览、健身房等,通透的室内外渗透关系使两个平台成为社区活动的主要场所。
公租房套型面积需将公摊计入,公共面积直接影响得房率大小。因此,项目公共空间均利用架空层、露天平台、屋顶花园等不计建筑面积部位营造,既创造丰富公共活动空间,又不增加公摊面积,保证套型的得房率,不为搞创新而牺牲本就不大的户内面积。
原址企业要求的150个公共停车位在地下车库内集中停放,并有独立坡道进出,且在地下通过管理措施使其与社区停车分离,与公建部分停车区域均通过专用楼电梯到达一层公共区域,与社区内部流线分离,保证社区的有效管理。
狭小的基地与较高的建筑密度使绿化用地捉襟见肘。沿五里桥路西侧退让出大片的公共绿地,在本已极其局促的用地内将有限的绿地开放给城市,极大改善了狭窄的五里桥路的界面感受。另外,庭院绿化与裙房屋顶绿化成为有效的补充,且均对本小区居民开放,两者之间亦可形成有趣的互动。因缺少阳光,北向屋顶绿化可选用喜阴植被,结合景观小品,成为居民散步休憩的空间。
谦虚对话的建筑立面
在城市更新过程中,新旧并存与对话将是长期的主题。插入老建筑群的新个体将以何种面貌出现是个值得探讨的话题。
项目以谦逊的态度扮演了这个新来的角色,在各个外部界面都与邻近的建筑构成一种和谐的对话关系。周边体量最大的新村住宅构成了老五里桥路的城市界面。我们提取了原始住宅的立面构成关系,略加变化,构建了项目主体立面构成逻辑以及统一的建筑语汇。
在沿街低层形体上又加以强化,并以分层错动的手法使过长的沿街面显得更为活泼且富有层次。底层临街则更为通透,与开放的功能相呼应。主体建筑立面采用素雅的暖灰色涂料,局部缀以鲜亮的色彩,宁静素雅中不失活泼,于周边建筑群中低调内敛而不失个性。
沿街裙房则呼应西南侧的办公楼,使用了褐色仿古面砖与亮色涂料的对比,使原本灰暗的街道增添了不少年轻的活力。底层木纹线条的使用更多了一些温馨的色彩。材料的选用方面,拉毛的涂料、哑光的小面砖、古朴的劈开砖加上局部木纹铝板的点缀,在很有限的预算内达到了性格鲜明而又优雅温暖的视觉感受。
细节方面,尝试使用深灰色高穿孔率铝板作为所有平台、女儿墙及空调的围护材料,将原本由于户型的多样性导致的不规则立面取得了最大的视觉统一性,与木色栏杆共同形成建筑群的构成母题。
铝板的穿孔率、单元格的大小及划分的密度都经过了仔细的推敲与样板比较,既确保空调通风的效果,作为平台围护又需达到一定强度给人以安全感,还兼顾成本诉求,以不同厚度对应围护、空调以及装饰不同功能要求,最终呈现的效果还是令人满意的。在面砖排列方面,为强调体块完整性及洞口的对比感,没有使用传统的横竖贴结合的模式,材料的碰撞更为干净直接。
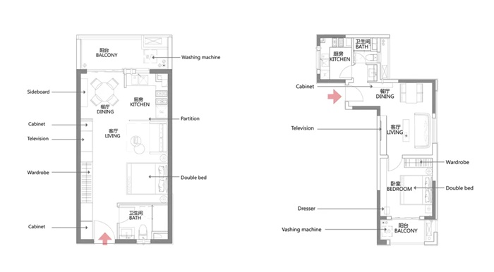
户型设计
项目包含成套小户型及单身宿舍型公租房两种模式公租房,除少量不满足日照的一室户外,其他日照条件较好的区域,根据建设单位要求,按照配套商品房标准布置二室及三室户,为日后的转性留有余地。一室、二室、三室户套型面积分别控制在50、70、90左右,配比上亦以一、二室户为主,三室仅占6.4%。
.jpg)
.jpg)
除一室户卫生间向公共走道间接采光外,二、三室户均为全明设计。动静分区明确,流线紧凑,二、三房基本做到二卧室朝南,在有限的面积内完全达到商品房标准。室外空调机位也作了充分的考虑。
.jpg)
.jpg)
3
方案可行性
作为市公租房示范性工程和专业研究课题,“对外不突破,对内有创新”是项目设计的指导原则。因此,项目对外退界、间距、面宽等均符合《上海市城市规划管理技术规定的要求》,通过满足间距解决日照问题,力争将对外的影响降至最低。
对内采用低层高密度的设计理念,而且通过平台将住户公共空间移至三层,建筑覆盖率有适当突破,达到50%。同时,公租房套型面积需将公摊计入,公共面积直接影响得房率大小。因此,项目的特色空间均利用露天平台、屋顶花园等不计建筑面积部位营造,不增加公摊面积,保证套型的得房率。
.jpg)
.jpg)
.jpg)
4
结语
“螺丝壳里做道场”是对旧上海人的形容,用来描述目前中心城区改造、特别是“见缝插针”式的公租房改造项目倒也颇为恰当。对五里桥项目而言,在有限的预算内,不仅要做出“道场”,还要摆脱普通的住宅模式,有空间上的创新。对于我们设计师而言,既是一次挑战,也是一次机遇。能够在众多限制条件下找到一个答案,也许不是最好的,但也颇具实践意义。
项目2011年立项,历经波折,九年后终于竣工。很幸运,于方案期间在由上海市大型居住社区建设推进办公室主办、上海市勘察设计行业协会等承办的“我最喜欢的保障房”设计评选中获得了“设计创新”奖。本以为只能止步于图纸,能够建成是意外之喜。尽管有许多遗憾之处,但对我们来说,能为中心城区公租房改造提供一个实践模式,并享受由此带来的创作乐趣,也许是一种最大的收获。
技术图纸
项目地址:上海市黄浦区五里桥路
基地面积:11924平方米
建筑面积:31002平方米
建设单位:上海永业企业(集团)有限公司
建筑设计:上海中房建筑设计有限公司
室内设计:上海中房建筑设计有限公司
景观设计:上海中房建筑设计有限公司
设计团队
建筑方案:朱亮、陈嘉卿、夏大仓
建筑施工图:张继红、朱亮、邹晗、罗永谊、冷晓炯、王小龙
民防建筑:丁晓医、陈晓歌、高硕、王重元
结构:黄海文 、李纯钢、卫琳、倪珍珍、 陈红建
设备:卫青、胡伟、姚健、吴忠林,倪麟童,蒋添逸、徐智峰
室内 : 宦杰、沈政、郁圣雷、赵冬梅
景观:魏晶鑫、程漠淏、雍薇
建筑摄影:黎伟
发表评论
最新评论
投稿