高碑店列车新城被动式超低能耗住宅 | BIAD工程
来源 2022-03-02
.jpg)
传统住宅(包含现行节能75%、80%)的外围护设计可以简单比喻成身着羽绒服的女孩,时尚、漂亮有活力,但也为此付出了一定的代价。此身装束在寒冷的冬季所能承受的户外气温区间大约在±10 摄氏度之间;裸露的面部、颈部、手和脚踝成为了散失热量最严重的部位;在谈霾色变的当下没有合适的防护势必吸入大量有害微粒。
被动式超低能耗建筑犹如宇航服,外围护材料承受最大温度约±100 摄氏度;没有一处身体裸露在外;身后装备一套生命维持系统,包括电力能源及呼吸系统。整体提供在恶劣气候条件下的舒适生存环境。
虽说用服装来比喻建筑未必合适,但也能形象比对出被动式超低能耗建筑与传统建筑在节能方面的一些差异。
1
项目概况
高碑店列车新城位于河北省保定高碑店市高铁片区星城CBD,与高铁站直线距离800m。项目一期总建筑面积达44 万㎡,其中住宅及幼儿园共36 万㎡ 全部为超低能耗被动式建筑。
.jpg)
△鸟瞰图
项目对标德国海德堡“列车新城”,打造全球规模最大的被动式超低能耗建筑智慧生态住宅——中国国家级近零能耗建筑的示范区、生态海绵社区和绿色智慧健康生活的典范区。项目获得德国被动房研究所PHI 认证、中建联超低能耗建筑认证、国家评定的“三星级绿色建筑”设计标识等。
由于采用被动式超低能耗建筑技术,住宅采暖运行能耗折成一次能耗,较同期建成的普通节能75% 的住宅建筑,进一步节能约70%-80%,接近基准建筑能耗节能率的95%。128㎡住宅采暖耗电量每天约为10-15 度。室内设计温湿度达到了恒温恒湿的效果,室内舒适度远优于传统住宅。
2
设计过程
2.1
设计标准
该项目本质上依然是一个房地产项目,只是在原有基础上在节能问题上强调了执行的设计和建造标准。本项目同时满足德国PHI 被动房标准(2015)以及住建部超低能耗居住建筑导则(2015)标准要求。
△德国PHI 被动房标准(2015)能效指标
△德国PHI 被动房标准(2015)室内环境参数
△住建部超低能耗居住建筑导则(2015)能效指标
△住建部超低能耗居住建筑导则(2015)室内环境参数
被动式超低能耗建筑是以能效指标和室内环境参数为导向的性能化设计,区别于传统住宅节能设计限值法。性能化设计流程:
● 设定能效指标和室内环境参数;
● 确定初步设计方案;
● 利用软件进行定量分析和优化;
● 达标判定,修改直至满足要求;
● 确定最终方案;
● 编制性能化设计报告。
2.2
设计要素
为达到设计标准要求,将设计任务拆解为各个具体要素,其中包含了5 大要素和若干小要素,内容如下:
● 紧凑的布局,合理的体形系数;
● 节能墙体系统;
● 节能门窗遮阳系统;
● 充分利用太阳辐射得热;
● 高效热回收新风系统;
● 气密性设计;
● 冷热桥规避设计;
● 节能型家用电器设备。
.jpg)
△被动房五大设计要素
2.2.1 紧凑的布局,合理的体形系数
△体形系数与建筑布局的关系
2.2.2 节能墙体系统
● 保温材料:A 级岩棉板或真空板,B1 级石墨聚苯板、挤塑聚苯板、聚氨酯板等;
● 保温厚度:150-250mm(根据计算);
● 主断面传热系数:K ≤ 0.15W/㎡·K(K 值约为传统节能限制的1/3左右)。
.jpg)
△地下室底板、外墙保温节点
.jpg)
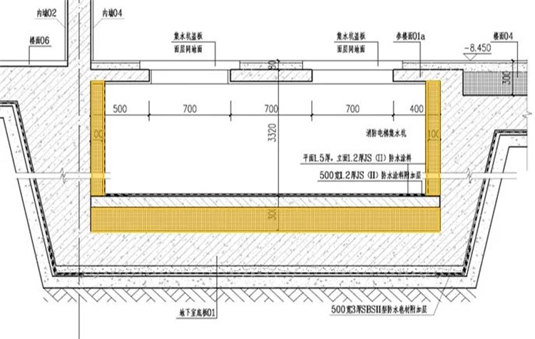
△集水坑保温节点
2.2.3 节能门窗遮阳系统
● 铝包木框料:三玻两腔Low-e 充氩气,K ≤ 0.8W/㎡·K;
● 窗框外悬与主体以外,> 2/3 框料包裹在保温层里;
● 金属窗台板阻挡雨水进入保温层;
● 电动遮阳卷帘调节太阳得热。
.jpg)
△节能门窗遮阳系统
2.2.4 高效热回收新风系统
● 风机远离静区,易通风;
● 新风机:合理规划风机管线,控制风机吊顶净高;室内风管尽量避免穿梁,无法避免则需结构进行必要考虑;
● 除霾;
● 制冷制热;
● 热回收效率≥ 75%。
.jpg)
△新风机布置
2.2.5 气密性设计
气密性设计在传统建筑里除了门窗外很少被要求,但漏风
的部位将会带走大量的热量导致节能效果不佳。
● 建筑应该是一个尽量不受室外环境干扰的独立系统;
● 建筑与室外空气交换都是通过可以控制的机械系统来实现;
● 重点部位:围护结构、门窗洞口、穿墙管线。
(1)气密性设计——墙体
现浇混凝土围护结构气密性较好,不用单独做气密性处理,砌筑墙体空隙较多需用抹面砂浆封闭。
(2)气密性设计——窗口
门窗洞口外侧需粘贴防水透气膜,内侧需粘贴防水隔气膜。
.jpg)
△窗洞口气密性处理
(3)气密性设计——穿墙洞口
2.2.6 冷热桥规避设计
传统建筑已对冷热桥的出现进行了大量的处理工作,而被动式超低能耗建筑需要进一步优化甚至杜绝其出现,处理不好极易导致室内墙体结露发霉。超低能耗建筑应尽量减少立面及屋顶的突出构件,诸如阳台、空调机位、造型构件等,如非必须需采取相应措施。断桥的原则方法为化面为线、化线为点。
.jpg)
△檐口出挑 保温连续
3
项目后评估
经过两年的运行,高碑店列车新城作为V1.0 版本还在接受着市场和时间的检验。期间也发现一些问题,有外部因素也有自身因素。外部因素,比如入住率低导致分户墙、楼板热量损失较大,暂时能耗超出预期;自身因素,比如冬季采用空调作为热源,室外机易结霜,融霜后结冰不易处理。
.jpg)
△沿街主入口
.jpg)
△ 人视实景
.jpg)
△人视实景
随着规范标准、设计技术的不断迭代,相信超低能耗建筑将作为一个过渡产品不断演进,近零能耗、零能耗建筑以及负能耗建筑将逐步成为舞台的主角。
撰稿:席宏伟 李庆双 北京建院第五建筑设计院
编辑:宋昕 审核:朱晓琳
发表评论
最新评论
投稿