小米深圳国际总部方案 | ennead
来源:网友BigSwifty投稿 2022-01-05

小米深圳国际总部效果图 ennead architects LLP 图1
ennead在小米集团深圳国际总部国际设计公开竞赛招标中取得优胜,并担任该项目的主创建筑设计单位。小米深圳国际总部在小米成立十周年之际孕育而生,聚焦科技感与生命力的有机融合,将与小米之家旗舰店共同组成深圳湾的灯塔——“小米魔方”,既彰显了过往十年小米的成功和市场影响力,同时也代表着小米对未来的希冀。

小米深圳国际总部效果图 ennead architects LLP 图2
小米深圳国际总部总建筑面积约4.6万平方米,项目地块位于后海金融商务总部基地的核心地段,是深圳重要的城市发展核心之一。整个项目地处深圳湾绿地边界、南山脚下,场地选址坐落于自然生态与人文生活的交接中心。

小米深圳国际总部概念手稿 ennead architects LLP
“建筑灵感源自小米品牌为公众带来的聚焦性和科技感。”ennead设计合伙人、小米深圳国际总部主创建筑师彼得·舒伯特(Peter Schubert)先生指出,“米粉文化奠定空间本质。‘小米魔方’这一设计概念以建筑动线为准绳,引导着各个功能空间的互动整合,具象化呈现出小米文化与使命中坚持不懈的创新与协作精神。” 新的小米总部与小米之家旗舰店将被视作一盏明灯、一座地标、一个集会、购物和创造的空间场所,共同组成深圳湾的灯塔——“小米魔方”:如同地平线上缓缓升起的孔明灯,它轻盈、明亮、将人们的好奇心点燃,并使人们想要探求其后深藏的心意与奥秘。
正如2021年颁布的新Logo一样,小米一直在进行着有关“科技与生命关系”的探讨。在建筑设计中,以基地现状为基础,建筑设计考虑与西侧华润万象城商业体量高度的对比,裙房的高度设置采取视觉递进的策略,建立从深圳湾到深圳人才公园,再到小米基地,最后到华润万象城的高度递增感。尽管用地极其紧张,建筑师仍通过架空首层的方式,将办公大堂提升至建筑二层,释放首层空间回馈城市,欢迎来自西侧华润万象城的消费者、北侧深圳湾体育中心和东侧深圳人才公园的游客。

小米深圳国际总部效果图 ennead architects LLP 图3
裙楼是生命力和城市活力的展示,通过体量转角的圆润化处理和首层架空创造的公共空间,结合小米之家,凸显了生命的包容与多样。塔楼则淋漓尽致地勾勒出工程师的理性与严谨,极简的建筑体量像一个漂浮的魔方,孕育着小米下一代的产品。三百六十度环绕建筑四层裙房的LED屏幕则是逻辑与情感、科技与生命的一次大胆碰撞,充满想象力地展现了小米的生态链和深圳城市形象。上述三大元素的缔造交融,使得小米深圳国际总部在日夜更替中呈现出冷静理性的工程美学和魔幻多彩的城市热情。

小米深圳国际总部效果图 ennead architects LLP 图4
立面设计上的突破与创新意在抓住展示与展览的本质,在激发感官体验的同时,鼓励人们如小米一般,用全新的视角和态度看待一切不断探索中的未来和未知。

小米深圳国际总部东立面 ennead architects LLP
ennead建筑设计事务所董事、亚太区总监陈昕昉女士认为:“在信息化的时代背景下,变化在所难免。因此,我们希望设计一个更为灵活且模块化的整体环境,以应对瞬息万变的未来环境和科技创新。‘小米魔方’不仅将是小米深圳国际总部,更将是公众了解小米的载体,我们希望让建筑本身能够成为一个艺术与功能性兼备、经久不衰的‘世界领先设计者’之家。”

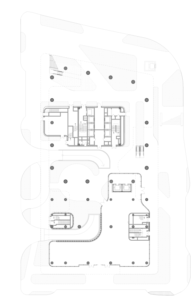
小米深圳国际总部首层平面图 ennead architects LLP

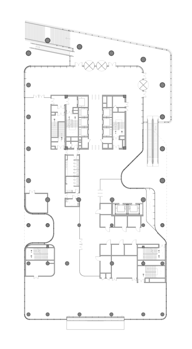
小米深圳国际总部二层平面图 ennead architects LLP

小米深圳国际总部标准层平面图 ennead architects LLP
发表评论
最新评论
投稿


.jpg)
