北京万寿路街道老年友好型社区更新设计 | 微米视界
其他来源:规划中国投稿 2020-09-01
在茫茫大城市中
总是会存在如同未长成的孩子一般的城市空间
如城中村、平房社区、衰退厂区
经常与脏乱差联系在一起
这样的空间往往被忽视......
但这些地段往往蕴含着
丰富的文化底蕴
多元的城市空间
承载着邻里居民多姿多彩的社区生活
以及无法用语言诉说的珍贵历史记忆
在北京市海淀区万寿路街道内
也有一处高楼林立中的“平房社区”
万寿路24号院
被当地居民自嘲的称为“老旧平民区”
但是事实并非如此......
“槐树社区”
针对万寿路街道老旧平房社区采光条件差、
空间狭小拥挤、老年人缺乏活动场地的现实情况
探讨通过无障碍交通方式利用屋顶空间
营造老年人在阳光下、大树旁聚会活动、种植花草的空间
并通过既有公共平房空间的更新改造
提供社区共享厨房、卫生间等公共服务和配套设施
打造一个 “老年人的家”!
.jpg)
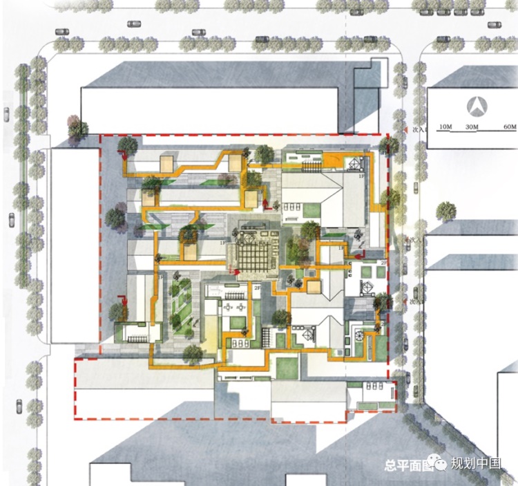
“槐树社区”研究设计方案
项目场地情况
项目基地位于万寿路24号平房社区
针对于当前片区所存在的系列问题
诸如缺乏生态景观与公共空间
居民生存环境恶劣,缺乏空间散步等等
综合考虑在北京高密度发展的现状
提出了“基于屋顶空间再生产的槐树社区”更新设计的概念
通过模拟槐树的生长和屋顶空间的再利用
将人们吸引到屋顶,从上到下渗透空间
建立居民社区机制,创造丰富的休闲生活
促进自给自足的生活方式
以解决片区空间不足、人口老龄化的问题
接下来,让我们细细品味“渺渺兮予槐”的设计研究
通过对居民一天活动的描述
针对出现的问题
我们天马行空地提出了
渺渺兮予“槐”的设计理念
.jpg)
到这里,这个设计就告一段落了
我们还想说:
这个设计是我们的畅想
看起来天马行空
其实不然
我们想探讨的是
在高密度的现代化大都市水泥丛林中
如何保留街区历史肌理的模样
同时结合现代化的生活方式
打造一处安静祥和、多元多彩的
老年友好型社区
最终的目标是
实现设计地块、当地居民
与城市、社会的问题化解
达成人与人、人与环境、人与社会的和谐关系!
北京市海淀区万寿路街道
责任规划师高校合伙人团队
文字/肖春瑶、丁浩然
图片/丁浩然、肖春瑶、张亚娟、鲁宇捷
指导:高巍
北京交通大学建筑与艺术学院
微米视界建筑工作室
发表评论
最新评论
投稿