昆山巴城镇西浜村农房改造 | CADG中国院
其他来源:CADG中国院投稿 2020-05-21
.jpg)
这是昆山巴城镇西浜村一座并不起眼的民房,因为临近2016年改造而成的昆曲学社,融入昆曲萦绕的优美意境,又因主人迁往城市,而在2019年成为乡村改造团队长期驻守村中、协助乡村振兴的基地。
老 房 子
村民老顾的家,在西浜村昆曲学社的东边。三年多前建成的学社,让这一带成为村民了解和熟知本土文化朝夕相处的文化媒介,时时余音绕梁,常有来者驻步。
.jpg)
2017年,老顾要跟孩子们搬进城里了。眼看这座曾作为学社建设临时指挥部的老房将要废弃,设计团队坚决反对有人提出的将老房拆除的计划。往来争辩中,当地领导亲自到北京,与建筑师协商小房子的去留,最后终于达成了一致——保留老房子,改造后交给设计团队使用,以方便团队长期驻守当地乡村,为昆山的乡村建设发挥力量!
于是,这座小农房有了新的用途——乡村工作站,并由昆山城投公司负责投资建设。细致用心的设计建造过程,尝试探索了普通农房的加固改造策略,再次以微介入方式恢复乡村文化,乡愁乡貌。
.jpg)
02
保 留
大家首先确立的原则就是主房不拆,保持乡村的风貌和肌理。这个决定从经济上说不算合理,因为房屋质量较差,空斗墙破损严重。加固的费用可能是新建的2-3倍,但是为了保留乡愁,保留老顾的回忆,也为了保护乡村机理,让村民认识到老房子的美,团队尽最大努力保护这栋岌岌可危的老房子,探索加固方法,寻找适合江南村落的更新方式。
.jpg)
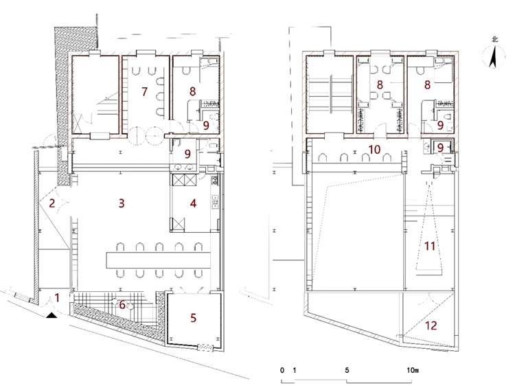
房子格局则完全保持不变,楼上两间卧室,楼下一间卧室,再加上由原来客厅改造的图书室,满足了日后入住“新村民”的生活需要。
.jpg)
房屋基础被重新用混凝土灌注,空斗墙被细心地开凿,灌注加固砂浆,墙外则用挂网砂浆加固。楼面板和屋顶很多地方,不得不采用角钢对于开裂部分加固。
.jpg)
修复屋顶过程中,大家对拆开吊顶后看到的木屋架赞不绝口,经过商议,施工队小心翼翼地将木屋架和草席子保留了下来,并确保日后可以安装回去。
.jpg)
为了保持老墙的机理,已经快脱落的水泥墙皮得到保护、加固,这不仅是对房屋原本风貌的尊重,更加是对保护技术的研究和探索。现场在设计师和业主代表的紧密监督下,对开裂的缝儿小心剔除,然后补刷砂浆,起鼓的位置被小心敲开,灌注粘接剂,整个修复过程如同修复一幅古画,细致入微,这也是整个团队对于乡村建设的基本态度:小心谨慎,细致入微。
.jpg)
02
新 建
其次,对于原本质量很差的附属用房,原来的厨房、杂物房等等,进行了新的规划。驻场团队需要较大的工作空间,于是采取了“大庇天下寒士俱欢颜”的策略,将院落覆盖起来,为了减少大屋面对乡村机理的影响,采用了三处折叠的方式,化解大屋面的体量。同时为了诚实地表达新建部分,这个屋面用了全新的钢结构和金属瓦,这也是和昆曲学社相同的处理手法。
.jpg)
大屋顶的南侧留下了一处小小的院落,为了提高采光,用了双层花砖墙。屋顶的西侧又是一个敞院儿,作为入口,院子里可以放农具,也可以存放电动车、自行车。总之,房子的“附属部门”充分满足了“新村民”生产的需要。
.jpg)
建筑的室内,完全是全新植入的设计方法,二楼的老走廊变成了工作台,新建的厨房上面是开沙龙的小剧场,而沙龙台阶的下面,是空调的出风口,竹匠们在竹地板上一个一个手工开凿了空调的出风口。
.jpg)
新老房子的交界处清晰可见,见证着两栋建筑之间的有机生长。整个设计再次把新项目织补到了西浜村的肌理中,风景依旧如画,小桥偎依人家,原来几乎已经被放弃的老村子,再次注入了新的生命。
.jpg)
.jpg)
.jpg)
这是一次用心的农房改造,也是一次积极的尝试,这种基于原有农房精细改造的策略表达了我们对乡村设计的一贯立场:
首先,要慢下来,昆曲学社2016年,乡村工作站2018年,景观修复一直在做,在这个小村子里的改造已经经历了5年多时间。;
其次,要少一点,昆曲学社实际使用面积不足千平米,工作站三百多平米,乡村本来就小,不宜一下子改造太多或新建一大片,毕竟会造成肌理的破坏;
最后,是精心与细致,我们的乡村是祖辈一点点留下来的,弥足珍贵,应该像修补传世之宝一样细致地刻画。
耐心而不是急躁,省钱而不是廉价,小微而不是好大,伴随而不是一时兴起。只有这样一步一个脚印,才能真正地修复乡村,复兴乡土文化。
.jpg)
.jpg)
.jpg)
建筑面积:367㎡
设计时间:2018
建成时间:2019
建筑设计:崔愷 郭海鞍 向刚 孟杰
景观设计:冯君 于然
室内配合:张林 陈萍 黄玉梅
业主单位:昆山城市建设投资发展集团有限公司
施工管理:高春吉 黄佳俊 董陈娟
室内设计:苏州金典铭筑装饰设计
施工单位:苏州国通建设工程有限公司
室内施工:昆山市华特装饰工程有限公司
加固单位:中诚建筑设计有限公司
发表评论
最新评论
投稿



