张家港职工文体中心 | 上海实现建筑设计
其他来源:上海实现建筑设计投稿 2020-04-24
.jpg)
项目名称:张家港职工文体中心
设计单位:上海实现建筑设计事务所
用地面积:23353㎡
建筑面积:54999㎡
项目摄影:吴清山
文体中心项目位于张家港市城北新区的核心地段,承载着文艺汇演和体育活动两大主要功能,内容包括大剧院、小剧场、会议中心,50米游泳池,室内羽毛球场、篮球馆和电影院,以及图书室、咖啡厅和健身房,包罗万象,希望在一个综合体的屋顶下,最大限度的实现市民业余生活的多样性。
.jpg)
常常都说文体不分家,其实观看话剧演出,和参加羽毛球锻炼,完全是两种不同的行为活动。人们的着装礼仪、社交方式和场景氛围,有着很大的差别。因此,设计的策略是安排两个广场,分别位于地块的东西两个端头,各自独立,互不干扰。一个负责文艺清新,一个表现活力动感,既方便各种人群的组织疏散,更利于塑造不同的空间场景。
.jpg)
西广场是文化广场,包括一个综合性的演艺会议中心,核心功能是1200座的大剧院,同时承接着地方政府各类会议的任务。广场占地约3000平方米,景观层次丰富,视线敞朗,满足大型文艺观演的集散要求。立面法度严谨,线条平直优雅,门廊高敞,布局端庄。饰面主材选用暖灰色的莱姆石,色彩沉着,肌理柔和,衬以精致的拉锁玻璃幕墙,塑造了具有仪式感的空间序列,共同形成了安静内敛的文化氛围。
.jpg)
.jpg)
东广场是体育广场,包括游泳、篮球、舞蹈等多种类型的体育场馆,主要服务于城北新区的居民。不同于西广场端庄优雅的仪式感,这边强调的是大众健身的日常性与运动感。相应的,建筑呈现出另外一种姿态,立面表情变的活泼灵动,透明轻盈。形体对比强烈,直面与弧线,金属锐度和光滑玻璃,渲染着体育的冲击力和力量感。其中,绿色是一个具有标签性的色彩,喻示着生命与自然,传递着时尚健康的气息。
.jpg)
.jpg)
主材选用打孔铝板获得透明感,运用三种不同深度的绿色,蓝绿、中绿和草绿,整体色调上深下浅,色块间次有机排布;局部单元饰以铝板实面,或是斜锲,或是凹入,获得斑驳的楔状阴影。阳光穿过幕墙的孔隙,各种绿色相互叠加,仿佛早春晨间的树林,透明朦胧而生机盎然, 这一特征性的表皮肌理,很好的诠释了空间场景的主题——运动和活力。
.jpg)
.jpg)
基于不同的使用场景,运用不同的立面表情,是另一种思路,也是一个大胆的尝试。在职工文体中心的项目上,存在着演艺和健身两种不同的行为,存在着仪式感和日常性的差异,存在着政府会议期间局部封闭管理的要求,这些都成为两个广场、两种表情的前提,成为一体两面实验的逻辑基础。显而易见的,两种手法的并置带来了意外活力,同时带来了对比和碰撞。如何将冲突转化为节奏,统一两者的调性,是接着必须处理的任务。
.jpg)
.jpg)
场景差异带来的问题,只能是回到场景/活动本身去解决。任何一种活动都带有基本的社交属性——活动各有各的精彩,交往却是普遍的出发点和需求。一直以来,强调公共空间的融合与交流,促使各种不同场景有机协调的共存,都是建筑师的不二法门。理想的是,如果公共空间能和基地特征发生某种紧密的联系,往往意味着更鲜明的个性,更强的统率力,更能将不同的场景融为一体。
.jpg)
基地北侧有一条小河,两侧的绿化不错,间隔放了些木制廊架,可以供人歇息。自然的,这条小河与建筑交织在了一起,所有的活动都与河流发生着关系。无论是观看文艺演出,或是体育健身,都会在河边相遇。这里是剧场的室外休息平台,中场时可以过来抽根烟;咖啡馆设在三层台阶的边上,台阶的高度正适合斜倚着看书;游泳馆和篮球场都设置了整面的落地玻璃窗,正对着河岸景观;当然,在健身房的跑步机上可以望见河边的柳树。
.jpg)
大台阶是剧院建筑的一个典型元素,在这里演绎成为闲坐、停留的场所,它开始于河岸,逐步爬升至二层平台,将河道绿化带入建筑内部。平台继续攀升至三层的花园,层层而上,绿茵葱葱。弧形大屋顶与弯曲的河道遥相呼应,顶部开设天窗,引入阳光,遮风避雨,提供有多种活动的可能性。
.jpg)
由于河流串联了各种活动,各种活动也产生了新的联系,看见的,听见的,窥探的,预设的,更多的是意料之外的关联。中年人在集团会议间隙,抽空欣赏河岸风景,估计也会看到游泳馆里奋力划浪的男孩,盘算着明天开始游个早泳;等待女儿芭蕾训练的妈妈,闲坐无事胡乱翻书,瞥见河边的老头岸边垂钓怡然自乐,想着下周让老父亲过来坐坐;小伙子们刚刚比完羽毛球,面红耳赤的说着双打步伐,听到三楼篮球馆的传来的拍球声,要么下周再比个篮球?人们从不同的广场进入,参加不同的活动,又在河边交汇、碰撞,带着新的心愿离开,不断的酝酿出新的可能性。
.jpg)
.jpg)
.jpg)
.jpg)
.jpg)
职工文体中心是一个非常集约的综合体。在极其紧张的用地条件下,每个功能单元,无论剧院、球场还是泳池,都是体积巨大,几无腾挪余地;各种业态消防要求不一,后勤、货运路线复杂。服务核是一个有效的模式,将货运、机电、消防集中在三个核心筒,集成高效,同时保持了前场的灵活性。
饶是如此,仍然面对着复杂的平面和技术整合要求,大跨垒大跨,机电设备分区控制......这是一个巨大的智力挑战,某种程度上更像是一个体力活,需要极大的耐心、时间和体力,各个巨大的体块被不停的腾来换去,不断的尝试各种可能性,试图找到一个更优的解决方案。在这个过程中,唯一保留的是庞大体块之间的缝隙,界面永远是透明和开放的,提供了交流的机会与可能,有如穿过巨石罅隙的光芒,弥足珍贵,饶有趣味。
.jpg)
.jpg)
总平面图
.jpg)
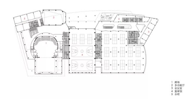
一层平面图
.jpg)
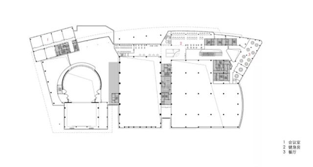
二层平面图
.jpg)
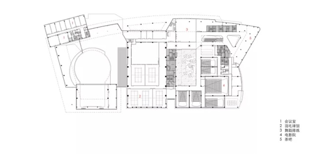
三层平面图
.jpg)
四层平面图
.jpg)
五层平面图
.jpg)
北立面图
.jpg)
南立面图
.jpg)
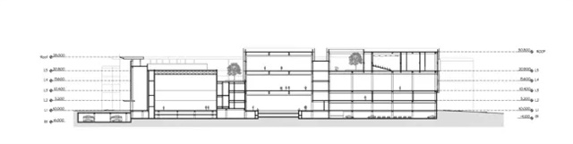
剖面图
.jpg)
剖面图
完整项目信息
项目名称: 张家港职工文体中心
项目类型: 建筑
项目地点: 张家港市长兴中路与职中路交口
设计单位: 上海实现建筑设计事务所
主创建筑师: 朱晓光 李洪
设计团队: 钟音 钱铨 梁璞 罗钦男 刘占兵 玉竹 王克文 赵树声
业主: 张家港市城市投资发展集团有限公司
建成状态: 建成
设计时间: 2016年1月-2017年1月
建设时间: 2016年9月-2018年12月
用地面积: 23353㎡
建筑面积: 54999㎡
项目摄影: 吴清山
发表评论
最新评论
投稿