景德镇陶溪川大剧院 | 奇普菲尔德建筑事务所
其他来源:奇普菲尔德建筑事务所投稿 2022-02-18

西南角人视图 田方方
项目名称景德镇陶溪川大剧院
设计单位戴卫奇普菲尔德建筑事务所柏林与上海办公室
项目地点江西省景德镇市
竣工时间2021年

区域规划鸟瞰图
临近景德镇市中心,大面积20世纪中叶建造的瓷器生产工厂形成了当地独特的城市遗产。在该项目再开发的第一个阶段,基地西部的现有建筑得到改造,成为城市结构中一个充满活力的公共场所。在项目的第二个阶段,基地东部将转变成为一个表演艺术校园,设有学院、演艺场所和其他附属设施。

总平面图
戴卫奇普菲尔德建筑师事务所柏林办公室为其制定了总体规划方案,不仅保护和改造现有建筑物以供重新使用,同时还为该城市区域补充新建建筑,以在更广阔的城市环境中注入当代气息。

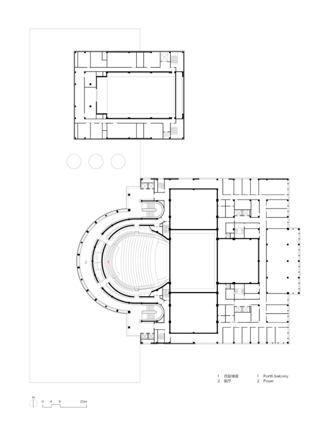
一层平面图

四层平面图
该文创街区的主要公共设施都位于该地区西侧的林荫大道上。大剧院是林荫大道北端的标志性建筑物,这座新建的砖建筑,向历史工业建筑的传统材质致敬。它包含两个主要演艺空间:一个古典歌剧院以及一个黑匣子剧院。
北立面图

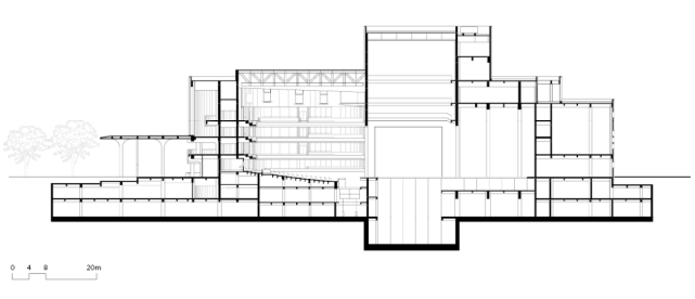
剖面图
歌剧院的观众席全部由胡桃木木皮饰面,可容纳1,200个座位。内部空间为马蹄形,设有3层楼座。通过这种欧洲经典的布局,观众席反映了观众和表演者之间社区型的、充满意义的联系,他们共同体验艺术表演,这是与当今数字环境相反的简单而真实的现场活动。黑匣子剧院内衬乌木饰面,舞台灵活且可移动,因此可适应各种当代表演场景。此外,黑匣子剧院还可以向室外空间敞开——允许在校园内举行露天音乐会。
三层前厅 田方方

观众厅 田方方
大剧院的两个演绎空间都通过首层宽敞的门厅进入,该门厅同时将建筑物向林荫大道敞开。马蹄形观众厅嵌入门厅中,在门厅内由木饰面的衣帽间和上方的画廊所包围。这个由蘑菇形立柱支撑门厅屋顶的现浇混凝土建筑物,让林荫大道的景观不断渗透到大剧院的内部。
![]()

门厅入口廊道 田方方


现浇混凝土蘑菇形立柱 田方方
统一的水磨石地面进一步强调了内部空间与外部空间之间的联系。弧形的观众厅从门厅屋顶上方凸起,以镂空砖块的形式呈现,在夜间像明亮的皇冠一样闪耀,并为这个新的场所增添标志性的特征。

舞台 田方方
项目名称:景德镇陶溪川大剧院
项目地点:江西省景德镇市
竣工时间:2021年
设计单位:戴卫奇普菲尔德建筑事务所柏林与上海办公室
主持建筑师:Ulrike Eberhardt(概念设计至施工图审核),杨旭(施工现场艺术监理)
设计团队:Martina Betzold,Alexander Bellmann,Sandra García Bornholt,
Jinhui Huang,Kristin Karig,Levan Kiknavelidze,Anke Lawrence,Hubert Pawela,Maxi Reschke,Julijana Steimle,Nils Stelter,Ken Polster,David Wegner
业主:景德镇陶文旅控股集团有限公司
本地设计院:上海建筑设计研究院
声学顾问:Kahle Acoustics
灯光顾问:黎欧思照明
建筑面积:42,400 ㎡
设计周期:2018–2020
建造周期:2020–2021
发表评论
最新评论
投稿