苏州大学附属第二医院高新区医院 | 中元国际
其他来源:中元国际投稿 2020-04-30
在高速发展的苏州高新区,医疗资源的需求也极其巨大。本项目处于高新区一个计划分步更新与扩张的医院老院区。结合城市规划,整合周边一片狭小而不规则的地块,建设分步更新的一期工程。
.jpg)
院区沿街实景
一期总平面图
规划总平面图
苏州大学附属第二医院高新区医院原为苏州市第七人民医院,位于苏州高新区浒墅关镇,医院东北侧为浒墅关路,东南侧为兴贤路(城市主干道),西南侧为明光路,西北侧为南津路。项目建设于医院老院区旁一片新征的狭小而不规则地块上,对于功能性极强的医院建筑设计来说极具挑战性。
.jpg)
门诊入口
整个院区规划建筑面积约12.8万㎡,定位为三级教学医院,日均门诊量3,000—3,500人次。其中一期工程约8.3万㎡,包括医疗综合楼、社区卫生服务中心、污水处理站、液氧站等。南地块为新征用地,拟规划建设一期工程;北地块为医院原有用地,拟规划二期病房楼、科研办公楼、中心花园及一期需建设的社区卫生服务中心。
设计过程克服规划制约、用地紧张且不规则、建设期间不停诊、分期建筑之间的衔接等多个难点,以先进的规划理念和科学的技术手段贯穿设计始终,通过两次改扩建实现医院的医疗流程、建筑形象、空间形态等的全面更新。
分步更新示意图
该项目需要在既有院区的分步更新中,实现流程的延续性与完整性;在狭小而不规则的场地上,解决复杂的功能需求及交通问题。也就是说,如何因地制宜地进行院区的规划布局,这显得十分重要。
由于在一期工程建设期间,医院需要开展正常的医疗服务,不能停诊停床,故拟在南侧新征用地上建设一期工程。设计将一期主体面向东南侧城市主路,门诊、医技沿街面布置,病房楼与规划二期病房楼后退,与现有老建筑呈三面围合之势。最终拆除被围合的现状建筑,形成全新的中心花园。
总平面图
设计中注重在不规则场地中保持医疗功能板块的规整性。为了适应不规则用地,分别扭转门诊和医技部分,中间形成一个梯形的门诊大厅;将沿街面和后花园适当架空,以腾出医院主广场和花园空间,从而应对场地的局促。
主体大楼以弧线和直线组合的形式与用地完美契合。门诊部位于场地最南端,面对地块主要开口方向,便于人流车流的进出集散。急诊部位于医技部东侧的底层,而医技部的位置居于门诊部和住院部之间,方便两部分的患者进行医学检查和治疗。
.jpg)
院内实景
结合一、二期功能规划,整合规划院区医疗流程。由于地形的不规则,该项目打破常规医院设计中传统的“门诊-医技-病房”三段式格局,以一条“医疗街”贯通全部医疗功能,联系门诊、医技、病房。医疗街始于门诊大厅,往北延伸联系急诊、医技与住院部,也将连通未来的二期工程。
本院区是苏州大学附属第二医院的分院,结合医院集团化发展规划,以医院本部为基础支撑,发挥下属机构的资源优势,立足高新区浒通地区,满足地方百姓医疗保健需求。在医疗工艺设计上充分体现集团化布局的高效原则,于分院设置“小医技”,同时综合利用本部现有“大医技”。
本项目检验科设置集中采血、体液收集,血常规和体液常规等检验项目,病理科仅保留能够满足手术中快速切片的要求,其他检验项目则将标本送至总院检验中心和病理中心,通过信息系统将检验结果传至分院,实现医技平台高效共享。
在门诊单元的设计上,充分利用场地不规则,设置大小不同的门诊单元,适应不同规模科室的使用需求。门诊单元里布置人性化设施,如在每层都设有挂号收费处;候诊空间与庭院结合,营造花园氛围。
苏州因其小桥流水人家的水乡古城特色,而有“东方威尼斯”的美誉,同时苏州高新区与时俱进、快速发展,使得苏州已经成为了一座有着深厚文化底蕴的现代化大都市。建筑形态设计从城市文化着手,深度挖掘独属于苏州的医院建筑形象。“水”充满灵性、自然流畅,立面即以此为入手点,主要采用横向处理手法,多处转角处采用圆角设计,以明快的色彩和流动的线条象征勃勃生机,使得整个建筑自然、流畅,呼应了苏州市“江南水乡”的柔美与自然。
.jpg)
鸟瞰效果图
设计中以门诊主入口顶部的飘蓬跨过整个门诊大厅,与医疗街平行延伸至二期。飘蓬通透、轻盈、富于动感,它贯通并联络整个医疗功能,具有空间引导性,是本项目的亮点。建筑南北底部架空以拓宽广场和花园空间,架空建筑底部以柱束支撑,这些柱束既是结构构件,也成为建筑外观的一部分。
室内设计继续延伸“水”的概念,以富于变化的顶棚和地面肌理呼应空间的变化,营造出独具特色且完成度高的诊疗空间。
.jpg)
室内实景
共享大厅是整个建筑立面的视觉焦点,使建筑形象更加立体饱满;穿插于建筑形体之中的曲线雨篷、顶层建筑体量的收分,使整个建筑的曲线感更加灵动、畅快。共享大厅位于建筑沿街面的中心位置,各医疗功能通过主街和共享大厅串联布置又自成盲端,连接门诊、医技与住院部,最大程度上缩短了医疗流程,形成医院的枢纽交通。
.jpg)
门诊大厅
先进技术
1. 通过现代材料诠释地域文化,展现现代医院建筑与传统地域建筑特点相结合的新形象,体现地域文化的优雅气质。
建筑立面设计采用现代材料及做法,诠释传统苏州建筑文化。建筑主体色调选用白色铝板,横向线条间穿插使用浅灰色铝板,与苏州白墙灰瓦的城市色彩相呼应。在带形窗设计中选用绿色的Low-E中空钢化玻璃,表达与风景园林的主色——绿色相呼应的点缀,使得冰冷的建筑具有活力与亲和力。在圆角处选用热弯玻璃,使得整个建筑外围护系统自然、流畅,整体建筑形象统一,力求表达江南建筑的轻盈隽秀之美。裙房区域的规整、饱满,高层区域的活泼、跳跃,相互映衬并表达了优雅包容的“现代苏州之美”。
.jpg)
门诊北入口广场
2. 采用先进的技术手段,建筑、结构一体化设计,从三维空间的角度完成复杂形体的设计。
本项目造型上的突出亮点之一,就是从门诊入口广场延伸至住院部入口广场的钢结构飘蓬。该飘蓬是三维曲面造型,采用树状分叉钢柱支撑。不同于普通规整的形体,如果采用常规施工图表达方式:平面、立面、剖面,将带来极大困难。在设计过程中,建筑、结构一体化设计,建筑专业通过“Rhino”软件精确三维空间定位,将整个飘蓬简化为三维立体模型,精准、快速地提交给结构专业,结构专业的受力反馈也在三维空间模型中完成调整,最终快速精准地完成异形复杂形体的施工图设计。
Rhino模型定位图及结构受力模型
3. 采用屋面电动滑盖式楼梯间,解决出屋面楼梯间与建筑形象之间的矛盾,电动滑盖与消防联动,同时解决楼梯间疏散和排烟的问题。
屋面滑盖楼梯
4. 精益求精的细节设计充分展示了一座高完成度的现代医疗建筑。
该项目对幕墙进行墙身系统策划,在满足节能要求的同时,适当提高外墙热惰性指标,并提高外维护系统的隔热性能,改善室内环境。内装修设计呼应建筑体形的灵动,医疗主街大厅等公共空间天花设计采用三角形铝板,与建筑空间曲线有机结合,地面铺装线条与标识相结合,使公共空间更具有导向性。此外,不同功能区域采用差异化装修,体现功能特色。
室内空间
.jpg)
取药大厅
.jpg)
技术图纸
.jpg)
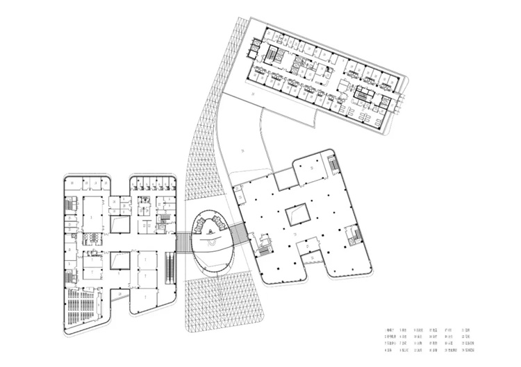
首层平面图
.jpg)
三层平面图
.jpg)
五层平面图
.jpg)
剖面图
.jpg)
东立面图
.jpg)
南立面图
.jpg)
北立面图
项目名称:苏州大学附属第二医院高新区医院
项目地点:江苏省苏州市高新区
主持建筑师:黄晓群
设计团队:罗浩原,刘涵,周兆发,宋延勇,李莉,姜山,陈艳平,杜贺,狄玉辉,张浩波,赵桐,赵玉艳
结构设计:中国中元国际工程有限公司
室内设计:北京派铂建筑设计有限公司
建设单位: 苏州大学附属第二医院
施工单位:苏州建设(集团)有限责任公司
用地面积:30,903.0㎡
建筑面积:831,205 ㎡
结构形式:现浇钢筋混凝土框架-剪力墙结构
设计周期:2013.7-2014.11
建造周期:3.5年
发表评论
最新评论
投稿