达州巴山大峡谷梦回巴国剧场 | BIAD
其他来源:BIAD投稿 2022-09-14
巴山大峡谷前身为宣汉百里峡,位于四川省达州市宣汉县境内,是国家AAAA级旅游景区、国家地质公园、省级自然保护区,是由喀斯特岩溶地貌构成的山地峡谷型自然风景区,也是国家级非物质文化遗产——川东土家族薅草锣鼓的所在地。
1 设计背景与理念
巴山大峡谷“梦回巴国”剧场是宣汉县打造国家级文旅扶贫景区——巴山大峡谷的重要项目,对助力巴山大峡谷九万多建卡贫困户脱贫致富起到了极其重要的作用。建筑与《梦回巴国》大剧同时亮相,受到省、市各级领导、全国文化和旅游系统、全国文联系统的高度评价,成为当地居民重要的文化活动场所。该剧场与山水环境相依,与剧目的诞生相伴,与巴国文化相映。从远处看到它的那一瞬间,大戏就已经拉开了序幕;生长于湍流深谷的巨石,忘剧院之形,得巴山之意;远观素雅、近抚刚毅的表皮上,斧凿出栈道之艰险。该剧场是观者与巴山前水在攀登中的浸入,这是一座外表可攀爬、游览的建筑,也是一座传承巴国先祖密码的建筑——神秘的象形文字“岩”在巨石栈道间若隐若现,更是一座坚守地域文化精髓和当代设计语言的建筑,以至简的语言诠释着巴国文化的大“道”。
2 建筑概况
2.1 方案诞生的初期想法
巴山大峡谷“梦回巴国”剧场结合当地山形,在建筑立面设计上追求坚毅、硬朗、雕塑感强的肌理效果,利用金属、GRC幕墙的结构,追求干净利落的构造(干挂做法、开缝或密封缝处理、内层防水构造等)。金属、GRC幕墙系统工程妥善解决了与各相关工程交界面、收边及收口部位的衔接处理问题,保证了建筑功能、效果的整体统一。建筑外立面与当地环境融为一体,并且独具新剧场、新风貌的特色。室外楼梯更是与巴蜀地区独特的山崖栈道相呼应,展现“蜀道难,难于上青天”的意境。该建筑突破了剧场原型,用“山石上开凿栈道”这句简单的话语牵引出动线引导、高点入场、消防疏散、屋面开放、夜景亮化、历史文化、“巴”字意象、剧目情境等内容。
2.2 区域位置
巴山大峡谷“梦回巴国”剧场位于巴山大峡谷景区入口处,北侧紧邻河流、堤坝,东侧距既有建筑约25m,南侧距山体约60m,其中南侧规划道路为景区主干道,西侧距离既有桥梁约110m,周边现状建筑以小尺度的商业居住混合建筑为主。
2.3建筑整体概况
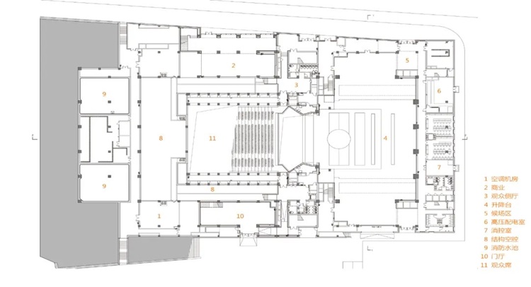
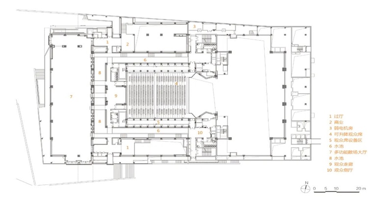
巴山大峡谷“梦回巴国”剧场约有800座,项目建设用地总面积为50000m²,总建筑面积为25218.5m²,其中包括剧场(面积为19481.4m²)、排练楼及宿舍(面积为5737m²)。建筑考虑到场地防洪的问题,将项目场地整体垫高3~5m。剧场主体建筑位于基地中西部,靠近基地的入口,建筑东侧分别设置了排练厅、宿舍楼;场地的出入口位于南侧规划路上,内、外流线划分合理。
3.1 立面GRC挂板幕墙工艺
该建筑立面采用了GRC挂板幕墙,立面肌理经建模推敲和1:1样板制作后确定样式。设计对转角、窗框等部位采用了构造和防水等技术,并结合造型,让幕墙与建筑砌体外墙间留有空气间层,使其起到保温、隔热、通风的节能效果。GRC挂板幕墙是一种近年在美国、加拿大、澳大利亚、英国等国家流行,并在世界主要发达国家迅速推广的绿色环保材料。它能在原本普通的新、旧混凝土表层,通过色彩、色调、质感、款式、纹理、肌理和不规则线条的创意设计,将图案与颜色进行有机组合,创造出各种天然大理石、花岗岩、砖、瓦、木地板等天然石材铺设的效果,具有图形美观自然、色彩真实持久、质地坚固耐用等特点。本次采用的GRC挂板幕墙可以大量消耗工业废渣及石粉,既可模拟石材效果,又可以变废料为原料,还可以降低成本,从而实现低碳环保的产业化发展。由于幕墙采用了低碳材料、水泥及纤维组织,不但可以做薄、做轻,还具有一定的柔韧性,有利于抗风载雨。综合这些优势,GRC挂板幕墙为建筑设计提供了更多的选择空间。
3.2 结构设计与舞台机械的结合
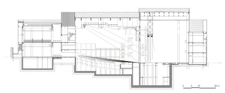
巴山大峡谷“梦回巴国”剧场结构设计的特点是与建筑景观、场地条件、建筑造型、建筑功能的充分结合。剧场立面以山、水为元素,呼应场地景观,通过结构大量斜向构件、悬挑、吊挂等方式,形成模拟岩石裂隙的建筑立面效果。为满足剧场内部观演功能的需求,设计在舞台及观众厅上空设置大跨预应力混凝土梁,实现观演建筑对大空间的需求。作为专属剧场,剧场内的舞台与戏剧是完全匹配、订制化的,结构设计通过设置局部夹层、局部下沉、顶部非标准马道、天桥、栅顶等方式,以满足设备、灯光、舞美及演员跑场等使用需求。
3.3 升降观众席设计
巴山大峡谷“梦回巴国”剧场观众厅传统固定式座席被9组台面尺寸为24m×3m,行程为9m的大型舞台升降机械所替代。9组大型舞台升降机械可同步编组、单独运行,形成24m×27m的升降变化区域,将观众厅与舞台区汇为一处,让观众与演员合为一体。剧场内部将观众厅设计为270˚半包围式的观演厅,分块式机械舞台具备升降、旋转、开阖、悬浮等功能,打造天地逆转、山河倒悬、烈火扑面、巨浪滔天等极致的视觉体验。同时,配合360˚全包围式的视音频技术,观众能够最大限度地沉浸在剧情氛围中,体味巴国灿烂的文明。
4 剧场使用效果
4.1 剧场外部环境
巴山大峡谷“梦回巴国”剧场的外立面完全融入当地环境,既不突兀,又不失质感。景观设计以人为本,结合景区周边风格,将绿化率做到最大化,同时满足消防、参观流线合理的需求。可行之径——清晰的栈道路径,让观众在不知不觉中浸入其间;可望之形——巨石与大尺度山水相融,象征巴国人坚毅的性格;可游之墙——巨石四面斧凿栈道,外墙可随意游走,直至屋面,在峰回路转中,钟情山水;可居之器——博物馆和“梦回巴国”场剧,相隔于“深渊”。这是一次体现出地域性和当代性的创作实践。
4.2 剧场室内环境
巴山大峡谷“梦回巴国”剧场作为《梦回巴国》剧目的专用定制剧场,是为宣汉县脱贫攻坚的重要项目。本项目严格按照高水平、高标准剧场进行设计,从表演场地到表演形式都进行了创新,力求为观众提供一场前所未有的视听盛宴。室内装修风格延续了建筑外观及当地地貌风格,采用人与自然相结合的设计,满足了特殊隔声、防火、防水的装修要求,同时做到了装修材料均满足国家、地方相关绿色环保要求,严格控制了各类有毒物质的释放量。
4.3 剧目开演
《梦回巴国》是由著名导演哈文及其团队倾力打造集歌、舞、特技、影像等多种模式于一体的大型沉浸式史诗剧。剧情立足古老巴国文明,以横穿古今的、悲壮凄美的爱情传奇为主线,引领观众跟随男女主人公惊心动魄的穿越脚步,层层揭开古老巴国的神秘面纱。该剧目与罗家坝巴人遗址博物馆交相辉映,亦真亦幻,虚实相生。
5 综合效益
社会效益:巴山大峡谷“梦回巴国”剧场是宣汉县打造国家级文旅扶贫景区——巴山大峡谷最重要的项目,对助力巴山大峡谷深度贫困区102个贫困村、9万余名贫困人口脱贫,辐射带动周边21个乡镇46万余人增收致富起到了极其重要的作用。
环境效益:本剧场有效地规划、更新了渡口镇的环境面貌,梳理了其与周边的山水环境、村镇民居、配套设施、交通道路的关系,体现了“青山绿水就是金山银山”的发展理念。
经济效益:本剧场带动了当地就业,并通过演出运营不断扩大影响,实现稳定的演出收入,造福一方。近两年经营业绩如下:2019年,景区共接待游客38.3万人,不含税收入为4669.38万元。同时,巴山大峡谷景区可提供直接就业岗位4000多个,间接就业岗位10000多个,在文化旅游业的引领下,促进农村劳动力转移就业和农民增收,树立国家旅游扶贫综合开发和实施乡村振兴战略的典范,带动片区经济发展。
项目名称 | 巴山大峡谷梦回巴国剧场
业 主 | 宣汉县巴山大峡谷旅游开发有限公司
设计单位 | 北京市建筑设计研究院有限公司
建设地点 | 四川省达州市宣汉县巴山大峡谷渡口土家族乡
用地面积 | 8 000 ㎡
建筑面积 | 25 218.5 ㎡
设计总负责 | 刘淼
建筑专业 | 刘淼,张竟一,蔡虹,铁明培,徐盼,崔生汇
结构专业 | 吕广,于东晖,王鑫鑫,张亮,蔡翀,谢中宇
设备专业 | 于永明,孙成雷,邹亚雄,刘婉平 电气专业:段宏博,马晶,徐昕,李宗昊
室内设计顾问 | 李国奎
舞台顾问 | 北京市星凯达舞台技术有限公司
建成时间 | 2020年
图纸版权 | 北京市建筑设计研究院有限公司
摄 影 | 根本堂建筑摄影,陈鹤
.jpg)
.jpg)
.jpg)
.jpg)
.jpg)
.jpg)
.jpg)
.jpg)
.jpg)
.jpg)
.jpg)
.jpg)
发表评论
最新评论
投稿
.jpg)

