景德镇御窑博物馆 | 朱锫建筑事务所
其他来源:朱锫建筑事务所投稿 2021-03-08
.jpg)
西北视角
项目名称:景德镇御窑博物馆
项目地点:江西,景德镇
建成时间:2020年
建筑面积:10 370 m²
结构形式:钢筋混凝土拱壳及砖拱
建筑设计、室内设计、景观设计:朱锫建筑事务所
合作设计:清华大学建筑设计研究院有限公司
主持建筑师:朱锫
前置批评:周榕
艺术顾问:王明贤、李翔宁
设计团队:由昌臣、韩默、何帆、Shuhei Nakamura、刘伶、张顺、吴志刚、杜扬、杨圣晨、陈奕达、贺成龙、丁新月
结构、机电、绿建顾问:清华大学建筑设计研究院有限公司
幕墙顾问:深圳市大地幕墙科技有限公司
照明顾问:北京宁之境照明设计有限责任公司
声学顾问:浙江大学建筑技术研究所
业主:景德镇市文化广播电影电视新闻出版局,景德镇陶瓷文化旅游发展有限公司
总承建商:中国建筑一局(集团)有限公司,中建一局华江建设有限公司
第一次前往景德镇御窑博物馆进行参观,并非从规划的主路进入,而是在御窑厂被保护的小巷穿梭之时,突然闯进一片开阔的场地,御窑博物馆便出现在眼前,有些误入桃花源的感觉。桃花源是人们试图重返精神乐园的地方,因为在那里我们可以自得其乐,自然而然。这或许是朱锫“自然建筑”所追求的方向和目标——不断地向自然学习,使人的生活回复到某种接近自然的状态,而建筑应当像是一种人造的自然物。实际上,自然的理想具备某种乌托邦的性格,它是永恒否定的。终极的否定即是否定思维本身,这样一种最高层次的反思重新肯定了物质存在,人们把人类主体性丧失的状态当成理想国。需要指出的是,这里所说的自然不仅包括现代意义上的自然(nature),而且还指道家哲学的自然而然(Spontaneity),其含有建筑师在生活世界面前所持的“应机顺变”“心相时境”的生命意趣和艺术姿态。
在通往绝对自然的道路上,当人们意识到最终目的地并不存在,而旅途本身就是真理的时候,人们或许就能分享桃花源的快乐。以否定和辩证的方式理解自然,自然的概念就得以明晰地定义。绝对的自然只能存在于不可企及的状态。虽然朱锫强调建筑自然而然流露的状态,并能抵达观者的心灵,但他的思虑充满纠结的痕迹。事实上,建筑师在创作时是否处于一种自然而然的状态并不重要,关键是他的作品让观者产生这样的感觉。从建成的御窑博物馆来看,朱锫眼中的世界不是一个虚假的无情宇宙,而是一个充满自我完善可能的生活世界。如果自我完善假定了一个完美的终点,它也悬置了这一终点是否存在、如何存在的问题。因此,朱锫提及的“自然”拥抱了自身的反面,包括地域性、物质性、技术性、文化典范的规定性等等。
.jpg)
左图:总平面图
右图:城市肌理和项目区位
.jpg)
徐家窑复建
.jpg)
鸟瞰
.jpg)
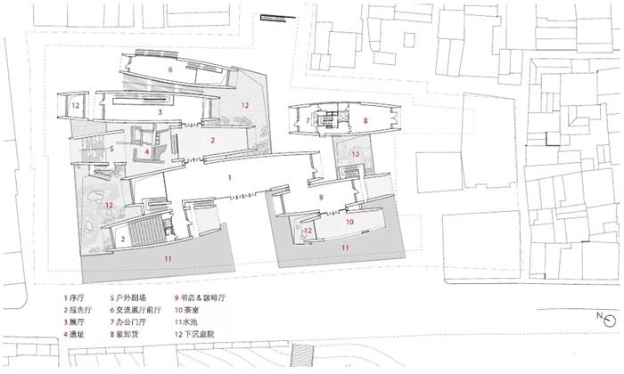
首层平面图
.jpg)
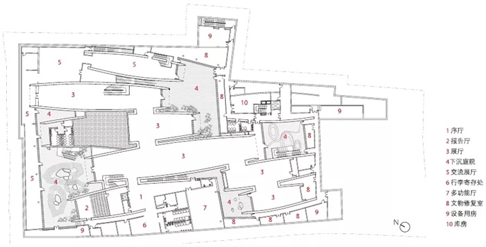
地下一层平面图
1 交织与融合:对场地条件的阅读
康熙五十一年(1712年),法国传教士昂特雷科莱(中文名殷弘绪)在一封发往欧洲的长信中,对景德镇的城市风貌做了生动的描写。景德镇老城位于碧水涟漪的昌江两岸,江水穿越而过,南河环绕于东南,西河贯穿于西岸,形成了三水环城之势。老城之内,小巷子与昌江垂直以便瓷器的运输,大街市平行昌江布置,两侧布满了商铺。景德镇御窑厂位于该市珠山中路北侧,包括龙珠阁周边地区和市政府原办公大院及宿舍区、居民民宅等区域。御窑厂是元、明、清时期专为宫廷生产御用瓷器的所在地,是中国历史上烧造时间最长、规模最大、工艺最为精湛的官办瓷厂,因此地下文物遗址丰富。随着人们在遗址上的频繁活动及不断开发,御窑设施和地面建筑早已荡然无存。御窑博物馆就位于与御窑遗址东侧相邻的相对受限制的历史区域中。御窑博物馆的地域性实践首先融入了对场地的阅读。作为重要的城市文化建筑,博物馆顺着昌江走势平行布置于政府给定的场地之内。
在博物馆设计中,朱锫以一种有机的方式回应了城市秩序和地段环境的要求。站在龙珠阁顶层俯视御窑博物馆,多个砖拱排成一种“横看成岭,侧看成峰”的山体类型,并以自由匍匐之势与周边的建筑相互融合。南北向摆放的拱顺应夏季主导风向,让风穿越建筑,建筑师在考量建筑布局的同时充分顾及了当地的气候条件。建筑用地周边的现存环境多元且异质——古塔龙珠阁、高层住宅楼、古代街巷、名人故居、众多私家民窑遗址等,纪念建筑与日常建筑共生共存。这种多元的异质的环境与自然产生共鸣,多样的异质空间给人带来了丰富的感官体验。
场地中耸立着一根高耸的烟囱,烟囱的存在提醒着御窑厂遗址曾经的规模与辉煌。建造地段西临御窑遗址,南侧、东侧被历史的老房子所环绕。基地边界呈现出锯齿状(里出外进的关系)就是在应对周边受到保护的民居。虽然北侧的高层住宅在体量上对博物馆形成了一定的压迫感,但是,当视线穿过砖拱远远望见住宅之上晒晾的衣物,耳朵听到楼上传来熟悉的唤喊声音,这种现象给庄重且神秘的博物馆带来与日常有关的生活气息。实际上,环境的多元性在一种非等级式的体验过程中将人们对项目的注意力适当地分散了。
由于此处为历史街区,建筑的限高9 m,因此,设计最初考虑的即是建筑的尺度和体量。8个尺度各异的砖拱(从地平到拱顶高5 m~7 m,宽6 m~8 m不等)若即若离,以谦逊的态度和恰当的尺度植入复杂的地段之中。建筑的各个拱体并非平行垂直的关系,微微的角度变化也强化了空间的视觉张力。这样,建筑就被刻画得好像人的目光可以随意变换水平方位进行纵深观看一样。这或许是朱锫从中国绘画中获得的教益——中国的绘画从未发展出以数学为基础的直线透视法,它的透视法的立足点是游移变化的,并不存在单一的消失点。这样,建筑师处理着各种微妙的关系,一个看似随心肆意的设计却极具针对性。
对于御窑博物馆而言,具体的地点不仅意味着具体的场地、气候,还有具体地点存在的既有建筑,甚至这既有建筑是必须保留和审慎处置的文化遗产。据朱锫介绍,施工过程中遇到一个比较大的挑战——开工之时发现了一个新的晚明遗址,设计团队为此重新绘制了设计图和施工图。同时,这也印证了朱锫最初的判断,即方案采取化整为零的策略以应对始料未及情形的出现。这意味着,每一个拱状展厅都是可以通过移动来调整,它最终呈现的形态趋向于一种朱锫所认为的相对合宜的状态。从这个角度看,这一策略与建筑整体上的游移变化不谋而合了。
以这种方式,朱锫创造了一种对话的场景:对古代的追忆与对现代的感知紧密地交织在一起。对比西班牙的罗马艺术博物馆,御窑博物馆的自然布局和已经开挖发掘的地下遗存并没有强调严格的对位关系以及对轴线秩序的控制,而是自然而然地将拱体的断开部分与遗址交织、融合在一起,建筑师这种松弛的处理方式使得建筑的形式关系得到自由的表达。更重要的是,这处随机应变的“断开”也为建筑带来生机和活力,成了博物馆的点睛之笔。
实际上,现代思维中涉及场所、废墟、遗迹等价值的方法学原理具有兼容性,建筑师对这一关系的处理显得有机且自然。在北侧遗址庭院,朱锫着重设置了两处观赏庭院遗迹的平台。首先是“被断开”的拱端自然成为一个人们的观游平台,游人顺梯而下,穿越遗址走向一处室外小型剧场。站在看台之上,游人的视线面向遗址,这里成为一处可以观望、休息和闲谈的场所。另一处则是从旁门而入的外悬楼梯,楼梯平台为俯视历史遗物提供了一个独特的视角。此处楼梯两跑成角度落下与场地结合。这里,两个庭院,一处遗址,一处展示,一高一低,通过洞口楼梯进行了空间和视野的连接和转化。
这里,各种断壁残垣不仅是博物馆的展品,同时也是博物馆建筑自身的组成部分,这是对时间变迁的回应,不由得让人想起斯维勒·费恩 (Sverre Fehn)为保护遗址和展出考古发掘文物而建的海德马克遗址博物馆(Hedmark Museum)。建筑师将新建部分与废墟的不同地层有机地交织、融合在一起,这样的结合是通过一条链接过去与当下的“地平线”来实现的,目的是将不同的部分串联起来。在御窑博物馆,朱锫并没有采用“走道”的方式,取而代之的是“亭台楼阁”的策略——以人的视线和身体的运动为契机,通过不同的空间形式、高度、方位将历史遗迹呈现出来。这样,各部分之间互通声色,以实现曲折尽致、步移景异的自然而然的目的。御窑博物馆虽然不是以保护遗迹为目的的建筑实践,但是他对于如何处理场地的新旧关系有着明确的认识——借以历史遗迹对自然而然做出巧妙的阐释。
.jpg)
左图:西南视角
右图:下沉庭院
.jpg)
自展厅观户外剧场
.jpg)
自户外剧场观明瓷窑遗址
.jpg)
茶室
.jpg)
剖轴测
2 身体与空间:游走的体验
与御窑博物馆被锚固在特定场所之中的感受不同,在建筑内部的游走体验建立了与之相反的空间感知。御窑博物馆正是在确定和不确定、边界和非边界之间的张力中显现自身的。与功能指向的建筑平面相比,自然平面的优势是释放了流线,让人可以以游牧的方式使用空间。在御窑博物馆最大的平层展厅,人的视线一览无余。然而,与隐含在游牧状态中的平滑不同,在游走御窑博物馆的经验之中,丰富的空间层次使建筑与人呈相互沟通的关系,内外、上下的空间经验层层展开,让人可行、可望、可居、可游。在御窑博物馆中游走,由于流线的曲折,建筑犹如迷宫,在每一个迂回之处场景都被更新。
可游,表明了一种在生活中四处流动、漫无目的,同时又细心专注的行动方式。哲学家维特根斯坦(Ludwig Wittgenstein)认为,如果迫使自己的思想违背自然的倾向而企图使两者进入同一个方向,那么它们立即就会变得淡而无味。在维特根斯坦看来,人应当顺从于变化不定的游之过程及其自然倾向。而更为重要的是,“‘游’没有边界,这是因为处于游中的人不会受到‘承诺’或‘保证’的界定与限制。”
空间游走的经验在某种程度上都是情境式的,它会被获得经验的场所所触发,这样的场所往往会给人留下深刻的印象,而且有着重要的身体维度。例如,御窑博物馆入口右侧的水院与拱亭(咖啡厅与茶室)之间以高约1 m的悬窗实现了视线上的沟通。水平悬窗诱使人们弯腰探身席地而坐,视线穿过水面望向远方。与之相对,从博物馆报告厅拱体之上划开的一条6 m长窗向外窥视,横窗下端恰好与博物馆室外池水齐平,水面与浅置的石头静默相伴,与远处的砂石、树木一同被框入眼帘。
第一次参观御窑博物馆像是在梦游,之后又来体验才找回了镇定,现在清晰记得游览的路线。与苏州御窑金砖博物馆功能和流线的布局不同,景德镇御窑博物馆入口并非设在建筑的长轴之上,游人从建筑短轴进入后连续穿越拱壁,游览过程中不断与室外环境交融。当我们进入博物馆门厅然后向左转时,会经过一系列拱形的展览空间,这些展览空间的大小、角度各不相同,并且与开放空间相融合。游人穿越楼梯上下,置身于尺寸不同的庭院之中。庭院也并非孤立存在,而是与周边功能用房相互融通。实际上,朱锫不仅排布了展览空间的功能性内在关系,同时又以游走的体验捕捉了这种秩序,为建筑的空间形态赋予错综但又能够辨识的内向视野。
实际上,在御窑博物馆自由闲散的环境氛围中也体现出了空间的流线关系和主次关系。博物馆的固定展览空间借助于一个密闭的环路完成。两个临时展厅可以同时或分别并入环路,融入整体展览,也可独立存在,它们有自己独立的入口和出口。修复室与机械室布置于主要展厅周边,不仅方便使用,还可以将古瓷修复过程融入展览,成为展览空间的组成部分。由于临时展厅与修复室、机械室主要位于地下一层,且相互连接,朱锫建立了灵活紧凑的空间关联,避免了过度渗透可能导致的紊乱无序,在层次丰富和紧密高效之间建立了平衡。
在御窑博物馆的主要空间,朱锫通过展厅局部上空、木制门窗间隔、内外楼梯上下等设计手段,实现了可通视可对望、有转折有铺陈、拱中有洞、拱洞相连的空间效果。作为交通枢纽的楼梯,其与楼层的结合延展了空间的丰富性。御窑博物馆中的楼梯,有宏阔有逼仄,有长远有近耸,拱上下以及拱之间由可以攀爬的梯彼此连缀,便于通达与观望。在御窑博物馆西侧拱体,一条通向报告厅前拱的狭窄长梯隐蔽于建筑主入口下方;而在东侧拱体,一条沟通交流展厅与地面的单一路径隐藏在建筑身后。最为显眼的是,在御窑博物馆北侧两拱之间,一条较为宽阔的坡梯贯通上下。这里,建筑师让人从地面向下沉庭院形成一个俯瞰式的回望,唤起了游人置身“真山”的类比联想。
对于“山林”而言,似连似断的庭院是作为自由拱体的空当而存在的。也就是说,御窑博物馆拱体的自身变幻决定着院落的格局,但它们却成为空间感知的核心内容。院落是中国传统建筑的基本原型,也是得以将自然与人们的生活方式纳入这一体系的基本保证。在御窑博物馆,不同的庭院各就其位互相关照。同时,不同的院落也使拱体之间的关联更密切,其中包含着建筑与自然达成平衡的构思。几个院落非内非外、既内又外,有的严密笃实,有的朴拙疏散。它们并非单纯造景,而是有功能做基础,与真实的生活不相割裂,创造了独特的审美体验。
从御窑博物馆的长梯展厅南望,一座尺度适宜、灵巧疏散的庭院成为游人的视觉焦点,也是室内空间的自然延伸,并引出通往修复区域的路径。实际上,御窑博物馆塑造了很多空的拱体,它们并不是纯室内,而是处于半户外,一方面为人们提供了遮阳避雨的空间;另一方面,端头末尾的灰空间模糊了建筑与周边环境的界限。御窑博物馆整个设计都在协调环境内外的关系,给人造成的是不断在内外之间游走的经验。例如,位于博物馆入口右侧地下的袖珍庭院故意高出地坪,这处庭院是作为博物馆多功能厅的一部分而存在的,似乎对于厅内的人来说,这一庭院才是真正的风景——在逼仄的院落里,自然像盆景一样浓缩成两株石榴、一片天空。朱锫在御窑博物馆多处采用此手法,将有着严格功能要求的封闭房间向外打开,建立室内外的视觉关联。
.jpg)
茶室前水景
.jpg)
.jpg)
剖面
3 两种语言的结合:对类型的跳脱和重构
至于御窑博物馆的结构形式,人们大多认为其是建立于在城市中寻找建筑原型的方式上——朱锫延续并重构了原型,以适应一座当地现代建筑的目的和意图。刘克成在御窑博物馆品谈会上曾说,朱锫放弃了多数人会先被吸引的外壳和木架,而选择了被隐藏的窑拱作为原型是非常明智的做法。在考察这样一种与原型相关视野的时候,历史的意义显而易见。砌窑一业,从元代开始经景德镇当地人传世经营。重要的历史文献中关于砖窑的最早记载,见于乾隆八年(公元1743年)督陶官唐英的《陶冶图说》,“窑制,长圆形如覆瓮,高宽皆丈许,深长倍之,上罩以大瓦屋名窑棚。其烟突围圆,高丈二余,在后窑棚之外。”而传教士殷弘绪在给奥日神父的信件中也有讲述:“我所见过的这种窑约有一人高,约有法国最大的酒樽宽,是由大约一指厚、一尺高、一尺半长的砖砌成的……窑体底部离地面约有半尺高,建在两三层厚而不宽的砖上。窑的周壁用砖砌得很好……在周壁与窑体之间留有大约半尺宽的空隙。”
笔者认为,朱锫眼中的类型是一种以历史建筑为基础的潜在设计规则,这些规则足够宽松并且具有普遍性,从而使得历史模型能够应用并适合于新环境。实际上,通过遵循意义的内在变形原则,新形式会保持一定程度的历史连续性,同时也能够满足其新功能要求。恰如朱锫所说,寻找文化根源与创造新的经验就如同他思考建筑时的“车之两轮,鸟之两翼”。朱锫曾说:“御窑博物馆的尺度在剖面上是接近徐家窑的,当人们在博物馆里参观、游走时,可以令人联想到古人在瓷窑中劳作的情景,这种根源性重塑了一种过去的经验,将人、窑、瓷的血脉同构关系重现再现。”在这一思考体系中,御窑博物馆体现了传统与现代之间的一种类型关系——以形象或是形式去描述建筑的类型学更多地是从具体事物中抽象出来的共相的理想类型。
刘东洋在《从罗西到王澍》一文中使用“延异和建构”去描述王澍的话语方式和设计策略。如果类比地看,御窑博物馆是否也是一次对阿尔多·罗西(Aldo Rossi)结构性类型学的延异和建构?这一问题涉及到对罗西与索绪尔(Ferdinand de Saussure)在认识论上的联系的思考。罗西曾说自己要像结构语言学家那样发展出一套研究城市的科学程序来。然而,与结构主义“技术官僚式”的符号语言学不同,文学语言通过隐喻以一种科学描述无法实现的方式呈现。朱锫眼中的语言是一种人文精神现象,一种诗性创作,是处于一定的社会历史状况中的人对意义的创造和拥有。人们运用这些意义表达自身的情感,而不是成为符号统治的奴隶。这样,语言是主体的一种实质性表现,这也诠释了海德格尔“语言是存在的家”的说法。这种体验性语言与分析性语言不同,是一种形式模糊的文学语言,具有诗意表达的能力,能够拓展传统的边界并能度量被表达内容的极限。
列斐伏尔(Henri Lefebvre)的日常生活批判思想着意强调了语言的日常生活世界和人的生命世界的根源。爱尔兰作家詹姆斯·乔伊斯(James Joyce)的代表作《尤利西斯》(Ullysses)描述了一位寻常之人发生在一天之内平淡琐碎的日常生活情境,从而揭示了日常生活中荡漾着一股强有力的激流,即与宇宙生命起源融为一体的尼采式的永恒轮回。在乔伊斯的语言炼金术中,日常生活的卑微与神奇、瞬间与永恒浑然一体,日常生活、人类历史与宇宙融为一体,一天的日子便将世界的与文明的历史囊括其中。在朱锫的意识中,一种叙事性的重复、回忆、复活,既是神秘和幻想的范畴,也是被藏匿在建筑中的现实范畴。
与此类似的,在景德镇流传着这样的描述:“……旧时孩童在冬天上学途中,会从路过的瓷窑上捡一块滚热的压窑砖塞进书包抱在怀中,凭借这块砖带给他的温度,捱过半日寒冬。”“……在寒冷的冬天,姑娘们趁着歇窑时候的余温洗澡、洗头,洗过的衣服也会铺在窑壁上烘干,学校也常常会移至温暖的瓷窑旁;夏季,歇窑期间,砖窑所散发的湿冷空气也是孩童玩耍、年轻人交往、老人纳凉的去处。”此一描述可以作为一种当地的文化习惯对我们的感知产生影响,而将语言作为表述性行为举止的一种形式,对朱锫而言是极为重要的。在御窑博物馆的创作实践中,景德镇当地流传的语言为建筑师提供了体验性思维的可供性。
在挖掘御窑博物馆创作的根源性上,朱锫曾说:“与窑有关的描述深深植入到每一位当地人的血液之中,窑不仅仅是一个生产场所,还成了重要的生活和交往空间,塑造了当地人的生活方式,‘拱’这种原始的建筑形态也就自然形成了。”朱锫意在从日常生活的语言积淀与艺术瞬间美感中寻找新的精神家园,用来拯救那个应该具有的“真实”世界。这既不是形而上学解构方法,也不是理性的重建方案,而是一种“回溯式前进”的方法,也就是通过预以回到本真的源头与起点的批判道路而超越了现代性结构和类型的地平。从这个意义上说,朱锫提及的自然建筑已然不是对罗西结构性类型学的延异和建构,而是结合了文学语言,从而成为对它的跳脱和重构。
.jpg)
书店和咖啡厅
.jpg)
拱、窑砖、光线
.jpg)
报告厅前厅
.jpg)
序厅
.jpg)
拱、窑砖、光线
4 思辨的建造:材料、结构和工艺
在建筑的材料和结构方面,受到徐家窑的启发,御窑博物馆采取的拱的形态并不是笔直的筒拱,而是两端有收拢,略显纺锤形的一种优雅美观形态,同时体现了建筑师朱锫的造物驾驭和支配能力。对于建筑的结构而言,每个建筑拱体的结构近似三明治,内外两层砖中间为钢筋混凝土,夹在中间的混凝土拱为主体结构,以抵御地震时的侧推力,外部采用新老窑砖混合砌筑。在现代主义的语境下,这种三明治结构似乎违背了“砖想成为拱”的金科玉律,笔者以为这种看法是把材料与结构的认知教条化了。
“只有在与周遭世界中器物打交道,即在本真地操劳之际我们才有可能走上一条通往存在物存在的真理和意义的信道。”海德格尔这句话告诉我们,如果不按照现实而具体的标准,而按照广泛被接受的道德标准,这样表现出的建造特点也会被视为是缺乏道德的。一种批判性的说法是建筑师对建造现实条件漠不关心而去套用标准。对于建构,朱锫认为:合理、简单、易行的建造是建构概念的核心。建筑师在方案初始阶段考虑过使用砖来建拱。但是,由于考虑到砖砌的方式无法抵御地震侧推力,为了取得更加坚固、自由的建筑形态,朱锫并没有强迫自己,也没有勉强建造,而是采用最简单易行的建造方法,即中间混凝土、两侧为砖的三明治结构体系。
事实上,材料和结构的概念始终在演变,“真实”也是被构筑出来的。“建筑是在一种叙事下建造的,而这种叙事比建造的真实性更为复杂……建筑的建造讲的并不是真实与谎言之间的对立,而是在讲一个故事,而这个故事就变成了问题本身。”例如,从拱的正面的视觉效果来说,为了取得拱壁的轻薄之感,建筑师在拱的端头减小混凝土墙体厚度,内侧向外略微打开,同时也是拱体结构受力分布的反映。之所以提到这个问题,是因为建筑不仅是材料的搭建,还有建筑师愿望的表达。也即是说,建造的目的不仅是为了保存真实,也是为了赋予其以人文面貌。
据史料记载,古罗马人很早就开始采用混凝土进行建造,混凝土可以浇铸塑形,当被塑成拱、穹顶等形式之后可以产生大的空间跨度。罗马人运用这项技术建造了筒形拱。在混凝土建造时为了防止混凝土与木模板的粘连,当地人用两层砖表皮当作混凝土的模板并在其中灌入混凝土。人们已经接受了砖拱的优雅外形,因此在做混凝土模板的时候把砖拼成了圆拱,但实际上是粘贴在混凝土结构表面的面层。路易·康(Louis Isadore Kahn)在奥斯提亚古城(Ostia Antica)看到的拱大都是以砖为皮的混凝土拱,或许是这些被符号化后的“假拱”影响了他。对于御窑博物馆的砖墙,砖的表层并非表现“砖想成为拱”的物理真实,而是建筑师旨在通过砖的表层唤起人们对景德镇砖窑时间与温度的记忆。
建造施工时,传统工匠以一种特殊的方式建造了没有脚手架的砖窑。以徐家窑为例,砖从受力的地方开始竖向砌筑,借助于无数个由单层砖构成的、不同渐变曲率的横向剖面拱,实现双曲面砖窑的建造。这无疑是一种自然的建造方式,也就是事物的存在方式和状态,即一般所说的“应该如此”。为了实现徐家窑一样的双曲拱,御窑博物馆的设计和施工团队发明了一个水平移动可以伸缩的脚手架装置,它有很多可伸缩像蜈蚣一样的爪子。这样浇筑某个尺度之时可以设定一个长度,随着轨道的移动,爪子也一点点伸缩,完成不同曲率的浇筑。对于这种施工方式是否准确的问题,朱锫认为这种方式反而更有趣,会出现动态的、意想不到的偶然效果。
从砖的表现效果来看,建筑师借用窑砖时间的痕迹和叙事的效果创造出生动自然的立面肌理。就像人们将诗歌当中所使用词语的方式作为一种将语言的表面“进行丰富”的过程去描述一样,一幢建构清晰的建筑也会把人们的注意力吸引到自身的材料性上。御窑博物馆窑体的表层砌筑用到很多老的窑砖,从过往翻新或维护、建造或拆卸项目中遗留下来的材料秉承着“将来可能会被用到”的原则被收集和保存起来。这些材料的专门性有限,但它们代表着一套真实及潜在的关系。建筑师对废物的获取和处置表明了我们如何利用事物并从中获取时间。而朱锫将新旧砖块结合在一起,目的即是展现新旧物体在人类学意义上的一种拼装效果。
栾窑是当地人独特的智慧,他们在做窑的时候特别像在做一个瓷器,是靠手、靠身体、靠直觉去做。它不是完美的工业产品,而是一个手工艺品,体现出一种质朴、古拙之美。怀着对传统工匠和工艺的敬仰之情,朱锫希望工匠能够按照传统做法进行窑砖的砌筑:“他们自然而然地从事手中之事就能抵达卓越的境界,他们轻松自在地应对施工就能获得一种存在层面的释放。”从这个角度来说,整个建造过程都将体现工匠和窑砖之间亲密无间的“上手性”(readiness-to-hand)状态。不仅如此,朱锫甚至迈向思辨实在论——拉图尔(Bruno Latour)式的中间地带更加关注主客体间的“准客体”(quasiobject)——“工匠与材料的交互奇怪且独特,工艺并非一种可见的专业技能和操作技巧……工匠的权威来自其作为建造者的个体性,他们在深层本体论层面的个体性需要得到认可。”
这里,朱锫美好的愿景使得建筑拥有一种“自下而上”的建造方式。不可否认,高超技能的工匠的具身知识具有内在的创造力,这些行为活动包含一定程度的随机性创作。然而,周榕在御窑博物馆的前置批评中指出,博物馆的墙面效果实际上是通过算法实现的,“算法可以通过递归性驯化各种形式的偶然性,从而让它们变得有用。”这种“刻意的随机”,恰是因为工匠的个体性无法使得整座建筑看起来完整、统一而采取的办法。笔者以为,自然的随机与刻意的随机并不矛盾,问题的关键是建筑师在走向自然的过程中做了怎样的努力。至于算法,肯尼斯·弗兰姆普顿(Kenneth Frampton)认为当代建筑师没有谁能够脱离数字化生产,数字和工艺之间并不对立。建筑师应该保有更加开放的技术观——不管是传统技艺(techne)还是现代技术(technology)都是服务自然建筑的手段,检验自然而然的标准即是建筑的效果是否给人以自然的感觉。
.jpg)
回收的老窑砖
.jpg)
自序厅观茶室
5 小结
御窑博物馆可以说是朱锫对自然理解的一次具体表现,主要体现在:1)建筑以物、秩序、特性、气候、时间等要素进行描述,朱锫集结了地域的根源借以象征场所精神——建筑就像一个空气的装置,8个水平的通风隧道与5个有着烟囱效应的垂直院落共同编织了一个自然通风、四季不用空调的智慧生态建筑;2)建筑师通过身体的互动背离了“经典”透视惯例的空间,通过挑战线性坐标与对称布局在单个视角中能够被快速掌握这一明确逻辑性,而形成了一种园林空间组织形式的居、游思想;3)朱锫在御窑博物馆的设计中创造性地将结构主义和现象学结合起来,他为我们提供了一种“可以把具身体验理解为持久性原始条件的方法”;4)朱锫合情合理地处置了建筑材料与结构的因应关系,建造者也借助自身的经验来对项目做出创造性的贡献,亦或者设计师通过电脑技术获得自然的效果,无论如何,这都意味着建造过程对偶然性和开放性的包容。
朱锫在接受访谈中曾说:“‘自然建筑’是一种自然的态度,是在探究建筑背后的自然建构法则,以找到由人们自身文化设定的那些感觉之源。换言之,借助‘自然建筑’的概念,寻找到建筑最基本、原始和自然的建造道理,以及中国建筑美学以经验为主导的艺术精神。”御窑博物馆或许可以看作是朱锫对他倡导的自然建筑的一次尝试,充满了自然而然的张力。御窑博物馆正是这样一个自然而然的建造结晶,并在回到此时此地的状态之时进入了回应自然的高潮。正如文章开头提及的,对任何艺术形式而言,自然而然都是高明的境界,但人们对它的追寻像是古希腊神话中西西弗斯(Sisyphus)无休止的劳动,永远不能达到目的,但恰是在这种永恒的徒劳中才凸显出建筑师自身的价值。
发表评论
最新评论
投稿