杭州武林美术馆 | 筑境设计
来源:匿名网友投稿 2024-04-26
项目基地位于杭州市拱墅区新天地综合体南部,周边建筑较为密集,多为办公、商业和住宅,功能多样。在这样一处与城市生活紧密关联的场地中,设计期望新建建筑与周边环境间形成友好的对话和互动关系,进而创造一座生发着城市活力的美术馆。
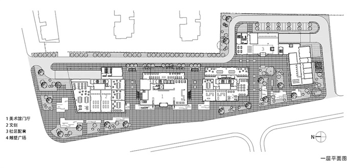
场地呈不规则狭长形,东西宽约60米,南北长约240米,其西、北两侧均为高层办公建筑,南端为幼儿园,西南角规划为城市公园。为此,设计考虑将大体量的建筑主体靠北侧布置,以与周边的高层建筑组群形成空间上的照应;同时于南部降低建筑高度,减弱其体量,结合开放式的街边庭院布局和社区服务中心的功能,营造出一处尺度宜人、与南端幼儿园及一旁城市公园有良好对话的街边日常活动场所。
美术馆的艺术空间,占地上建筑面积的三分之一,是建筑中最重要的主体,也是最吸引人的空间场所。但是受展览频次、开放时间、布展等因素的限制,艺术空间使用频率较低,与城市日常的交互频度也相对较低,互动较弱。相反,占有地上建筑面积三分之二的文化产业空间和社区服务等功能,关联着日常通勤、服务和交往,与城市日常交互频度相对较高,互动较强。
我们将艺术空间置于建筑的高区,悬浮于城市之上,相对独立。观展人流可通过底层入口大厅,经垂直电梯便捷地上至高区展览空间。这样的布局,既切合目的性较强的参观人群的行为特点,又凸显了美术馆的主体。文化产业、社区服务这些与城市交互频度较高的场所置于建筑低区,贴近街道布置,并于底层融入部分商业。这些空间组织自由、构成灵活,可适应未来多种变化。
.jpg)
.jpg)
.jpg)
.jpg)
.jpg)
.jpg)
.jpg)
.jpg)
.jpg)
.jpg)
.jpg)
.jpg)
.jpg)
发表评论
最新评论
投稿



