烟台大栖地城市展厅 | MDO木君建筑设计
其他来源:MDO木君建筑设计投稿 2021-04-13
.jpg)
MDO木君建筑设计公司受托在峰山风景区新开发区南部的中轴线一角,为其打造出一个极具辨识度的地标展厅,呈现片区城市生活的未来蓝图。
项目周边的城市环境以高耸的办公楼和住宅楼为主,基地后恰有一片矮丘,这些建筑和自然的景观成为一个重要的空间节点,MDO木君建筑设计设想新建筑是否能与新开发区其它的建筑形成鲜明对比,形成特有的场所记忆。
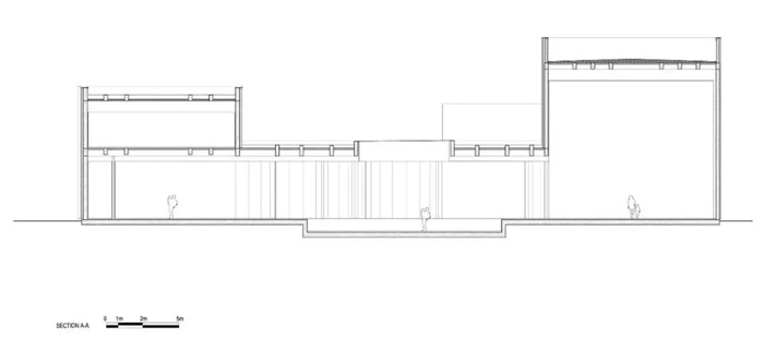
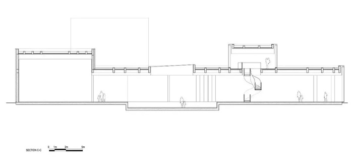
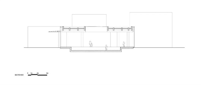
在过去传统的展览中心一般设计为环绕形动线或强制性单一动线。往往将装饰性的庭院或模型台作为重点放在空间中心位置,整体的流线也是成直线型的,空间连接不紧密。
.jpg)
.jpg)
.jpg)
因此我们在设计时,尝试打破这一传统手法,在整个空间的中心位置创造出一个公共的空间,一个可以让人们交流讨论和互动的地方。我们希望可以将这个空间设计得更加以人为中心,更加温馨。
其他功能,譬如展览厅、模型厅、接待厅、办公、后勤用房等被安排在雪晶状平面的外围区域,与中央空间相连接。这使得所有功能都能够均质的排布在中心空间旁,从而提供更多的沟通渠道。
在每个外围体量之间,我们打造了一个户外空间,这使得景观可以融入建筑中,并将景观和日光引入中心空间。直观感受空间与非直观感受空间在这个建筑中融为一体。就如同雪晶结构,其实体与镂空的部分相辅相成才能形成最终这一个完整的图案。同样的在这个建筑中,侧面的景观区,也成为整个展览空间的一部分。
.jpg)
.jpg)
.jpg)
建筑造型由一系列带凹凸面的柱体与玻璃裙楼组合而成。这些柱体的高度根据内部功能的不同而有所区别。建筑在银色铝板的装饰下,柔和的反射着天空和周围的景观。
建筑的形态同样也影响着访问者的参观动线,利用光影的动态关系去赋予空间另一层韵律。参观者进入和离开每个空间的路径,都好似光线在做着忽明忽暗的流动舞蹈,每当人们离开一个空间前往中心区域时,都会拥有全新的视野。
玻璃裙楼采用了6米高的无框玻璃,使光线和景观得以充分进入室内空间。尽管它看起来是自由形态随意组合的,但其实在外立面的设计上MDO木君建筑设计还是规律地使用了同一尺寸和半径的弧形玻璃。
室内的功能被设想为一个系列的组合,每个外部空间被赋予其独特的定义,可根据环境不同来调整并给予别具一格的空间体验。
.jpg)
.jpg)
.jpg)
.jpg)
.jpg)
.jpg)
建筑的中心区域部分是社交核心。该空间下沉1.2米去强调休闲区与其他功能空间的转换,同时也能提升天花的尺度感。软装遵循硬装的色彩分布逻辑,整个下沉区用纯净的白色系铺展开来,用丰厚的尺度感,呈现空间的舒适度与优越性。顶面与地面,丰富的镜面材质,从各个意想不到的角度,反射出硬装在空间中的色彩变幻,增添一抹秘境般的神秘色彩。阶梯上打造出了一个柱子阵列排布的圆形展区,可以通往每个外部空间,且增强了不同功能之间的视觉联系。
天花板采用手工打磨的红色艺术漆装饰,指向漂浮在吧台之上的中央天窗。
项目信息
项目名称:烟台大栖地售楼中心
项目地点:中国山东省烟台市莱山区山海路与五卒山北路交汇处
项目面积:1800平方米
项目状态:2020年已完工
设计公司:木君建筑设计公司/MDO
公司网站:https://moredesignoffice.com/
设计范围:建筑设计、室内设计、软装设计
设计总监:Justin Bridgland、徐伩君
建筑设计:Justin Bridgland、Carlo Alberto Follo
室内设计:高达、白晓雨、雷梦清、刘雄杰
软装设计:董萌萌、唐艳萍、祖郭翔
业主:山东恒堃控股集团
承包商:烟台凯顺建设集团有限公司
景观设计:HZS景观设计
结构工程设计:烟台市建筑设计研究股份有限公司
结构工程顾问:必思博工程设计咨询(上海)有限公司
项目摄影:朱海、夏至
发表评论
最新评论
投稿