手机号:
验证码:
手机号码:
滑块验证:
短信验证:
新 密 码:
再次确认:
超万名行业内专业人士实名投票
秉持客观原则的非商业化评选
首页 >案例>案例赏析>建筑>正文
来源:网友MissMarple1966投稿 2012-12-21
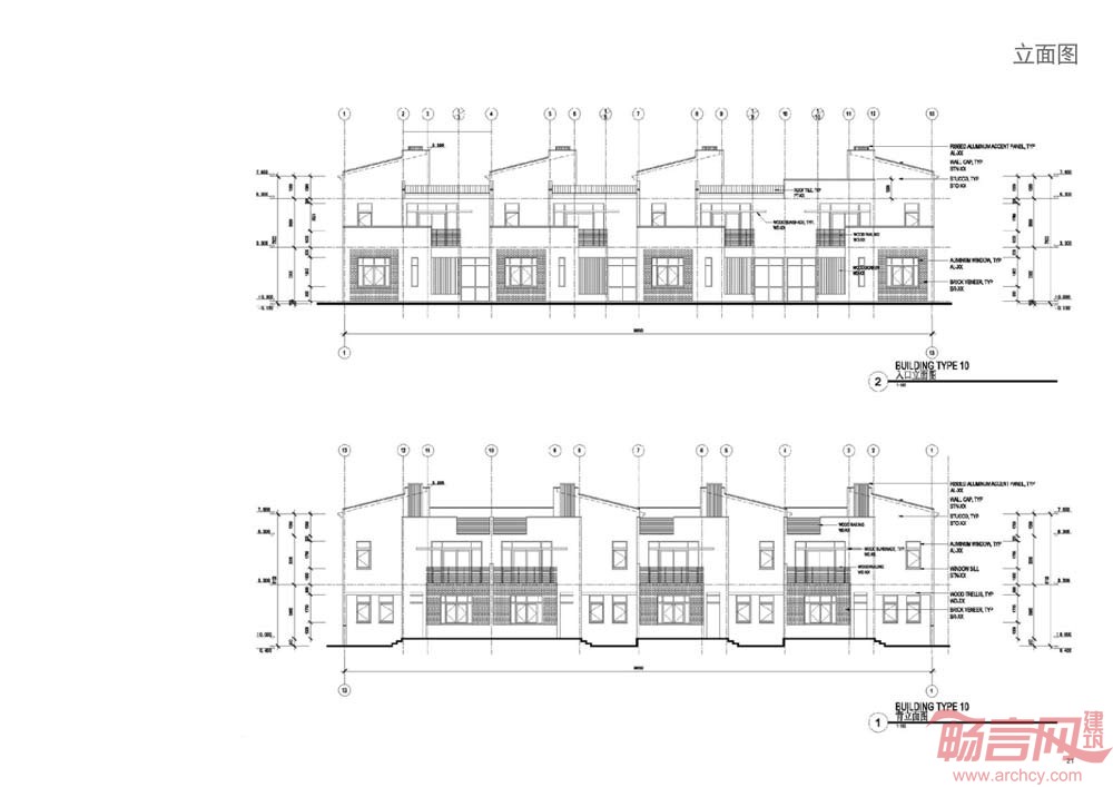
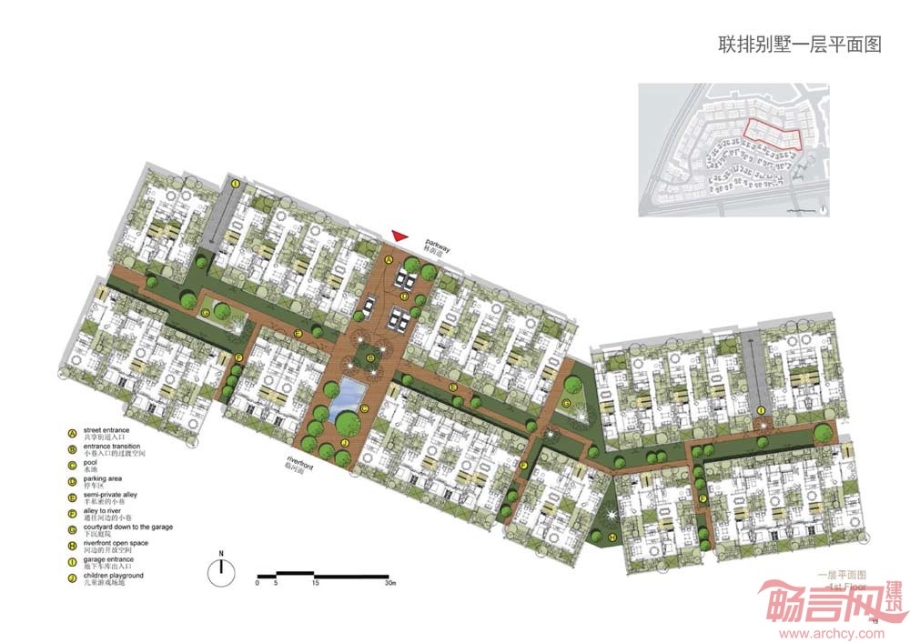
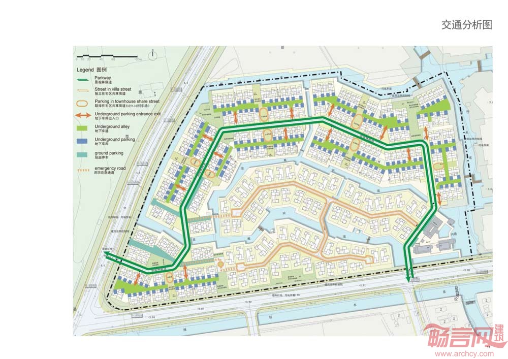
上海朱家角特色水乡居住区
发表评论
最新评论
大连瓦房店某老年公寓项目设计…
三明市某医院病房改造项目工程…
重庆开州某医院建设项目设计招…
阿联酋厂房项目厂房寻找设计单…
贵阳住宅项目寻找概念方案设计…
西宁市总投资额3.2亿石英岩矿开…
李荣昊:从成都太古里到东风韵…
邹迎晞:如何在农文旅项目中实…
卓汉:作品即主张,传统材料呈…
NBBJ 艾瑞克·菲利普斯:解密阿…
潘磊:烟台蓬莱机场T2设计…
奥雷·舍人:大胆的叙事想象引…
大连凌水湾「石棱镜」 / line+…
杭州东南网架全球创新中心 / 零…
成都七中林荫校区学科融合中心…
荆州城墙考古遗址展示馆 / 青微…
宜宾高铁站TOD / Pelli Clarke…
杭州华和总部大楼 / gad