贵州崔苏坝彝文化中心暨国际露营基地 | 西线工作室
来源:网友Aaron投稿 2021-04-09
.jpg)
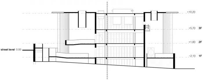
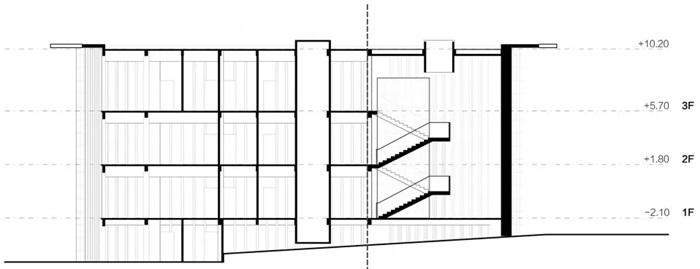
崔苏坝彝文化游客中心挺立在中国贵州西北部海拔近2000米的山地高原之上,一片被群山环绕的高原草甸间;建筑从一片近20度的斜坡中拔地而出,直面空旷的草原与群山。该中心的设立意在助力当地旅游业,同时试图再生与发展当地世居少数民族——彝族的建构文脉。
.jpg)
.jpg)
西线工作室长年在复杂地形地貌的次文化圈层乡土带实践,其工作方法的成长源于对这些乡土共同体特殊文化系统的洞悉与深入研究,以及对这些族群共同体天赋的仪式结构、聚落肌理、族群模式、建造方法、庆典、象形文字等有着敏锐的感知与深切的领悟,进而将这些独特的特征融入到系统的工作方法中,在具体实践中尝试建立起与当地族群共同体的生活方式及集体记忆相锚固的纽带关系。
.jpg)
.jpg)
.jpg)
.jpg)
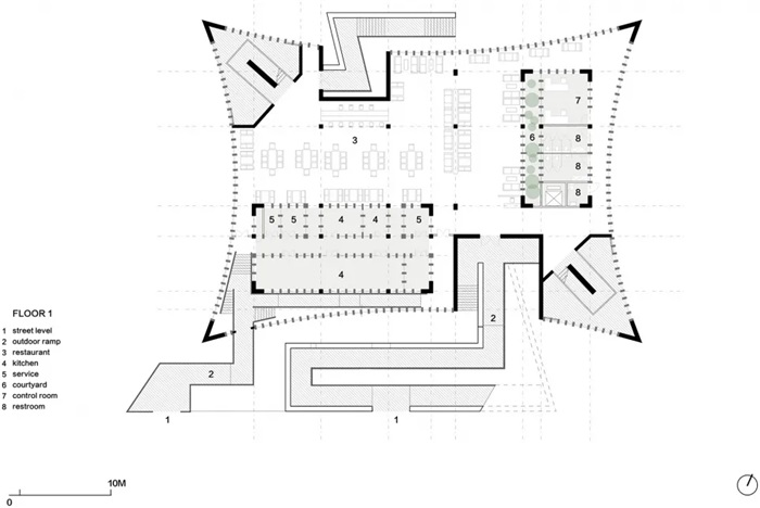
在上千年的黔西北彝族传统中,彝族一直将这片高山草甸视作祭祀天地与举行“火把节”的神圣之地,“火把节”的仪式源于当地彝族的古老传说:一位著名的彝族勇士以特制的松树火把阻止蝗灾的肆虐……,这类特殊的“仪式助记符”在西线工作室的工作方法中始终被列为重要的研究对象,彝文化中心设计中即以此作为切入点,以多层次的氛围制造方式再现与发展了古老彝族的仪式空间体系。
.jpg)
首先,在旷野中植入一孤寂纯净的建筑体量,恍如一方老彝族祀坛;进而在其上覆以四边凹弧形的出挑屋面,试图回应来自周围山野的张力,这组独特的屋面天光/雨水收集系统达成了建筑与天地的互语,屋面雨水经有序的天沟排水系统,贯穿露天院落群,融入大地——润物细无声;同时这些院落群亦有效地处理了内部空间深处的采光与通风;与此同步,室外入口处那组折叠起伏的坡道与弥漫着仪式光芒的狭长的垂吊天井的组合,令人联想起“火把节”中在山道中盘旋行走的赶“火”队伍。
项目:崔苏坝彝文化中心暨国际露营基地
地点:中国贵州省大方县
设计单位:西线工作室
建筑功能接待区 、茶厅 、餐厅、彝文化祭祀与展陈区、办公区、设备用房
主持建筑师:魏浩波、谢劲松
建筑/景观:骆玉丹、周可、欧明华、刘斌
结构工程师:李元平、付定平
项目管理:龚轩勤
建设单位:贵州省大方县油杉河旅游区投资开发服务有限公司
完成时间:2021年3月
基地面积:1565平方米
建筑面积:2569平方米
建筑层数:3F
材料:彝族老木屋回收木模板/当地松木木板混凝土体系、黑色金属、中空玻璃
摄影:魏浩波、谢劲松
版权:西线工作室
.jpg)
.jpg)
.jpg)
.jpg)
.jpg)
.jpg)
.jpg)
.jpg)
.jpg)
发表评论
最新评论
投稿