大隐于市的四合院
来源:网友一枚怪咖投稿 转载自:上海禾易建筑设计有限公司 2015-12-02
项目名称:大隐于市的四合院
建筑面积:约2000M²
设计公司:上海禾易建筑设计有限公司(缩写:禾易HYEE DESIGN)
主创设计师:陆嵘
参与设计师:苗勋、沈寒峰、杨雅楠
建设日期:2012年
奖项:
获2014年度Idea-Tops国际空间设计大奖(艾特奖)入围奖;
获2014中国室内设计年度“金堂奖”的年度优秀休闲空间设计;
获2014中国室内设计年度“金堂奖”的年度十佳休闲空间设计。
.jpg)
设计说明:
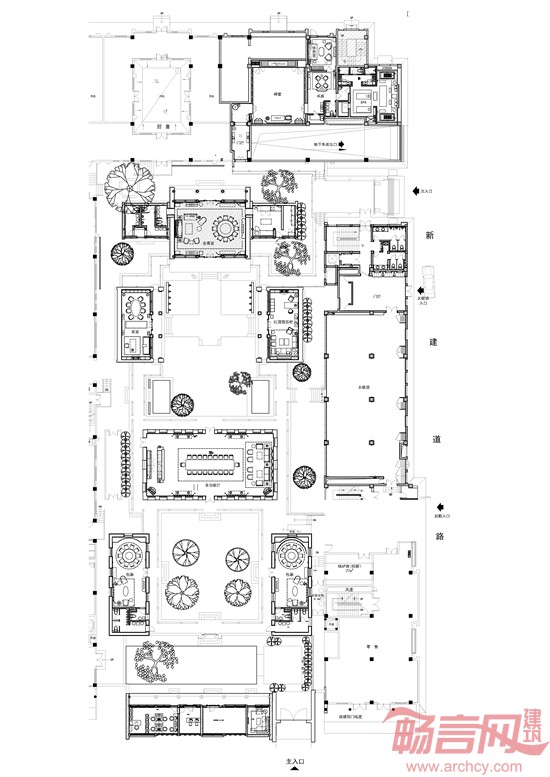
它的设计规模大约2000 平米,拥有着传统四合院建筑体系衔接新建太极馆,掩映在一片安静胡同深处,是在喧嚣城市中的一片心灵宁静之处。来这里,客人们可以安下心的修身养性、体悟四合院文化的同时又能感悟太极文化精髓。在整个室内设计中,设计师以中华传统文化中的“儒 、释 、道”为母题,运用“竹、木、石、水、影”不同材质与光影的融合,使人们能够身临其境的感悟中华传统文化的精髓。一入四合院,传统的四合院庭院搭配质朴的四合院木梁结构,让人一下子回到梁思成笔下的老四合院。室内以老榆木线条为主线,搭配与传统木梁结构的衔接,在梁上镶嵌入传统纹式的古铜装饰。
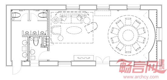
多功能厅,拥有旧铜打造的前台,配以独具匠心的环形灯具交相呼应,来凸显其特色。
贵宾厅,是以云龙元素为设计源泉,设计了一款金丝柚木壁炉,能让人能感受传统东阳木雕的精髓。
朴素的太极馆,简单但也不失精巧。通过夹绢玻璃隔断的移门可以将太极馆分开放、私密的多功能空间。可以通过太极馆侧面的落地窗户可以看到禅意的景观空间。
茶室里的家具,也与众不同的采用了竹节形式的木饰面手法,让客人更好地在参茶的过程中调节心境。
正是因为有“逍遥的自然情趣 、优美的人文情调 、慈悲的光明情怀 ”,才能体现出此四合院的格调。
.jpg)
.jpg)
.jpg)
.jpg)
.jpg)
.jpg)
.jpg)
.jpg)
.jpg)
.jpg)
.jpg)
.jpg)
.jpg)
.jpg)
.jpg)
.jpg)
.jpg)
.jpg)
.jpg)
多功能厅平面图
.jpg)
私人区平面图
.jpg)
太极馆平面图
.jpg)
厢房平面图
.jpg)
总图平面
发表评论
最新评论
投稿



