合肥万科城市之光别墅样板间
来源:网友Caroline投稿 2017-07-31
千百年来,庐州文化源远流长,吸引无数文人漫步其中。作为安徽省会,合肥历经时光流转,庐州文化早已交融在城市变迁中。
合肥,一座承载庐州文化的现代城市。万科城市之光别墅坐落于此,其样板间的整体设计由壹舍担纲。相对充裕的空间和开放的结构给予设计师无限灵感,雅致静谧是最想营造的整体氛围,文脉延续是最想秉承的精神境界。“我们选择低调轻雅为设计概念,采用沉稳的色调为主题,透过现代设计手法,东方元素点缀其中,旨在追求设计与文化的融合。“设计师方磊如此表示。




平稳式布局体现出客厅的气势,阳光穿透落地窗,随意简约,尽显波光灵动之美。少许原木色点缀其中,简约中富含无穷韵味,营造出低调、静雅的氛围。大面积百叶元素呈现一种秩序美,同时又连贯餐厅、庭院、卧室。沙发灵活多变,可满足多元化的使用需求。

入座百叶元素由客厅延伸至餐厅,顺应立面拓展至吊顶。沉稳厚重的深咖啡色,搭配色系相近的餐椅,散发着柔和光泽的吊灯悬于餐桌之上,营造出典雅轻松的用餐氛围。

吧台由玄关处延伸而来,作为通道关系上的枢纽空间,联接客厅及餐厅,起到过渡与衔接作用。富有线条美感的落地灯,恰到好处地燃亮整个空间,与主题“城市之光”相得益彰。



地下一层家庭室,绿植将整个空间动线划分为通道及活动区。蓝色家私及古铜质感书架相映成趣,彼此穿透,给空间赋予雅致、轻松的色彩。活动区书架采用金属冲孔板和发光体,清晰明快的线条增添整体视觉冲击力。


水吧区与家庭室相连通。圆形软饰地毯有效缓解空间的单调,同时又呼应蓝色家私。午后阳光撒入,景色对应空间,弥漫生机一片,设计师完美调动感官和视觉,将空间的张力体现得淋漓尽致。

长辈房的设计严谨而舒适,通过尺度的把握来表现稳重。床头两幅黑白色氤氲而成的挂画又和花艺形成互动,整体空间简洁却又不失质感与趣味。



活动室则采用适宜的跳跃色来主导空间,时尚又不失温馨。立面百叶元素让内部与外部空间形成一体呼应,配合自然光线映入,实现与人、空间与自然和谐统一。推拉门划分次卧,让空间在视觉上变得松弛有度,呈现出自由的气质。

衣帽间,简明合理划分空间,兼具现代感和实用性。




主卧立面及吊顶的百叶元素与客厅餐厅立面和谐统一。水墨纹路地毯与自然光线融合,产生极富韵律的光影效果,令空间低调、怡心。在赋予空间沉稳大气的同时,现代人追求的舒适静谧也在这里得到满足。

几何线条合理划分卫生间,功能与美学转化为精致的细节,给人低调舒适的体验。大面积镜面的运用,强化空间透视的立体感与层次感。浴缸位置抬高,视野开阔,沐浴其中亦可远观庭院景观。
设计师方磊认为:“一个好的空间必是富有生命力的,坐落在庐州的城市之光,不仅承载精致的生活态度,更是文化内核的一种延续。”衔接徽韵,面向未来,万科城市之光宛如一个连接古典与现代的窗口,东方韵味及现代时尚交融其中,恰到好处地展示着它的淡雅、精致。在合肥这座魅力之城,绽放耀眼光芒。
项目名称 | 万科 城市之光别墅样板间
项目地点 | 安徽 合肥
项目面积 | 388平方米
完工时间 | 2017年6月
设计公司 | 壹舍设计
设计师 | 方磊
视觉陈列 | 李文婷、周莹莹
主要材料 | 黑钛金属、古铜金属冲孔板、石材、壁布硬包、马来漆、橡木染色
摄影师 | 张静

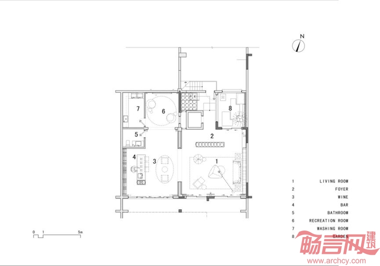
1F平面图

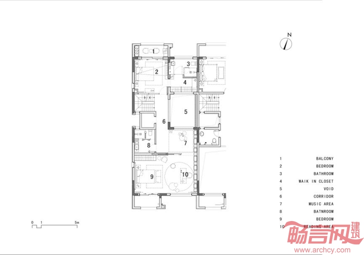
2F平面图

3F平面图

B1平面图
发表评论
最新评论
投稿