银川·中梁印营销中心 | VGC韦高成设计
其他来源:VGC韦高成设计投稿 2020-12-02
.jpg)
风,拂动波纹,剥蚀肌理,雕刻弧线,
无形的流动中涌动力量。
.jpg)
银川,茫茫沙漠中的葱茏之城。大漠孤烟,长河落日,古老的歌声在风中流唱。贺兰山下,黄河之上,粗粝捧起绿洲,驼铃叫醒晨曦,粗犷朔漠,婉约江南,我们被这种刚柔并济的趣味所打动。
.jpg)
曾经的金戈铁马,关山万里,兵甲铿锵,岁月的回眸凝聚了一切如笛声清越而出,不需要任何矫饰了。这里什么都没有,这里什么都有,变幻而又纯粹,是真正的灵魂。
.jpg)
入口高耸如山峙渊渟。拔高的入口将建筑引入室内,界面和尺度融入空间形体当中,与室内语言衔接统一,形成整体延续,营造视觉引导。黑色金属隔断冷硬质感一如银川高远的夜幕,内置灯点点透射,北斗星引航。
.jpg)
轻抚贺兰山起伏的山脊,吹皱沙丘,飞掠,惊起湖面的波纹,摇曳芦苇,墙体的曲线捕捉风的痕迹。
.jpg)
.jpg)
从沙漠星辰到晨光乍现,顺着建筑屋面形体的外张衍生“宇宙星辰”圆罩,与大斜面屋顶碰撞生出大地的艺术,自然地貌的原始神秘与粗犷,流露出空间的自然性。沙砾的墙面,从指尖溜走的韶华,带状光流淌于天花,自然光影变幻,仿佛行走在时空飞速倒退的河底,在原始与不羁中回味千年前的丝绸之路。
.jpg)
弧墙由浅入深的过渡,营造轻松,艺术,高级的沟通环境,自然的芦苇丛半隔断,放松而私密。冷硬与柔软,现实与神秘,有山的坚定也有水的灵动。
.jpg)
线条盘旋而上,辗转、延伸,两个原本疏离的空间因此互为关联,相互抵达。黑白碰撞,历史的车轮追逐而来,多元的文化交织激荡,大漠西北与旖旎江南融合,光影下界限模糊,空间与空间产生有机的整体。
.jpg)
.jpg)
.jpg)
一个最纯粹的人,仿佛就是变幻不定的沙漠本身。那些轻裘缓带城府深藏,在轻柔姿态下,幻化成迷人的肌体语言,是自得其乐后的心境平和。
.jpg)
.jpg)
看得见的技术,因为注入了情感,于是成为了艺术。大漠的灵性,阅海的灵性,人行走在这样共性有灵的空间中,自然成了其中的生灵。时间,空间与人共同营造了这样的诗意空间,通过眼睛,视界和姿态,感受那一片梦与境的时空,那个自由无间的世界。
.jpg)
.jpg)
效果图
.jpg)
.jpg)
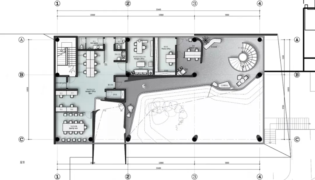
平面图
项目名称 | 银川·中梁印
项目类型 | 营销中心
业主单位 | 中梁地产
甲方团队 | 廖雪、李超、惠丰
项目位置 | 宁夏银川
项目面积 | 593㎡
项目完工 | 2020年08月
室内设计 | VGC韦高成设计·深圳
硬装造价 | 3000元/㎡
项目摄影 | 张骑麟
发表评论
最新评论
投稿