绿地香港·樾湖书院 | 明德设计
来源:网友Andy2073投稿 2020-04-22
建筑以硬式歇山顶为设计蓝本,外观宛如被风翻开的书册,隐喻一场宋时美学体验之旅的启幕——黛瓦浑然,琉璃清透,榫卯温润……传统元素在室内外错落有致,尽致复现宋文化之古雅气韵。
从前场进入,通过院门行至前院,再缓缓踱步迈入主体宅院,出则观边院、赏后园——院落在礼序间起承转合,在进退间步移景异,自然之境与居住美学在建筑、景观与室内多方设计协和中有机结合,风雅成趣。
宋代美学的清雅风韵、岭南文化的礼序哲思,在这座樾湖书院一一得以呈演。设计以“礼”的秩序感、“乐”的谐和音作为主线,筑就出书院建筑“礼乐相成”之典范,轻奏出其间的意蕴与力量,令生活在新时代快节奏的人群,有一方可调和情绪、憩养身心、体验人文温度的理想生活境域。


接待前台
开敞式的接待空间以多进式院落的礼序,引领观者进入沉浸式空间体验。设计从硬装到软饰的对称美感承演东方礼序思想,同时借用当代建筑设计的语言,呈演简洁而凝练的观感。


接待厅
在层高7米的空间内,通高的金属与木制格栅作以围合四周的屏风,朗阔大气。接待台的形制别有创想,借以发光琉璃砖瓦的点缀,与纱质水墨画屏风互映,令空间更具韵律与诗意。以中式纹样“十字海棠”为灵感的铜质器皿落于空间正中,一层水镜赋予其上无限的深意,在“疏影横斜”中,荡漾着幽然和雅的诗韵气质。


沙盘区
沙盘底座采用木制材料搭建,整体设计毫无繁冗杂饰,以简净大方的序列感营建空间不凡的体量。悬挂的灯饰写意“微微风簇浪,散作满河星”的画面,其间璨斓生辉的光影律动,带来简远意深的美学感受。



洽谈区
设计遵循东方谦逊的美学语言,将宋学谦和高雅的精神风貌纳入空间当中,手法上去繁化简,营造兼具美学愉悦和人性化关怀的洽谈空间。大面积的木制、棉布与清浅的白麻色搭配相得益彰,而屏风、落地灯饰作为分区的隔断,使得气韵更为流畅。空间泛泛流淌着和煦自然的东方雅韵,令人静坐畅谈时,得以由心的感知、自在的享受。


书吧
“宋代文人雅士崇尚理性、疑古创新,他们透过物象的浅表,细究其抽象的内在特质,从而关照生活体验、呈示精神世界。因此,设计本案时,我们尝试将宋时的理性主义与学理精神融注于空间的美学建构中,以艺术化、现代化的语素,诠释自然与礼序,使空间在理性中透射出人文的厚度与温度。”



书吧/水吧
当宋时美学与岭南文化相遇,其间碰撞交叠的儒雅气质便愈加浓郁。设计在空间内构设一隅书吧,通高的书架、纤细的简式太师椅、工艺讲究的竹简笔砚……还原宋代书院的文雅精神风尚,将人的思绪拉入悠久绵厚的历史当中,感知自由丰富、静雅素淡的文仕生活。


VIP室
在明德设计看来,空间设计并不是单一的艺术创作,而是在理性中凝练、写映、转译人文的蕴涵。樾湖书院的设计,不止于生活境域,更关乎精神世界。设计于地缘人文、东方哲思、现代精神的抽象写意中,将文仕生活之道与宋代理性美学思潮的内核交融合一,得见风雅,臻化诗意之境。



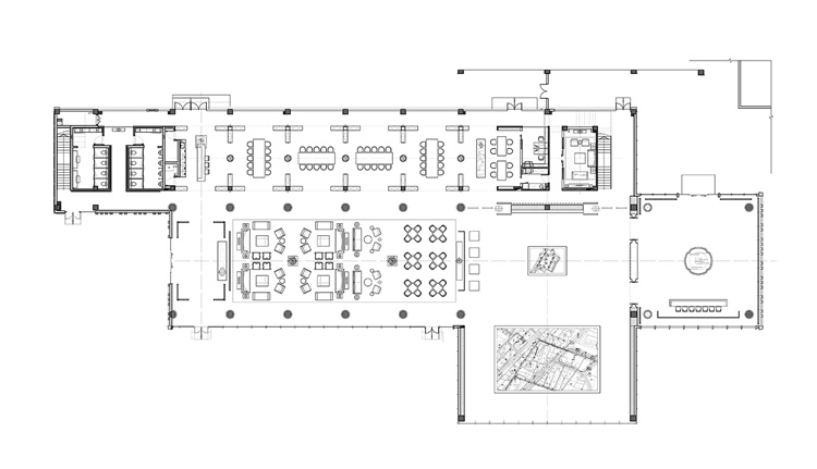
一层 平面图

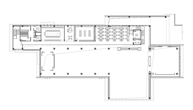
二层 平面图
项目名称 | 绿地香港·樾湖书院
项目地址 | 广东 肇庆
设计面积 | 2617㎡
室内设计 | 明德设计
软装设计 | 明德设计
建筑设计 | 上海霍普建筑设计
业主单位 | 绿地香港
特别鸣谢 | 甲方团队:孙昱、谢敏、秦小龙、钱刚、邓萍、覃希、施爽巧
发表评论
最新评论
投稿