昆明大悦城优客工场 | DAGA大观建筑
其他来源:DAGA大观建筑投稿 2020-08-18
.jpg)
小枝️@ICYWORKS
昆明大悦城优客工场是大观在昆明做的第二个项目,地处昆明千年商脉——老螺狮湾,依昆明母亲河盘龙江畔而建造,占据昆明市一环及多条城市主干道。优客工场位于大悦城的十一、十二层空间。由大观与优客工场团队紧密合作,通过分析昆明当地特色,探索和营造符合现代文化环境和办公方式的多元工作空间。
地域特质
▼竹材与现代材料的结合
.jpg)
小枝️@ICYWORKS
在昆明乃至整个云南地区,都有着很鲜明的民族、地域、文化特征,而且都保存的比较完好。云南之所以保留着独特的地域氛围,正是因为它没有在城市化的浪潮中被时代背景所吞没。在城市中,从来不缺少现代化的建筑,但是在千变一律的发展过程中,都在逐渐的趋同,城市空间需要体现地域性,不仅仅是对传统、文化的一种保护,也是一种城市发展多元化的体现。
▼办公区域中庭置入竹材结构,其他空间环绕布局
.jpg)
小枝️@ICYWORKS
云南特有的自然条件,在这里形成了许多极具特色的梯田与竹楼,附近的村落分布在梯田四周,形成一种聚合式的布局。我们将这些元素与联合办公中现代社区的功能结合,形成了一个围绕着中间共享空间布局,四周有各种功能环绕的基于地域性的空间布局模式。同时,联合办公的功能也营造了一种社区化的办公模式,打破了传统写字楼对人造成的消极固化的影响。
空中竹楼
▼中庭区域剖面图
.jpg)
▼空中竹楼
.jpg)
项目位于整幢大楼的最顶层,我们将这两层以及屋顶作为一个整体来设计,并且在最中心植入一个空中的竹楼,在建筑中营造出一个巨大的围合空间,消解了建筑中矩形柱网的均质感。竹楼是云南地区傣家的标志民居,我们将此元素在公共区域延伸,结合地域性的材料,让整个设计能够为人们传达出城市的个性与特征。
云南省的天然竹林面积有380万亩,竹林类型共有 30 多种,天然竹林类型及面积居全国第一位,是我国乃至世界公认的竹类来源大省。竹子作为一种建筑材料,已经在许多地域建筑中运用,竹材质的柔性与刚性性质也给空间提供了更多的可能性。
结构构件细节
小枝️@ICYWORKS
设计并未从某一风格入手,而是结合场地文脉,建筑视野,交通动线,建筑结构以及建筑立面等因素,以规划的方式将各个空间模块放置到合适的位置,自外而内的反向推导,发现空间问题并通过设计手法解决问题。这种反推方式不仅让室内与建筑本身严丝合缝,让建筑布局充满逻辑化,也更让室内空间丰富多变。
空间形态
▼空间布局分析
.jpg)
空间形态来源于云南本地竹楼结构及梯田形态,通过竹制材料的介入并融合云南传统竹编工艺强化本地特色。竹材的柔性,使得建筑内部空间的灵活性更强,整个色彩也使得室内更加柔和、舒适,营造了良好的办公与休闲环境。
▼会议室
.jpg)
小枝️@ICYWORKS
▼路演厅
.jpg)
@田涛
空间布局围绕中庭路演区展开,将共享功能模块布置在建筑几何中心使得空间配比相对均衡。通过增设联通各层和屋顶花园的楼梯,打破各层界限,增强空间的关联性。采光天窗增加了阳光的射入,使得进深过大的室内每个角落都可以有自然光,给办公者营造了良好的氛围。
中庭设置具有围合感的静音图书办公空间,会让人联想到大学的图书馆自习室。配合舒适的休闲办公家具,整个区域充满自然光以及木材的柔和,亮度与色温均适合长时间办公或阅读。让这里不是消磨时间的传统办公空间,而是可以强化个人价值的空间,这也是联合办公有别与传统办公更加吸引人的关键。
▼通向屋顶的楼梯
.jpg)
小枝️@ICYWORKS
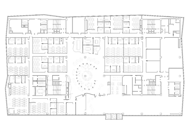
▼施工现场
▼十一层平面
.jpg)
▼十二层平面
.jpg)
▼剖面图
.jpg)
项目信息
项目名称:昆明大悦城优客工场
设计公司:DAGA Architects大观建筑设计+优客工场
设计团队:申江海 刘宇哲 黄达 刘昂 刘晓青 邹念龙 黄冶平
软装设计:余小雨 张志婷
项目类型:室内设计与改造
建筑面积:约8000㎡
设计时间:2019年
建造时间:2019年4月-2019年10月
摄影师:小枝️@ICYWORKS,田涛
发表评论
最新评论
投稿
.jpg)
.jpg)