LU LIFE生活馆 | 北鱼空间设计
其他来源:北鱼空间设计投稿 2020-08-10
.jpg)
我们正处于女性崛起的社会浪潮中。与女性意识、女性生活有关的专属空间已逐渐成为空间设计中的细分领域。
女性对美的认知,是独特而细腻的;而对美的感知,往往就在一眼看过去的瞬间。这种感性,正是女性审美的敏锐之处。不同年龄、职业、社会角色的女性,对美的定义有所不同,但是其内心对优雅之美、自由之美的追求却不无差别。
.jpg)
.jpg)
在接到Lu Life女性生活馆设计项目时,设计师希望能够用女性共识的审美,来诠释女性空间的包容、细腻、优雅与自由。因此,设计师从安格尔的《泉》中吸取灵感。
圆润、平和、干净的少女之美,配以流动的泉水,彰显出女性的自然、灵动,柔和的线条中,透露出几分优雅。这正是设计师希望的空间表达,也是业主对项目经营的期待——让女性朋友优雅、自由的在这里度过每一分钟。
.jpg)
.jpg)
.jpg)
在建筑外观方面,设计师用自上而下的白色肌理漆、模糊边界的入口内退处理,来归纳外观的建筑动线。弯曲回折的线条设计,弧与拱的交替应用,使外立面规整又具有极高的辨识度,犹如一个巨大的母贝,给人以被包裹温暖与安全感。
设计师保留了一层的玻璃橱窗,并以此为“画框”,窗内窗外,皆为风景。
在空间营造上,设计师对拱形元素加以应用,用起伏流转的弧线勾勒空间,增强了空间的通透感;蜿蜒的动线设计,使有限的空间产生无限的延伸感。
设计师用简单而基础的材质,表现出空间界面的肌理感。圆形镜面吊顶是前厅的中心亮点,波光粼粼的镜面好似沙漠中的一汪碧水。弧形拱门,圆拱试衣间,曲线展台造型……弧线形设计不仅是空间延伸的体现,更增强了女性的购物体验与试衣的仪式感。
.jpg)
.jpg)
.jpg)
.jpg)
在家具与配饰选择上,设计师用圆润的沙发、弧形衣架、弧形装置……来表现空间温润与包容。
为了迎合女性审美中的浪漫,设计师将杏黄色作为空间主色调。为了避免大面积杏黄色带来的甜腻感,设计师将银色、白色穿插在空间中,营造出自然、舒适又不失时尚梦幻的体验感。
在通往二层的转折楼梯上,设计师在踏步与墙面之间运用竖向的线性光,增强空间与客户的交流互动;镜面吊顶的应用,将空间进行拉伸,增加了空间的跃动感。不刻意追求风格,设计师希望在空间中运用自然、映射自然,在自然中拾取对生活的美好憧憬。
到达二层,首先是与拱形门相呼应的半弧形象墙,无论是在空间还是品牌认知上,都与客户形成交流互动。入厅后,设计师再次运用弧形圆拱设计,并将阳角墙体进行了圆润、柔美的处理,以此映射女性的优雅。
在材料和设计手法上,设计师更希望“去繁就简”,用在朴实、和谐的色彩与材质,体现空间的空灵、平和,如女性如水般温润,又如安格尔的「泉」,一切恰到好处,不多不少。
.jpg)
.jpg)
设计师用连续的弧线串联起每个私密、独立的空间。在包间设计中,设计师秉持“多创造女性的视线安放之处”的理念,使其空间结构更像是柔软轻盈的洞穴。在干净纯粹的空间基础上,结合优于普通发光的处理手法,在顶面,墙面创造出呼应一楼的灵动,并营造出自然光的灯光氛围。让客人在空间中「感受自然 」「感受生命」「感受自我」,以自洽的方式完成整个服务过程。
我们希望它不仅仅是一个商业空间,更是一个有着独特灵魂的艺术空间,我们期望艺术与商业共融共生。
.jpg)
.jpg)
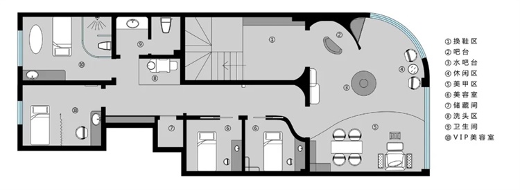
1F平面图
.jpg)
2F平面图
项目名称:LU LIFE生活馆
项目面积:约300㎡
设计时间:2020年1月
竣工时间:2020年5月
设计机构:北鱼空间设计事务所
主创设计:李欣原
设计参与:秦天、刘文静
主要用材:水磨石、艺术砖、真石漆、钢板、不锈钢、长虹玻璃、铝型材线性光、合金踢脚等
项目拍摄:摩豆摄影
发表评论
最新评论
投稿