深圳DOE深业上城室内设计 | B.L.U.E.建筑设计事务所
来源:网友Jaz53投稿 2020-12-31
.jpg)
项目名称 DOE深业上城店 室内设计
设计单位 B.L.U.E.建筑设计事务所
项目地点 深圳市福田区
摄影:夏至
竣工时间 2019年
项目是位于深圳福田区深业上城的DOE新店,这是一个在半山腰上的商圈,店铺所在的三层露天平台经由一条空中走廊与对面绿意盎然的莲花山公园相连。因此,将自然的元素延续到室内成为了最初的概念。街头感的防滑纹金属地面从室外延伸进来,与街道形成了开放的对话关系。可以完全打开的外立面,将室内空间开放给城市,也将城市景观引入到室内。
.jpg)
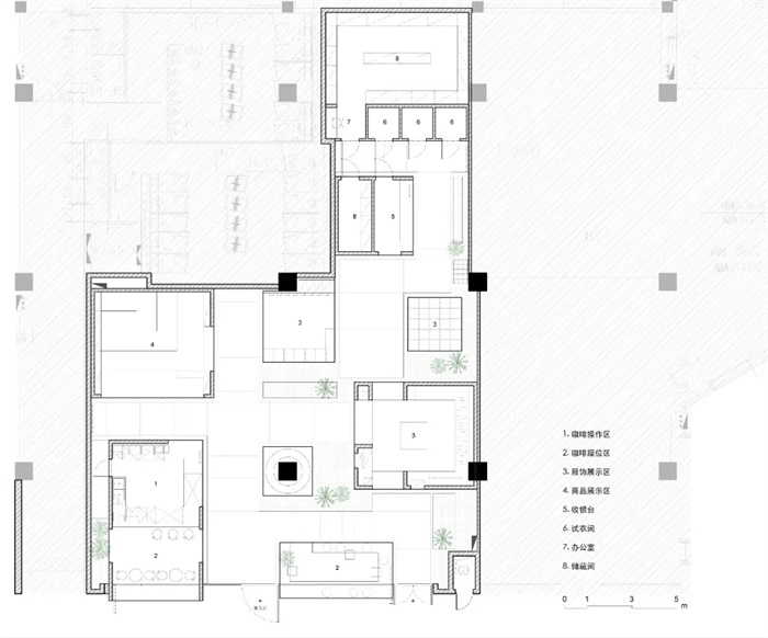
室内部分设计将咖啡、休闲、零售等不同的功能区用大小各异的盒子散落在空间里,形成自然流畅的动线。
.jpg)
人们在逛店的过程中也能有不同的空间感受,收获行走城市街头的体验。金属、木头、红砖等不同的材质拼贴出了城市的丰富和包容性,也契合了DOE的品牌文化。
.jpg)
.jpg)
.jpg)
街头氛围之外,设计针对产品展示也作出了不同的尝试。老木板阶梯围合出独立产品线的展示区及休闲区,实木粗粝的质感给人们提供放松的交流氛围,也暗合了街头潮流的不拘一格。锈钢板和亚克力的展示台则突破了“盒子“的边界,形成更开放的展示区。店铺中央的“旋转盒子”,以一种不断变化的状态,成为整个空间的核心,吸引人们踏足其中。
坐落在半山腰的DOE新店,将室内空间与城市生态相连,同时将街头感浸入了室内空间之中,形成融洽统一的整体。
.jpg)
.jpg)
项目名称:DOE深业上城店 室内设计
项目地点:深圳市 福田区
设计单位:B.L.U.E. Architects
项目周期:2018.12-2019.2
施工周期:2019.5-2019.8
建筑面积:300㎡
主创设计师:青山周平,藤井洋子,刘凌子
摄影师:夏至
主要材料:
墙⾯:⽔泥涂料 (品牌:亚西欧)
墙⾯:⽼⽊板
墙⾯:原色钢板
墙⾯:耐候钢板
墙⾯:OSB板(品牌:科洛森)
地⾯:进⼝防滑纹钢板
发表评论
最新评论
投稿


