87平米全南住宅设计 | 恒田设计
来源 2021-04-29
这间87㎡小户型住宅由夫妻二人和一只英短蓝白猫共住。男主从事HR行政工作,性格随和,受家庭环境影响,酷爱中国传统文化,藏有许多古典文玩和青瓷。女主的职业是保险经纪人,工作时间不固定,平日居家,喜欢书法、古琴、咖啡和茶。家中另囤有一批香炉、茶具和马克杯,由于担心猫咪调皮,收纳空间在考虑外观整洁时,几乎全部安装有门,避免猫咪不小心打碎物品。
在有限的空间内,设计师根据住户的需求进行翻新改造,充分考虑了男女主生活习惯后,打造出一个充满社交属性的开放式厨房。室内大规模采用灯带、射灯照明,使居住环境更加温馨自然。根据原户型L式建筑特点,自左至右采光性依次降落,左侧区域打造成书房、客餐区,便于居家阅读和会客,主卧安置在最右侧,既满足女主对光线敏感的要求,又使二人空间更具私密性,其次从客厅、书房等旧家具中触摸的原木纹路,搭配着指尖香茗,宴余宾客后的足音,似模糊跳动的月色,又似高山流水的演绎,在这个通透空间自发氤氲出诗意。
▲ 原始户型平面图
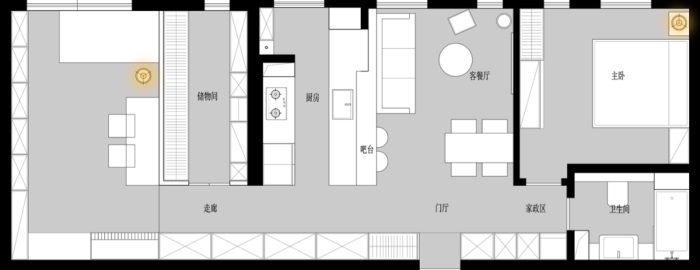
▲ 改造后户型平面图
改造后的住宅开放通透,整体赋予流动性。设计师在原始平面的基础上,根据使用功能的划分,巧妙地串联起整个空间,满足住户基本需求的同时,又保证了住户居住时的自由和舒适。
.jpg)
.jpg)
.jpg)
.jpg)
.jpg)
.jpg)
.jpg)
.jpg)
发表评论
最新评论
投稿