无锡灵山小镇·拈花湾样板区之中式禅居
来源:匿名网友投稿 转载自:上海禾易建筑设计有限公司 2015-12-17
无锡灵山小镇·拈花湾样板区之中式禅居
设计面积:566㎡
设计公司:上海禾易建筑设计有限公司(禾易HYEE DESIGN)
主创设计师:陆嵘
参与设计师:李怡、卜兆玲、王玉洁、苗勋、项晓庆
建设日期:2013年
开发商:无锡灵山耿湾文化投资发展有限公司
奖项:
荣获2014上海室内设计TOP50年度佳作
荣获设计家杂志社《2014中国室内设计年鉴》作品入选证书

设计说明:
样板区分散在拈花湾度假可销售物业中,低缓翠绿的山坡上,一眼望去栋栋古朴精致的小屋参差而上,隐于竹篱与绿荫之中。没有了城市其他建筑物的干扰,这画面似乎有些不真实,仿佛置身于世外桃源,但它们却透着浓浓的中国禅味儿、真实地生长在那里,等待着懂她的主人,不是在拈花湾,又能在何处可寻?
这几栋小楼有着各异的风格——中式禅居、浓墨禅屋、异国禅韵、清雅禅音、南亚禅境。通过运用颜色、材质等设计语言,拉开感官差异。每步入一个屋檐,都是一次惊喜,大到整体空间氛围,小至一个门把手,都呼应着各自的主题、舒展着不同的姿态。不同年龄、不同地域、不同喜好的人们都能感同身受的知道在这个地方,能筑一个家。
中式禅居
整体素雅清丽、古朴禅意、丝竹交错。虽同处一栋,却是相互交织的三个空间错层套房,米黄、灰绿、水蓝三种不同的色调,空间演绎又延伸出不同灰度、不同肌理的材质和软装,使得整体语调统一、层次丰富。即使不断进入这么多个房间,也不会觉得无趣或乏味。
阳光由落地窗撒入,整个人都觉得暖洋洋的。这时候沏上一壶茶,静坐着感受这远离尘嚣的安逸和优闲,怕是人生最惬意的享受了。
.jpg)
.jpg)
.jpg)
.jpg)
.jpg)
.jpg)
.jpg)

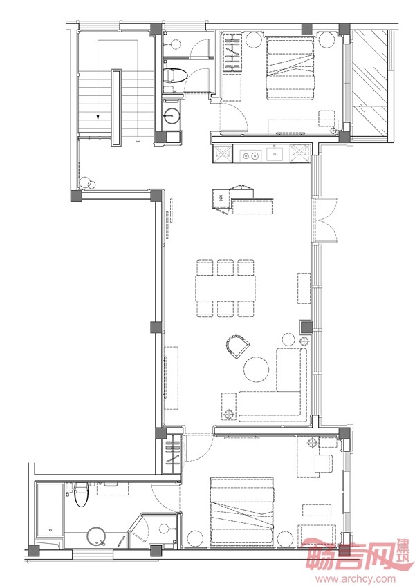
一层平面图

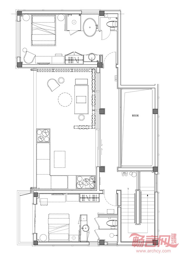
二层平面图
发表评论
最新评论
投稿