手机号:
验证码:
手机号码:
滑块验证:
短信验证:
新 密 码:
再次确认:
超万名行业内专业人士实名投票
秉持客观原则的非商业化评选
首页 >案例>案例赏析>室内>正文
来源:网友记忆加温i投稿 转载自:上海禾易建筑设计有限公司 2015-12-16
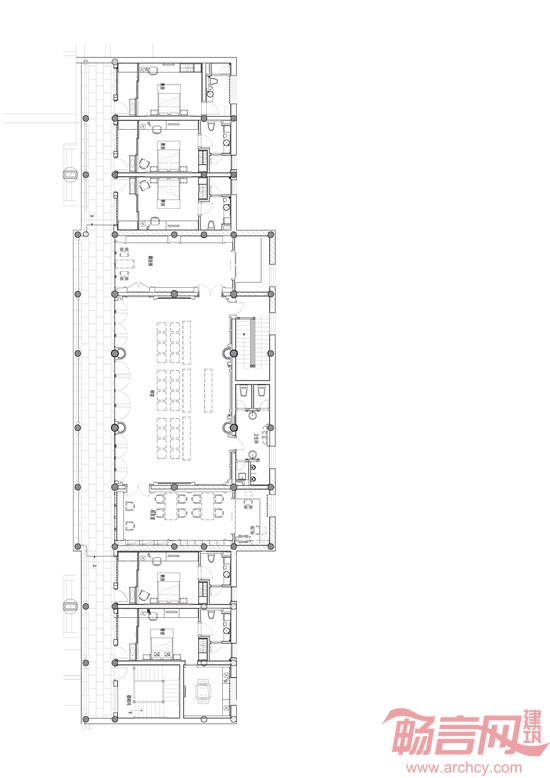
知也寺一层总平面图
知也寺二层总平面图
发表评论
最新评论
杭州某多式联运枢纽项目设计招…
洛阳市智能家居产业园五期项目…
漳州某地铁上盖商业综合体项目…
海南三亚高端住宅项目寻找地下…
成都商业广场项目寻找室内设计…
东莞工业厂房项目电力设计单位…
李荣昊:从成都太古里到东风韵…
邹迎晞:如何在农文旅项目中实…
卓汉:作品即主张,传统材料呈…
NBBJ 艾瑞克·菲利普斯:解密阿…
潘磊:烟台蓬莱机场T2设计…
奥雷·舍人:大胆的叙事想象引…
法国鲁斯印刷厂遗址改造 / Bea…
丹麦工艺学院 / Dorte Mandrup
无锡窑湖小镇飞鸟剧场 / goa大…
新疆胡杨河市天北实验中学 / 江…
彭州天府药市零号店 / UN-GROU…
哥斯达黎加Studio House / For…