深圳国际艺展中心(iADC)艺术小镇 | 汤桦建筑设计
其他来源:汤桦建筑设计投稿 2020-05-07
业主深圳市满京华投资集团有限公司
状态已建成 / 2015-2019
城市深圳
面积5,808m2
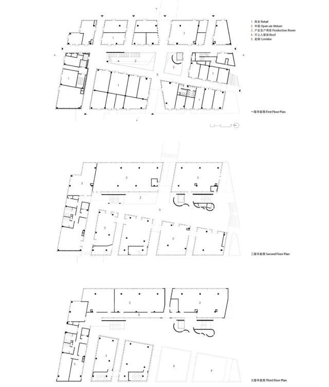
深圳国际艺展中心(iADC)艺术小镇02-12地块2#的设计受满京华集团和许李严建筑师事务所的邀请,南侧面对严迅奇先生设计的艺术小镇博物馆,西侧紧邻艺展城中央步行街,主要容纳艺展零售商铺、轻餐饮和艺术家工作室等功能。
在整个艺术小镇中,蜿蜒的中央步行街道由南至北串联了三个步行街区,空间收放有度、张弛自如、构图严谨。我们希望为这条街道增加一缕神秘、甚至忧郁的气质,与左邻右舍形成窃窃私语般的对话。正如意大利画家乔治·德·契里柯(Chirico Giorgio de)的作品那样,阳光斜撒、明暗对峙、街道空寂,小女孩儿的孤独衣裙闪过,转弯处人影绰约,而街角蹲伏着不可思议的神秘物品。
方案设计由此“臆想”而来,在限定的体量内部构建独具一格的建筑语言。外围硬朗的界面和内部半透明的浮空盒子形成对峙,它们之间的空中街道眺望着南侧的美术馆,隐藏在建筑阴影中的锈红的圆拱打量着过往的路人,南端出挑的“发光体”成为街角昏黄的墨绿搪瓷路灯,下边聚集着悠闲的街坊。而空中街道的下方还隐藏了一处竹影婆娑的“池塘”,幽幽瑟瑟的嗓音撩拨着听众的耳膜……
马塞尔·杜尚(Marcel Duchamp)在他的画作中以松散的几何体量打碎了时间,为静止的图面赋予移动的表征。我们用一座充满立体主义色彩的锈红色楼梯作为漫游路线中的视觉焦点。弧形穿孔板翻转变化,形成半透明的、伴随行走不断变化的异形画框。
建筑底层通过四横二纵的街巷为整个地块带来四通八达的步行交通,四横强调通达与效率,尺度较小,二纵强调体验与惊喜,在内部围合形成一个狭长的楔形内院,向下沉至地库,形成绿植庭院,向上沟通各层。二层设计为向南侧美术馆开放的空中广场,连接地面和三层,与整个艺展城的立体交通体系相接。
.jpg)
.jpg)
.jpg)
.jpg)
.jpg)
.jpg)
.jpg)
.jpg)
.jpg)
.jpg)
.jpg)
.jpg)
.jpg)
.jpg)
.jpg)
.jpg)
.jpg)
.jpg)
.jpg)
.jpg)
.jpg)
.jpg)
发表评论
最新评论
投稿
.jpg)
.jpg)