韩国:El Salvador住宅
来源:匿名网友投稿 2014-09-28
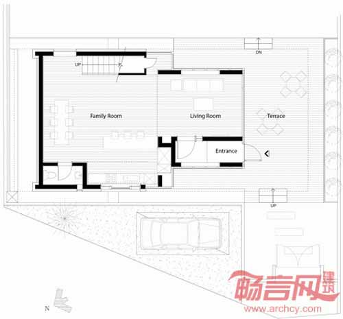
El Salvador住宅邻近首尔,由Praud建筑事务所设计。建筑是一个倾斜的箱子行结构,下方是山地景观。住宅毗邻Chungpyong湖,业主是一对退休的教授夫妇。这座住宅是他们的度假别墅。根据业主要求,建筑选取了安静的环境,方便进行写作、研究和小型研讨会的进行。
本站申明:网友阅读本站内容,视为认同本站协议,协议详情请点击查看
标签:建筑设计韩国住宅ElSalvador
发表评论
最新评论
投稿