韩国:Project R6
来源:匿名网友投稿 2012-05-18
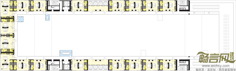
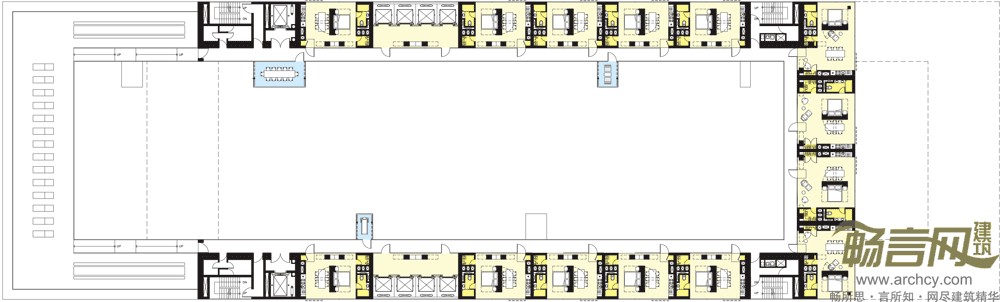
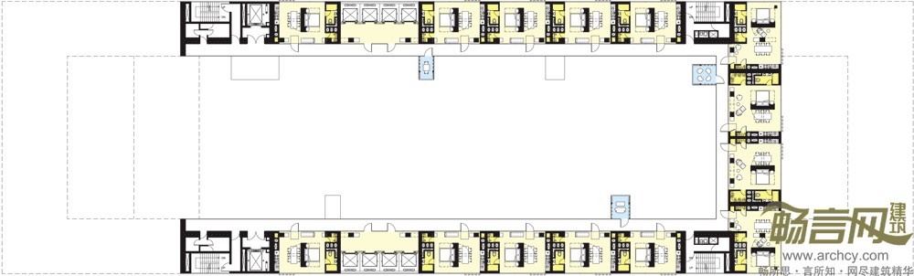
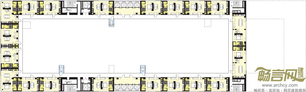
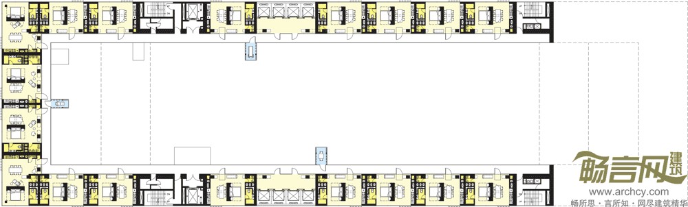
纽约建筑设计公司REX是受邀为龙山国际商务中心设计大楼的15家单位之一,Project R6就是他们为这片未来商业中心打造的杰作。R6大楼是中空的,从114米高的楼顶也能看见楼体中央的地面庭院。
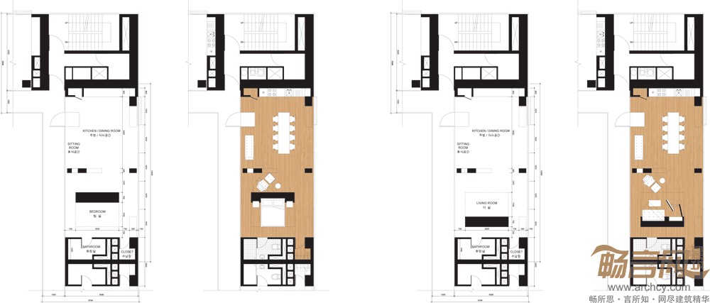
大楼的上层部分主要为紧凑型的公寓房,而下层则分布着零售商店。
这些紧凑型公寓是为专年轻人、外国人和商务人士而设计的临时性居所,因此室内面积很少有超过40平方米的(共3种户型,面积分别为40平、50平米和60平米,其中40平米占绝大多数)。此外,设计师还采取了很多措施来节省室内空间,比如可移动的墙壁和折叠床等等。
为了充分满足人们的居住需求,同时也为了弥补因空间狭小而产生的不足之处,R6大楼就必须营造出一种社区氛围,而且创造良好的通风、采光和观景条件,这样才能具备足够的吸引力。另外,将自然采光和通风条件最大化,也是对生态环保的体现。
通常,一栋普通塔楼中40平米面积的居住单元的内部空间往往是非常狭小、局促的,而且采光和通风条件也不好;此外,居民的公共活动区域也仅限于大楼底层。
而设计师将R6楼体分为多个层段,每个层段之间沿着相反的方向“拉伸”出去,这样既保证了建筑大小不变,同时又很好的改善了采光和通风条件;而且,“拉伸”楼体还形成了很多天台,这样人们的公共活动区域就不仅限于楼底的中央庭院了。
整栋大楼就像一个巨型书架,而“书架”中的每个矩形方格就构成一间间单元房。房间里有一堵可以移动的墙壁,将卧室和起居室分隔开来;墙体中包含了折叠床、床头柜、沙发、电视柜、台灯和储物柜等等。
该大楼预期将于2016年竣工,而整个龙山国际商务中心的预计建成时间为2024年。(畅言网已报道过其中4个建筑项目,请点击查看:剑锋大厦,Cross # Towers,舞龙双子塔,云朵大厦)















大楼规划:47800平方米公寓面积、27000平方米用作零售商店,929个车位;
建筑面积:115500平方米
项目状态:2011年启动,2012年完成设计,2016年预计竣工
设计单位:REX
发表评论
最新评论
投稿







