墨尔本尤里卡大厦 | Fender Katsalidis
来源:网友Puddin_Head投稿 2021-11-09
尤里卡大厦坐落于澳大利亚墨尔本,毗邻CBD,共九十层,总高度近300米,已于2006年竣工。直到2020年事务所的另一超高层建筑Australia 108建成之前,尤里卡大厦一直是墨尔本最高的建筑,可谓是重新定义了墨尔本的天际线。
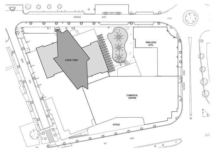
大厦位于雅拉河(Yarra River)对面,占据城市艺术和文化区中的一块完整街区。其在第五层设有酒店、办公空间、精品公寓、商业停车场、酒店设施和零售租赁等,南北拱廊与相邻的花园广场则将雅拉河和墨尔本CBD区相连。建筑结构内还融入了艺术元素,例如具有纪念性的理查德·斯金格雕塑和大胆制作的空间营造图形。
.jpg)
.jpg)
.jpg)
.jpg)
.jpg)
.jpg)

发表评论
最新评论
投稿
.jpg)