德国:Constance古城中的综合性建筑
来源:匿名网友投稿 2012-07-05
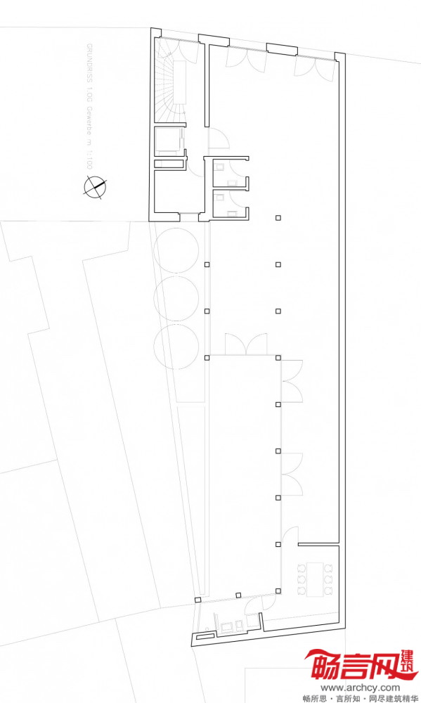
德国康斯坦茨(Constance)老城中心特点在于其均质性和空间紧凑性。这栋综合性建筑项目成功地将30米长的布局融入到周围的历史建筑环境中。
建筑完善了城市街区通向高街的区域;建筑院落使得来自南面的日光照射过来,一条拱廊给原本稠密的老城中心提供了灵活的外部空间。
建筑的主要立视面回应了周围中世纪建筑的斑驳外墙。建筑两个方向的交叉强调了雕塑学上的视角。横向、纵向混凝土柱的格栅被设计成立体扭曲状,加强了外立面的深度。
建筑设计:Kraus Schoenberg Architects
地点:德国康斯坦茨
占地:930平方米
费用:150万欧元
完工时间:2011
发表评论
最新评论
投稿