秘鲁:天空公寓设计方案
来源:网友投稿 2012-08-24
天空公寓坐落在利马市一个高档住宅区,拥有朝向高尔夫球场的非凡视野,设计师希望建筑能成为未来的象征,同时塑造拉丁美洲的奢华住宅理念。
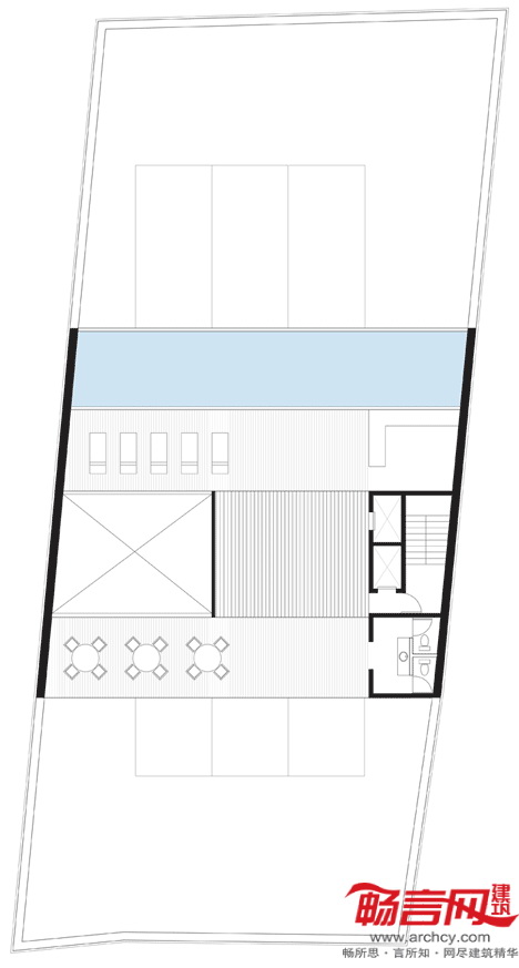
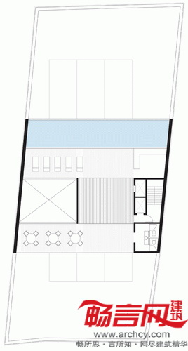
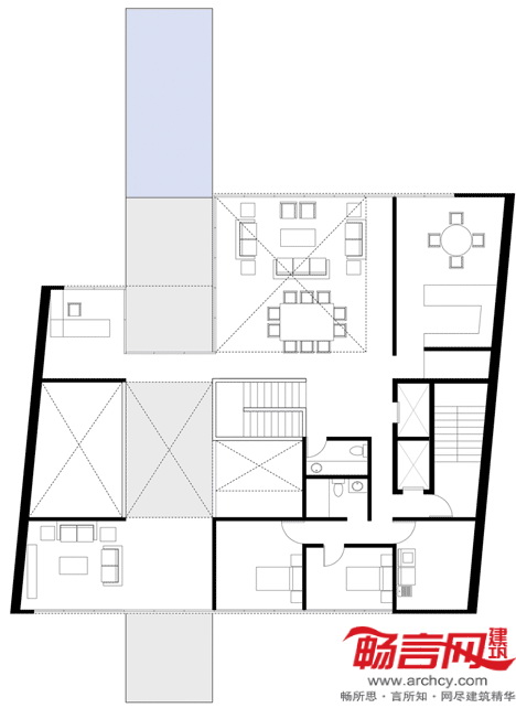
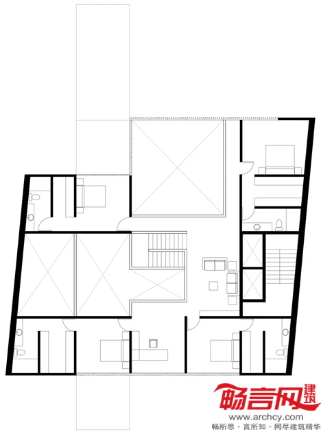
方案的设计方是墨西哥DCPP建筑事务所,亮点是为每户公寓设置了悬臂吊挂的泳池,形式类似跳水板,给人视觉上强烈的冲击。
这栋20层的住宅建筑将位于城市东部,特点包括透明玻璃的立面和一系列户外庭院。
设计师希望摆脱传统的高楼设计观念,避免了奖若干完全一致的公寓简单的叠加,创造出三种适应不同需求的型式——各种型式都具有独特个性,将缺乏户外空间的特性作为设计的核心。
设计方案成功地将室外空间同室内生活融合起来,同时造就了公共区域和私人区域之间的新型关系。
发表评论
最新评论
投稿