韩国:济州岛Objet住宅
来源:匿名网友投稿 2013-02-06

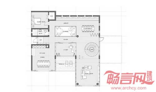
首尔Planning Korea公司完成了其第三个奢侈概念住宅项目设计。项目位于休闲旅游业蓬勃发展的济州岛南海岸,旨在提供一个艺术化的宜居空间。

济州岛Airest城是一个占地

设计师对于葛札瓦生态林(世界上唯一一个在北方生长的热带植物和在南方生长的寒带植物共存的丛林)非常有兴趣。住宅运用了森林元素,包括从错结的树根和岩石中涌动的泉水,所处的环境中温度和湿度适宜,具有其周边Soomgol(呼吸山谷)的特点。

除了山泉元素,住宅周围宽敞的泳池模糊了室内外区域的界线,并带来附近烟波浩淼的海洋、风中摇曳的树枝、流淌的泉水的鸣响。项目描摹了丰饶的森林特点,并传达了永恒的生态适应性。



发表评论
最新评论
投稿