法国:Maurice durufle音乐学校
来源:匿名网友投稿 2013-04-10
项目目的是为法国Louviers增添一所新音乐学校,使学校具有现代、功能齐全、美观特点,体现城市文化战略。设计方案突出了城市的古迹遗产和项目场地的核心位置。
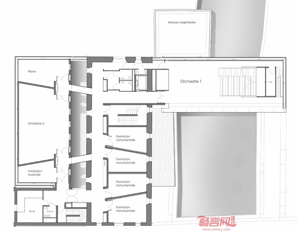
项目旨在展现场地的另一番面貌,并隐藏原先的监狱建筑特征。Louviers新音乐学校所在的建筑原先是一所感化院,学校具有24间教室、一所图书馆和两个大排练厅。由于改造规模较大,现代化的增建结构超过了原有建筑的重要程度。
项目场地较为狭小,设计师最大程度利用了有限空间,并在现有墙体上修筑了增建部分。
项目得到了设定的紧凑型格局,突出了增建元素,同时保留了原有历史建筑成分的庄重感。
发表评论
最新评论
投稿