圣路易斯One Hundred | Studio Gang
来源:网友BigSwifty投稿 2021-06-29
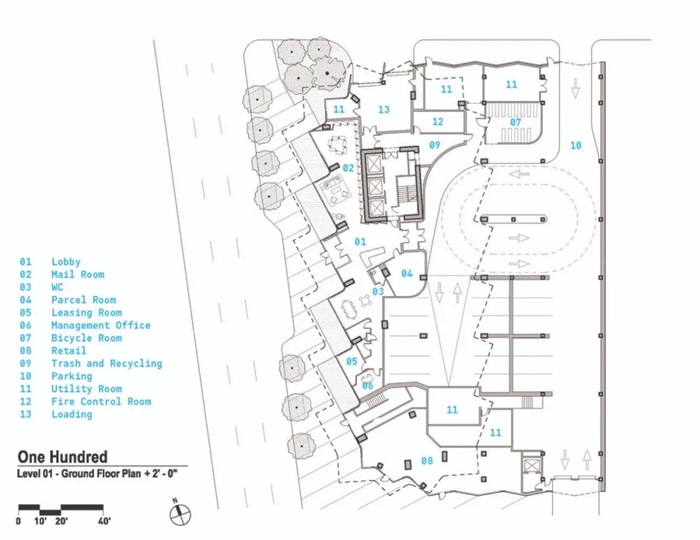
项目位于美国密苏里州的圣路易斯,是一栋俯瞰森林公园的住宅楼,也是Studio Gang在当地的第一个项目。塔楼高约115.8米,包含零售、停车、住宅公寓和各项基建设施。项目往东可望见著名的圣路易斯拱门。
塔楼以每四层为一个模块单位堆叠组成,模块的顶部是开放室外露台,可供住户在此休憩并欣赏社区绿植屋顶花园。项目叶片状的眼神造型将塔楼的朝向和环境效益最大化利用,在减轻能源压力的同时,优化住户的居住体验。
.jpg)
.jpg)
.jpg)
.jpg)
.jpg)
.jpg)
.jpg)
.jpg)
.jpg)
.jpg)
.jpg)
.jpg)
.jpg)
本站申明:网友阅读本站内容,视为认同本站协议,协议详情请点击查看
标签:美国建筑设计珍尼特甘
发表评论
最新评论
投稿



