瑞士木工工坊重建 | AMJGS Architektur
来源:网友BigSwifty投稿 2021-05-26
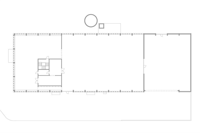
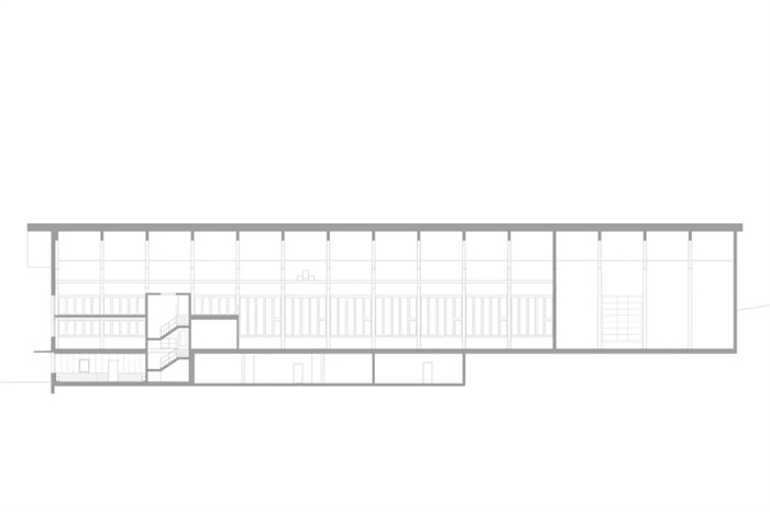
这是位于瑞士一个叫做Matt小村庄中心的一座木屋,在一场大火烧毁了原始生产设施后,木结构建筑公司新的一座替代建筑。新的大厅与旧的大厅很相似,但是建筑整体的建造缺融入了很多新的思考。木材因其无限的可能性而被选为主要的建筑材料。
70多米长的立面的设计突出了了大柱子的间距。它们显然是常规分隔,并通过纤细的窗户进一步分隔,并以垂直的木制风撑进一步的在同一水平上分割。落叶松木板构筑并加强了各个细分区域,粗糙的斜纹云杉式挡风玻璃使立面更加整体化。
.jpg)
.jpg)
.jpg)
.jpg)
.jpg)
.jpg)
.jpg)
.jpg)
.jpg)
本站申明:网友阅读本站内容,视为认同本站协议,协议详情请点击查看
标签:瑞士建筑设计瑞士木工工坊重建
发表评论
最新评论
投稿



