巴西:艺术码头
来源:网友鲁班尺投稿 2013-03-19
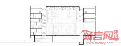
建筑师Paulo Mendez Da Rocha与Martin Corullon合作的“艺术码头”项目正在施工过程中。“艺术码头”是一个博物馆与剧场综合体项目,地点位于里约热内卢北面的Vitoria。
场地位于岸边刚完工的一块混凝土平面上,前后分别是优美海景和繁华都市背景,处于新建项目和历史古迹之间。项目主要设计策略是将空间转变成大都会的新文化中心,同时保持场地的特征,考虑 到建设容纳三层博物馆和1300座位剧场的工程量,完成这一任务并不容易。
设计理念是使建筑脱离地面水平面,为大型艺术活动释放更多空间,为活动人群提供更宽广的视野。
发表评论
最新评论
投稿