丹麦:欧登塞音乐剧场
来源:网友Carenage投稿 2017-10-25
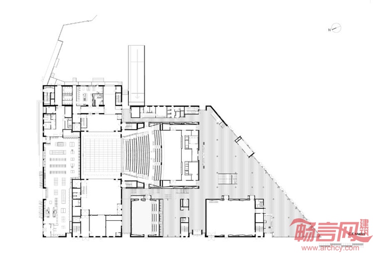
C F Moller事务所设计了丹麦欧登塞音乐剧场。项目面积32000平米,于2017年完工。这一中标方案旨在营造拥有四个舞台的文化“发电站”,并将南丹麦音乐和戏剧学院集中在同一座建筑中。场地坐落于安徒生广场上,毗邻历史古城和当代多层住宅。此外,还设有音乐厅和艺术馆。文化中心包含餐厅,酒吧,休息室,可通向屋顶露台,还有办公室和食堂。
本站申明:网友阅读本站内容,视为认同本站协议,协议详情请点击查看
标签:丹麦建筑设计欧登塞音乐剧场
发表评论
最新评论
投稿

