法国Cap Leeuwin大厦 | Marjan Hessamfar&Joe Verons
来源:网友辉投稿 2021-12-03

作为代表城市北部入口及其码头的“标志”,Cap Leeuwin 是象征 Bassins à Flot 地块重生的第一个地标建筑,项目以4个区块的名字命名,旁边是n°2码头。

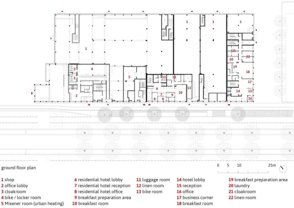
项目总建筑面积15119㎡,结合了四个不同的实体:办公室(5755㎡),一个拥有124间客房(3061㎡)的三星酒店,一个拥有128个工作室(3392㎡)的长住酒店,以及底层商铺(2911㎡)。它的形状布局不仅考虑了建筑的连贯性,也确保了不同项目实体的独立性,以此避免不同适用人群相互间的干扰。

设计向当地的工业和海事历史致敬,以当代风格重新诠释它。该建筑以体量为中心,巧妙地结合了码头区的工业棚和 rue Lucien Faure 沿岸的码头的形式和材料。两个像塔楼一样的更高的建筑将其从地块的中间断开,高耸之处成为了基地内的地标,并给码头和这座城市提供了之前不曾有过的景色。

建筑设计的原则也反映在立面使用的两种材料中,即砖和金属。沿街的砖立面强调了建筑与城市的关系。手工铸造的陶土砖的不均匀性,以及它的棕色,给了建筑一种独特的感觉,立面的整体图案和使其充满活力的窗户更加突出了这种感觉。

码头边的建筑物高度逐渐降低,立面覆盖着阳极氧化铝网,突出了体量并捕捉光线,产生了微妙的色调变化。

住宅酒店围绕一个中央天井,除此之外办公用户还可以使用两个木材覆盖的大型共享种植露台。第一部分位于一楼,俯瞰码头区,将新鲜空气引入中心区域,并打开码头区的视野。第二部分位于塔楼的七层,与 Place Latule 毗邻,展现码头和城市全新的景象。

建筑与供暖和制冷网络相连,该网络使用一个木质生物质锅炉和一个从废水中回收热量的系统为整个街区供电。为了帮助恢复城市的生态功能,建筑师在酒店和办公室的屋顶露台上种植了一系列不同的当地物种,并安装了野生动物收容设备。



















end
发表评论
最新评论
投稿