鞑靼国家图书馆 | XOPA
来源:网友tigertanaka投稿 2021-08-25
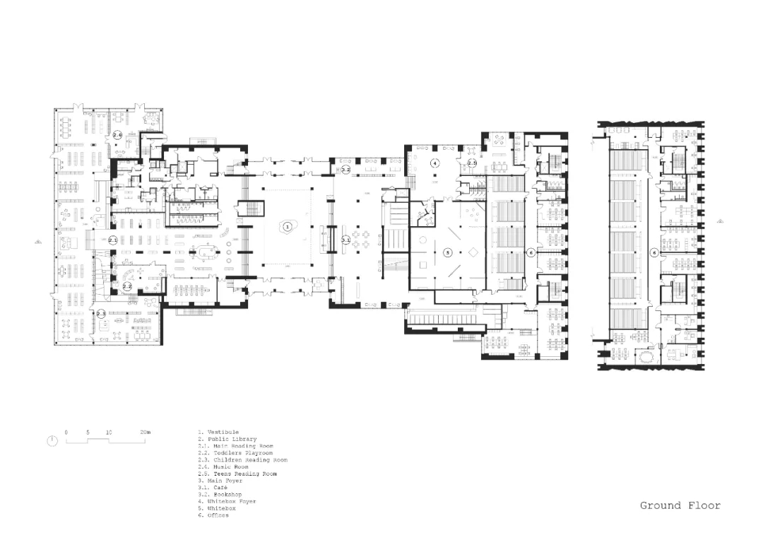
鞑靼斯坦共和国国家图书馆位于1987年建造的列宁中央博物馆喀山(Kazan)分馆中。鞑靼人的历史建筑在空间组织和材料以及颜色的运用上,都显示出与苏联后期的“纪念性”非常接近的手法。与鞑靼历史建筑的精髓和对苏联遗产的关注保持一致,以最简单但最庄重的方式使用材料。
中央双高前厅连接建筑的核心功能区、卡赞卡河堤以及城市广场。因此,前厅不仅连接建筑物的不同部分,同时也连接着建筑物周围城市结构的各个部分。前厅的垂直表面由绿色的蛇纹石、白色大理石、砂岩以及白色石膏覆盖。地板由颜色相近的岩石组成的角砾岩制成,而天花板则是用视觉上无缝的颗粒状隔音板完成。
.jpg)

.jpg)
.jpg)
.jpg)
.jpg)
发表评论
最新评论
投稿