日本:狭山公墓礼堂
来源:网友烟波的蓝投稿 2016-01-14
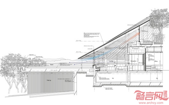
Hiroshi Nakamura and Nap事务所设计的日本狭山公墓礼堂位于一片茂密丛林中的坡地上,俯瞰整座城市。场地拥有超凡的视野,但设计师放弃了开放式布局,而是将建筑封闭在自然环境之外。设计师希望建筑在开放时依然保持一定程度的封闭。为了达到这个目的,将服务相关房间构成中央混凝土核心,让访客休息区和餐厅围绕核心排布。





本站申明:网友阅读本站内容,视为认同本站协议,协议详情请点击查看
标签:
发表评论
最新评论
投稿
