加拿大:Chelsea Hill住宅
来源:网友MissBella投稿 2012-09-28

Kariouk建筑设计公司设计了加拿大魁北克一处外墙具有几何图案的房屋。设计的难度在于在狭小的房屋内创造出同时适合居住其中的大人、孩子的不同需求(私密性、隔音性、整洁性等),保证空间流畅,不会显得支离破碎。

房屋具有相当简单的砖石结构,建在俯瞰美丽河谷的高地上。房屋一层空间被青山年占据,包含了卧室、电视区和体育器材存放区,全部采用了耐用的混凝土地面。

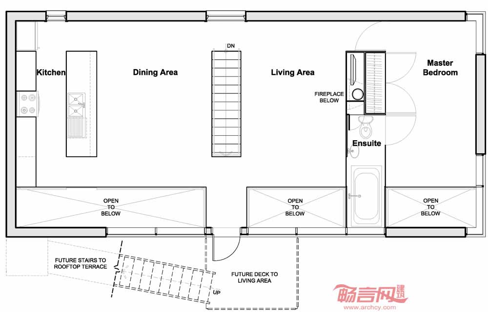
房屋的生活区、餐厅、厨房、主卧、浴室位于二层和三层,因此拥有了非常好的视野条件。相对一层简单的材料选择,二层、三层使用了更多的材料,如木质地板和玻璃栏杆。

设计师将吵闹、纷乱的青少年生活区设在了一层,为高楼层提供了安静的环境。尽管房屋的结构和建筑材料都很简单,却难得具备一种独特的“轻松”感,从“悬浮”在两倍层高空间中的浴缸可见一斑。


发表评论
最新评论
投稿


