土耳其:Eurogida工厂行政楼
来源:匿名网友投稿 2016-08-18
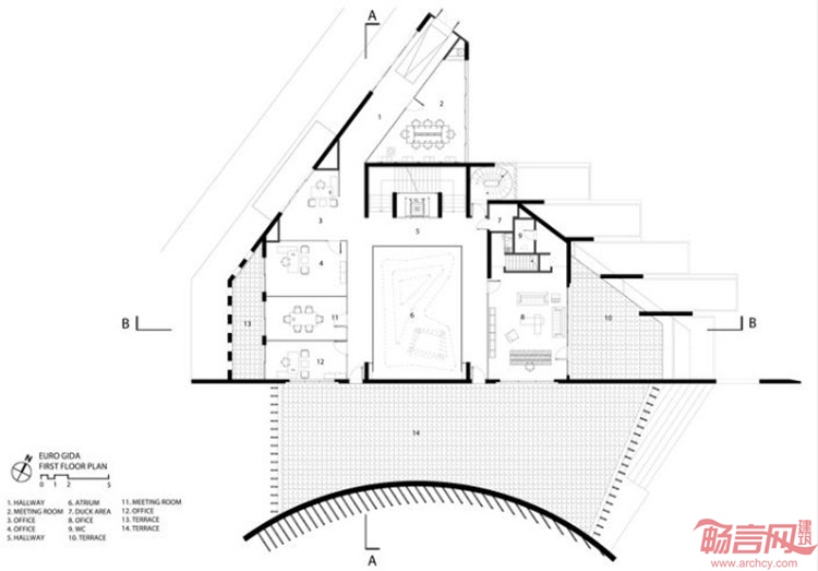
项目位于伊兹密尔Kemalpasa区,这是土耳其东南部爱琴海海滨城市。场地面积72英亩,周围是农田和河流。设计围绕气候条件和用户实际需求展开,这两个因素决定了室内布局和多功能行政设施的总体形式。项目涵盖集成式泡菜生产和储存设施以及行政区。室内区域设计灵活,多样性房间被可拆卸隔断分开,可满足未来改变需求。
本站申明:网友阅读本站内容,视为认同本站协议,协议详情请点击查看
标签:土耳其工厂行政楼Eurogida
发表评论
最新评论
投稿



