新加坡:Armadillo住宅
来源:匿名网友投稿 2012-08-23
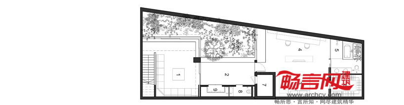
新加坡Formwerkz建筑事务所最近完成了“Armadillo住宅”设计,对其所在的街角场地的两个环境因素做出了回应——临近公路的噪音污染、住宅西面的大面积暴晒。
设计师给出的解决方案是使用四块折板真正将外界干扰隔开,并维护室内空间的私密性。住宅带有一个地沉式的花园,给主要生活区提供了宜人的植被。
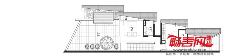
上层的悬垂部分和叠放的遮挡元素使非直射光进入室内,使昔日过剩的太阳辐射得到了控制。
阁楼的机械风扇起到了烟囱效应,将建筑低层的凉爽空气带到上层的卧室。
“Armadillo住宅”入围了2012年世界建筑节的住宅类奖项。
发表评论
最新评论
投稿